Saint-jean-de-monts (85160)
Maison - 2 pièce(s) - 78 m²
229 900
€ *
- Référence : 1041059_1005150_3552054
- Dernière mise à jour : 06/12/2025
Pour la nouvelle notation (DPE à partir de juillet 2021), c'est la plus mauvaise des deux performances (énergie, climat) qui est retenue.
VENTE : maison de 2 pièces (78 m²) à Saint-Jean-de-Monts
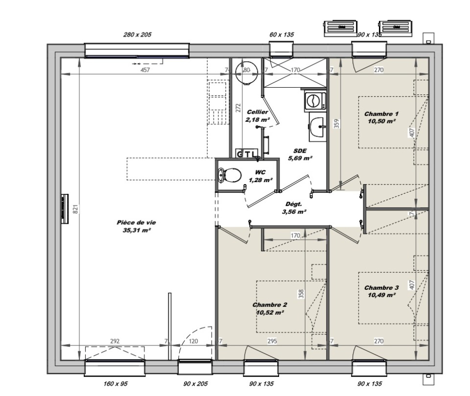
Emplacement privilégié - À vendre à Saint-Jean-de-Monts (85160) : maison neuve 2 pièces de 78 m² et de 480 m² de terrain. Son intérieur se divise en trois chambres, une cuisine et une salle de bains.
Proche établissements scolaires, commerces, boulangeries, supermarchés, poissonneries et boucheries-charcuteries. Marché Place Yole hebdomadaire. Océan Atlantique à 793 m.
Cette maison de 2 pièces est proposée à l'achat pour 229 900 €.
Contactez Nicolas RISSELIN () pour tout renseignement sur la maison. LMP Constructeur Saint-Gilles-Croix-de-Vie vous accompagne à toutes les étapes de votre projet et dans tous vos projets immobiliers.
Nos offres de terrains sont proposées en collaboration avec nos partenaires fonciers pour des maisons dans le cadre de la loi du 10/12/1990, selon disponibilité.
Surface habitable : 78m2.
Nombre de pièces : 2.
Nombre de chambres : 3.
Prix terrain seul : 76900 euros.
Terrain proposé par un partenaire foncier selon disponibilités et autorisation de publicité au prix de 76 900 €. Hors droit d'enregistrement et frais de notaire. Maison proposée, avec un contrat de construction de maison individuelle, dans le cadre de la loi du 19/12/1990, au prix de 153 000 € (Hors branchements et raccordements, papiers peints, peintures, revêtement de sol dans les chambres, qui sont chiffrés dans les travaux qui restent à charge du client. Tarif modifiable sans préavis). Étiquette énergie : A. Différents modèles disponibles pour ce terrain. Assurances et garanties du constructeur comprises (RC professionnelle, décennale, dommage ouvrage).
LMP CONSTRUCTEUR 5 rue Gautté 85800 Saint-Gilles-Croix-de-Vie
Référence : NR2248014_5
Bien En copropriété : non
Emplacement privilégié - À vendre à Saint-Jean-de-Monts (85160) : maison neuve 2 pièces de 78 m² et de 480 m² de terrain. Son intérieur se divise en trois chambres, une cuisine et une salle de bains.
Proche établissements scolaires, commerces, boulangeries, supermarchés, poissonneries et boucheries-charcuteries. Marché Place Yole hebdomadaire. Océan Atlantique à 793 m.
Cette maison de 2 pièces est proposée à l'achat pour 229 900 €.
Contactez Nicolas RISSELIN () pour tout renseignement sur la maison. LMP Constructeur Saint-Gilles-Croix-de-Vie vous accompagne à toutes les étapes de votre projet et dans tous vos projets immobiliers.
Nos offres de terrains sont proposées en collaboration avec nos partenaires fonciers pour des maisons dans le cadre de la loi du 10/12/1990, selon disponibilité.
Surface habitable : 78m2.
Nombre de pièces : 2.
Nombre de chambres : 3.
Prix terrain seul : 76900 euros.
Terrain proposé par un partenaire foncier selon disponibilités et autorisation de publicité au prix de 76 900 €. Hors droit d'enregistrement et frais de notaire. Maison proposée, avec un contrat de construction de maison individuelle, dans le cadre de la loi du 19/12/1990, au prix de 153 000 € (Hors branchements et raccordements, papiers peints, peintures, revêtement de sol dans les chambres, qui sont chiffrés dans les travaux qui restent à charge du client. Tarif modifiable sans préavis). Étiquette énergie : A. Différents modèles disponibles pour ce terrain. Assurances et garanties du constructeur comprises (RC professionnelle, décennale, dommage ouvrage).
LMP CONSTRUCTEUR 5 rue Gautté 85800 Saint-Gilles-Croix-de-Vie
Référence : NR2248014_5
Bien En copropriété : non
* Prix net, hors frais notarié, d'enregistrement et de publicité foncière.
Contactez
LMP CONSTRUCTEUR
N° de téléphone
Nous contacter