Gujan-mestras (33470)
Maison - 6 pièce(s) - 219 m²
1 225 300
€ *
- Référence : 1127751_1127774_3586934
- Dernière mise à jour : 01/12/2025
Pour la nouvelle notation (DPE à partir de juillet 2021), c'est la plus mauvaise des deux performances (énergie, climat) qui est retenue.
Maison de 6 pièces (219 m²) en vente à GUJAN-MESTRAS
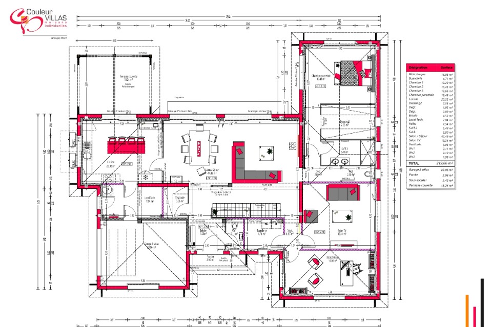
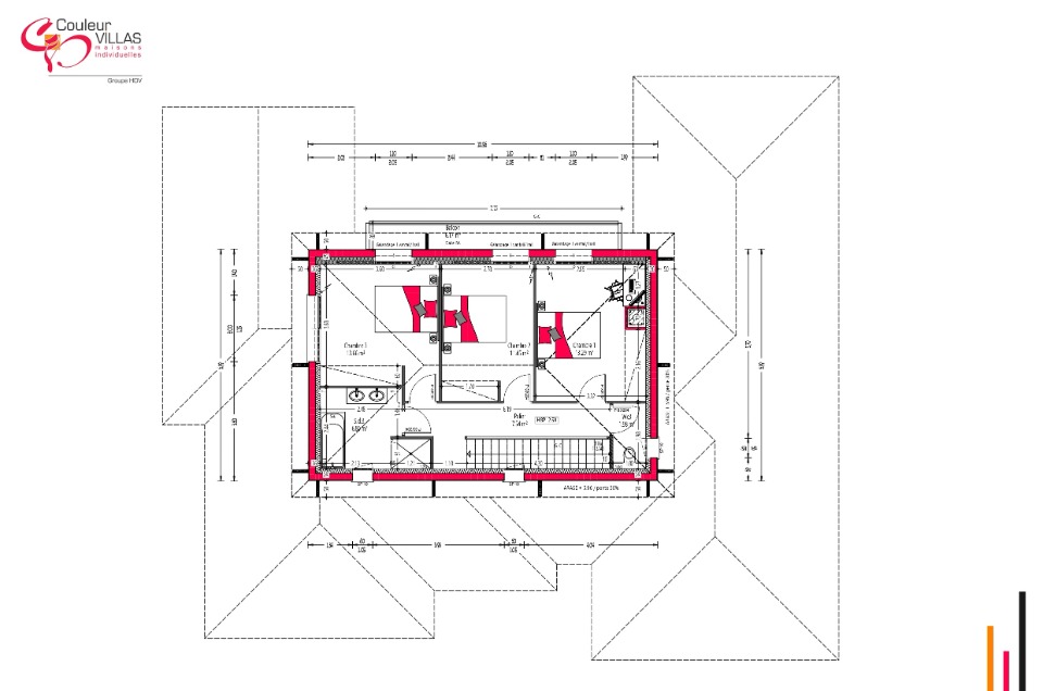
À Gujan-Mestras (33470), découvrez cette belle maison de type arcachonnaise de 219 m² avec son terrain de 1300 m² viabilisé et situé en troisième ligne d'un petit lotissement calme. Ce projet propose une habitation aux volumes généreux comprenant six pièces, dont trois chambres, une suite parentale avec salle d'eau et dressing, un bureau, une cuisine indépendante, une salle de bain séparée ainsi qu'un garage. Une architecture typique du Bassin, pensée pour offrir confort et luminosité.
Ce projet prêt à construire n'attend que vous !
Elle est proposé au prix de 1 225 300 € Frais de notaire en sus.
N'hésitez pas à prendre contact avec Marine LESCOMERE (tél : O01) pour obtenir de plus amples informations sur cette maison, sur les démarches à suivre ou sur les modalités de vente. Couleur Villas La Teste-de-Buch vous accompagne à toutes les étapes de l'achat et dans tous vos projets immobiliers.
Nos offres de terrains sont proposées en collaboration avec nos partenaires fonciers pour des maisons dans le cadre de la loi du 10/12/1990, selon disponibilité.
Surface habitable : 219m2.
Nombre de pièces : 6.
Nombre de chambres : 4.
Prix terrain seul : 475000 euros.
Terrain proposé par un partenaire foncier selon disponibilité dans le cadre d'un projet de construction avec Couleur Villas. Les descriptions, photographies, surfaces et prix illustrant l'annonce sont fournies à titre indicatif et ne sont pas contractuels. Non soumis au DPE. Différents modèles disponibles.
Couleur Villas 31 Avenue Saint Exupéry 33260 La Teste-de-Buch
Référence : ML2352347_1
Bien En copropriété : non
À Gujan-Mestras (33470), découvrez cette belle maison de type arcachonnaise de 219 m² avec son terrain de 1300 m² viabilisé et situé en troisième ligne d'un petit lotissement calme. Ce projet propose une habitation aux volumes généreux comprenant six pièces, dont trois chambres, une suite parentale avec salle d'eau et dressing, un bureau, une cuisine indépendante, une salle de bain séparée ainsi qu'un garage. Une architecture typique du Bassin, pensée pour offrir confort et luminosité.
Ce projet prêt à construire n'attend que vous !
Elle est proposé au prix de 1 225 300 € Frais de notaire en sus.
N'hésitez pas à prendre contact avec Marine LESCOMERE (tél : O01) pour obtenir de plus amples informations sur cette maison, sur les démarches à suivre ou sur les modalités de vente. Couleur Villas La Teste-de-Buch vous accompagne à toutes les étapes de l'achat et dans tous vos projets immobiliers.
Nos offres de terrains sont proposées en collaboration avec nos partenaires fonciers pour des maisons dans le cadre de la loi du 10/12/1990, selon disponibilité.
Surface habitable : 219m2.
Nombre de pièces : 6.
Nombre de chambres : 4.
Prix terrain seul : 475000 euros.
Terrain proposé par un partenaire foncier selon disponibilité dans le cadre d'un projet de construction avec Couleur Villas. Les descriptions, photographies, surfaces et prix illustrant l'annonce sont fournies à titre indicatif et ne sont pas contractuels. Non soumis au DPE. Différents modèles disponibles.
Couleur Villas 31 Avenue Saint Exupéry 33260 La Teste-de-Buch
Référence : ML2352347_1
Bien En copropriété : non
* Prix net, hors frais notarié, d'enregistrement et de publicité foncière.
Contactez
COULEUR VILLAS
N° de téléphone
Nous contacter