Baye (29300)
Maison - 4 pièce(s) - 70 m²
316 000
€ *
- Référence : 1005377_1005127_3593242
- Dernière mise à jour : 05/12/2025
Pour la nouvelle notation (DPE à partir de juillet 2021), c'est la plus mauvaise des deux performances (énergie, climat) qui est retenue.
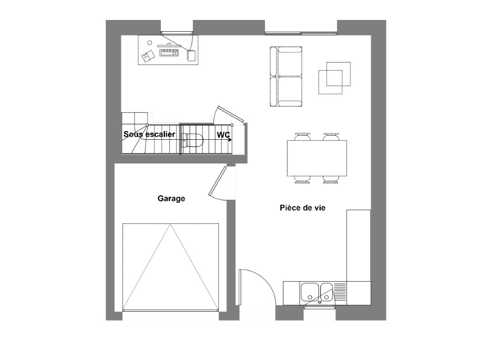
VENTE : maison T4 (70 m²) à Baye
CENTRE-VILLE - MAISON 4 PIÈCES NEUVE
À vendre sur le littoral atlantique et à deux pas de Lorient, laissez vous charmer par cette maison de 4 pièces de 70 m² et de 630 m² de terrain à Baye (29300), en centre-ville. Son intérieur propose trois chambres, une cuisine et une salle de bains.
Cette maison possède 2 niveaux.
Elle est proposée à l'achat pour 316 000 €.
Prenez contact avec Mathieu DEROUET (tél : ) pour plus de renseignements sur la propriété ou sur les modalités de vente. Donnez vie à vos projets immobiliers avec Maisons de l'Avenir Quimper.
Nos offres de terrains sont proposées en collaboration avec nos partenaires fonciers pour des maisons dans le cadre de la loi du 10/12/1990, selon disponibilité.
Surface habitable : 70m2.
Nombre de pièces : 4.
Nombre de chambres : 3.
Prix terrain seul : 122000 euros.
Maisons de l'Avenir, constructeur de maisons individuelles, propose en collaboration avec ses partenaires fonciers, une sélection de terrains constructibles, selon disponibilité, pour la construction de maisons neuves définies par le constructeur, avec un contrat de construction de maison individuelle, dans le cadre de la loi du 19/12/1990. Prix net, hors frais notariés, d'enregistrement et de publicité foncièreTerrain proposé au prix de : 122 000 €Maison proposée au prix de : 194 000 €Etiquette énergie : A. Assurances et garanties du constructeur (RC professionnelle, décennale, dommage ouvrage, Garantie de livraison à prix et délai convenu).
MAISONS DE L'AVENIR 3, chemin de Gwaremm Ar Wern 29000 Quimper
Référence : MD2359150_1
Bien En copropriété : non
CENTRE-VILLE - MAISON 4 PIÈCES NEUVE
À vendre sur le littoral atlantique et à deux pas de Lorient, laissez vous charmer par cette maison de 4 pièces de 70 m² et de 630 m² de terrain à Baye (29300), en centre-ville. Son intérieur propose trois chambres, une cuisine et une salle de bains.
Cette maison possède 2 niveaux.
Elle est proposée à l'achat pour 316 000 €.
Prenez contact avec Mathieu DEROUET (tél : ) pour plus de renseignements sur la propriété ou sur les modalités de vente. Donnez vie à vos projets immobiliers avec Maisons de l'Avenir Quimper.
Nos offres de terrains sont proposées en collaboration avec nos partenaires fonciers pour des maisons dans le cadre de la loi du 10/12/1990, selon disponibilité.
Surface habitable : 70m2.
Nombre de pièces : 4.
Nombre de chambres : 3.
Prix terrain seul : 122000 euros.
Maisons de l'Avenir, constructeur de maisons individuelles, propose en collaboration avec ses partenaires fonciers, une sélection de terrains constructibles, selon disponibilité, pour la construction de maisons neuves définies par le constructeur, avec un contrat de construction de maison individuelle, dans le cadre de la loi du 19/12/1990. Prix net, hors frais notariés, d'enregistrement et de publicité foncièreTerrain proposé au prix de : 122 000 €Maison proposée au prix de : 194 000 €Etiquette énergie : A. Assurances et garanties du constructeur (RC professionnelle, décennale, dommage ouvrage, Garantie de livraison à prix et délai convenu).
MAISONS DE L'AVENIR 3, chemin de Gwaremm Ar Wern 29000 Quimper
Référence : MD2359150_1
Bien En copropriété : non
* Prix net, hors frais notarié, d'enregistrement et de publicité foncière.
Contactez
MAISONS DE L'AVENIR
N° de téléphone
Nous contacter