Trégunc (29910)
Maison - 5 pièce(s) - 155 m²
494 000
€ *
- Référence : 1005382_1005127_3593510
- Dernière mise à jour : 05/12/2025
Pour la nouvelle notation (DPE à partir de juillet 2021), c'est la plus mauvaise des deux performances (énergie, climat) qui est retenue.
VENTE d'une maison T5 (155 m²) à Trégunc
PROCHE DE QUIMPER - MAISON 5 PIÈCES NEUVE
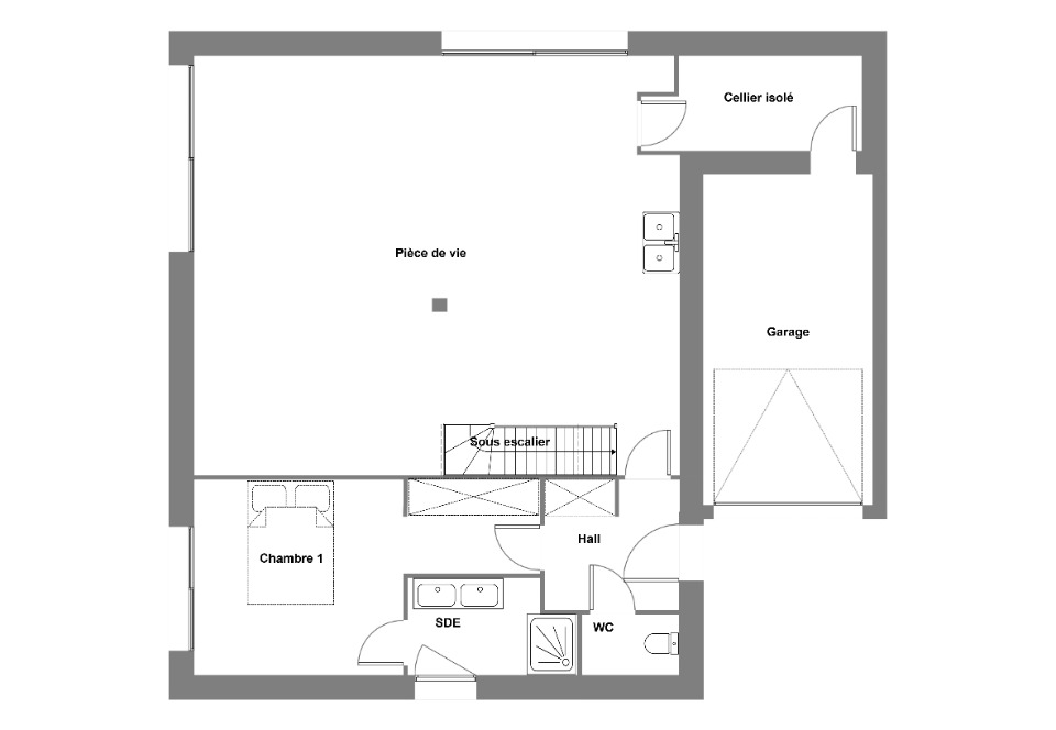
À vendre : sur la côte atlantique et à deux pas de Quimper, nous vous présentons cette maison de 5 pièces de 155 m² à Trégunc (29910). Elle se divise en quatre chambres, une cuisine et deux salles de bains.
Le terrain de la propriété est de 830 m².
Cette maison possède 2 niveaux.
Elle est proposée à l'achat pour 494 000 €.
Prenez contact avec Mathieu DEROUET () pour toute question sur cette maison. Maisons de l'Avenir Pont-l'Abbé est là pour vous accompagner à toutes les étapes de votre projet.
Nos offres de terrains sont proposées en collaboration avec nos partenaires fonciers pour des maisons dans le cadre de la loi du 10/12/1990, selon disponibilité.
Surface habitable : 155m2.
Nombre de pièces : 5.
Nombre de chambres : 4.
Prix terrain seul : 118000 euros.
Maisons de l'Avenir, constructeur de maisons individuelles, propose en collaboration avec ses partenaires fonciers, une sélection de terrains constructibles, selon disponibilité, pour la construction de maisons neuves définies par le constructeur, avec un contrat de construction de maison individuelle, dans le cadre de la loi du 19/12/1990. Prix net, hors frais notariés, d'enregistrement et de publicité foncièreTerrain proposé au prix de : 118 000 €Maison proposée au prix de : 376 000 €Etiquette énergie : A. Assurances et garanties du constructeur (RC professionnelle, décennale, dommage ouvrage, Garantie de livraison à prix et délai convenu).
MAISONS DE L'AVENIR 34, place de la République 29120 Pont-l'Abbé
Référence : MD2359530_1
Bien En copropriété : non
PROCHE DE QUIMPER - MAISON 5 PIÈCES NEUVE
À vendre : sur la côte atlantique et à deux pas de Quimper, nous vous présentons cette maison de 5 pièces de 155 m² à Trégunc (29910). Elle se divise en quatre chambres, une cuisine et deux salles de bains.
Le terrain de la propriété est de 830 m².
Cette maison possède 2 niveaux.
Elle est proposée à l'achat pour 494 000 €.
Prenez contact avec Mathieu DEROUET () pour toute question sur cette maison. Maisons de l'Avenir Pont-l'Abbé est là pour vous accompagner à toutes les étapes de votre projet.
Nos offres de terrains sont proposées en collaboration avec nos partenaires fonciers pour des maisons dans le cadre de la loi du 10/12/1990, selon disponibilité.
Surface habitable : 155m2.
Nombre de pièces : 5.
Nombre de chambres : 4.
Prix terrain seul : 118000 euros.
Maisons de l'Avenir, constructeur de maisons individuelles, propose en collaboration avec ses partenaires fonciers, une sélection de terrains constructibles, selon disponibilité, pour la construction de maisons neuves définies par le constructeur, avec un contrat de construction de maison individuelle, dans le cadre de la loi du 19/12/1990. Prix net, hors frais notariés, d'enregistrement et de publicité foncièreTerrain proposé au prix de : 118 000 €Maison proposée au prix de : 376 000 €Etiquette énergie : A. Assurances et garanties du constructeur (RC professionnelle, décennale, dommage ouvrage, Garantie de livraison à prix et délai convenu).
MAISONS DE L'AVENIR 34, place de la République 29120 Pont-l'Abbé
Référence : MD2359530_1
Bien En copropriété : non
* Prix net, hors frais notarié, d'enregistrement et de publicité foncière.
Contactez
MAISONS DE L'AVENIR
N° de téléphone
Nous contacter