Méré (78490)
Maison - 8 pièce(s) - 200 m²
780 000
€ *
- Référence : 1045021_1005120_3514398
- Dernière mise à jour : 24/12/2025
Pour la nouvelle notation (DPE à partir de juillet 2021), c'est la plus mauvaise des deux performances (énergie, climat) qui est retenue.
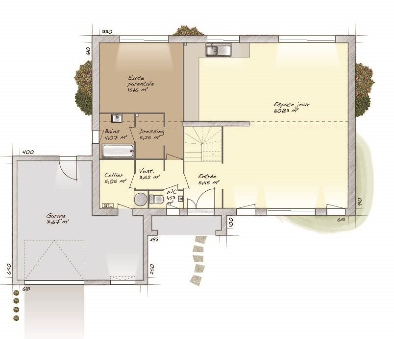
Maison de 8 pièces (200 m²) en vente à Méré
Paris à 35 min (Transilien N, Montfort-l'Amaury-Méré) - À découvrir idéalement située dans Méré (78490) : maison neuve 8 pièces en vente. 2 niveaux, surface de 200 m² et 1 100 m² de terrain. Elle dispose de cinq chambres, d'une cuisine et de deux salles de bains.
À proximité : gares, école primaire École Maternelle Nouvelle, tennis, bibliothèque et supermarché. Nanterre à 30 km.
Le prix de vente de cette maison de 8 pièces est de 780 000 €.
Prenez contact avec Arnaud DUTEURTRE () pour toute information sur la maison. Maisons Balency Coignières vous accompagne dans toutes vos démarches et à toutes les étapes de l'achat.
Annonce proposée par un Agent Commercial Partenaire.
Nos offres de terrains sont proposées en collaboration avec nos partenaires fonciers pour des maisons dans le cadre de la loi du 10/12/1990, selon disponibilité.
Surface habitable : 200m2.
Nombre de pièces : 8.
Nombre de chambres : 5.
Prix terrain seul : 399000 euros.
Terrain proposé par un partenaire foncier selon disponibilités et autorisation de publicité au prix de 399 000 €. Hors droit d'enregistrement et frais de notaire. Maison proposée, avec un contrat de construction de maison individuelle, dans le cadre de la loi du 19/12/1990, au prix de 381 000 € (Hors branchements et raccordements, papiers peints, peintures, revêtement de sol dans les chambres, qui sont chiffrés dans les travaux qui restent à charge du client. Tarif modifiable sans préavis). Étiquette énergie : A. Différents modèles disponibles pour ce terrain. Assurances et garanties du constructeur comprises (RC professionnelle, décennale, dommage ouvrage).
MAISONS BALENCY Domexpo Ouest 78310 Coignières
Référence : AD2281944_1
Bien En copropriété : non
Paris à 35 min (Transilien N, Montfort-l'Amaury-Méré) - À découvrir idéalement située dans Méré (78490) : maison neuve 8 pièces en vente. 2 niveaux, surface de 200 m² et 1 100 m² de terrain. Elle dispose de cinq chambres, d'une cuisine et de deux salles de bains.
À proximité : gares, école primaire École Maternelle Nouvelle, tennis, bibliothèque et supermarché. Nanterre à 30 km.
Le prix de vente de cette maison de 8 pièces est de 780 000 €.
Prenez contact avec Arnaud DUTEURTRE () pour toute information sur la maison. Maisons Balency Coignières vous accompagne dans toutes vos démarches et à toutes les étapes de l'achat.
Annonce proposée par un Agent Commercial Partenaire.
Nos offres de terrains sont proposées en collaboration avec nos partenaires fonciers pour des maisons dans le cadre de la loi du 10/12/1990, selon disponibilité.
Surface habitable : 200m2.
Nombre de pièces : 8.
Nombre de chambres : 5.
Prix terrain seul : 399000 euros.
Terrain proposé par un partenaire foncier selon disponibilités et autorisation de publicité au prix de 399 000 €. Hors droit d'enregistrement et frais de notaire. Maison proposée, avec un contrat de construction de maison individuelle, dans le cadre de la loi du 19/12/1990, au prix de 381 000 € (Hors branchements et raccordements, papiers peints, peintures, revêtement de sol dans les chambres, qui sont chiffrés dans les travaux qui restent à charge du client. Tarif modifiable sans préavis). Étiquette énergie : A. Différents modèles disponibles pour ce terrain. Assurances et garanties du constructeur comprises (RC professionnelle, décennale, dommage ouvrage).
MAISONS BALENCY Domexpo Ouest 78310 Coignières
Référence : AD2281944_1
Bien En copropriété : non
* Prix net, hors frais notarié, d'enregistrement et de publicité foncière.
Contactez
MAISONS BALENCY
N° de téléphone
Nous contacter