Parné-sur-roc (53260)
Maison - 3 pièce(s) - 71 m²
203 400
€ *
- Référence : 1038058_1005119_3523100
- Dernière mise à jour : 04/12/2025
Pour la nouvelle notation (DPE à partir de juillet 2021), c'est la plus mauvaise des deux performances (énergie, climat) qui est retenue.
VENTE d'une maison F3 (71 m²) à Parné-sur-Roc
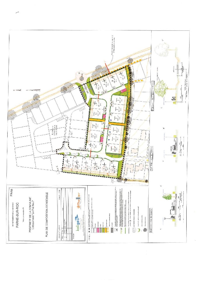
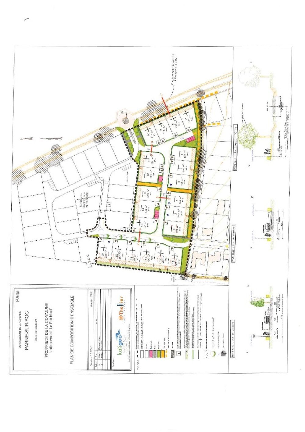
Idéalement située - À Parné-sur-Roc (53260), maison neuve en vente de 3 pièces, 71 m² de surface sur 564 m² de terrain. Conçue de plain-pied, elle dispose de deux chambres, d'une cuisine et d'une salle de bains.
À proximité : écoles, tennis, bibliothèque et épicerie. Nationale N162 accessible à 5 km. Laval à 10 km.
Le prix de vente de cette maison de 3 pièces est de 203 400 €.
N'hésitez pas à prendre contact avec Claire FERBER (tél : ) pour plus d'informations sur la maison de plain-pied ou sur les démarches à suivre. Donnez vie à vos projets immobiliers avec Maisons France Confort Bonchamp-lès-Laval.
Nos offres de terrains sont proposées en collaboration avec nos partenaires fonciers pour des maisons dans le cadre de la loi du 10/12/1990, selon disponibilité.
Surface habitable : 71m2.
Nombre de pièces : 3.
Nombre de chambres : 2.
Prix terrain seul : 50760 euros.
Terrain proposé par un partenaire foncier selon disponibilités et autorisation de publicité au prix de 50 760 €. Hors droit d'enregistrement et frais de notaire. Maison proposée, avec un contrat de construction de maison individuelle, dans le cadre de la loi du 19/12/1990, au prix de 152 640 € (Hors branchements et raccordements, papiers peints, peintures, revêtement de sol dans les chambres, qui sont chiffrés dans les travaux qui restent à charge du client. Tarif modifiable sans préavis). Étiquette énergie : A. Différents modèles disponibles pour ce terrain. Assurances et garanties du constructeur comprises (RC professionnelle, décennale, dommage ouvrage).
MAISONS FRANCE CONFORT 1000, Boulevard des Grands Bouessays 53960 Bonchamp-lès-Laval
Référence : CF2290522_1
Bien En copropriété : non
Idéalement située - À Parné-sur-Roc (53260), maison neuve en vente de 3 pièces, 71 m² de surface sur 564 m² de terrain. Conçue de plain-pied, elle dispose de deux chambres, d'une cuisine et d'une salle de bains.
À proximité : écoles, tennis, bibliothèque et épicerie. Nationale N162 accessible à 5 km. Laval à 10 km.
Le prix de vente de cette maison de 3 pièces est de 203 400 €.
N'hésitez pas à prendre contact avec Claire FERBER (tél : ) pour plus d'informations sur la maison de plain-pied ou sur les démarches à suivre. Donnez vie à vos projets immobiliers avec Maisons France Confort Bonchamp-lès-Laval.
Nos offres de terrains sont proposées en collaboration avec nos partenaires fonciers pour des maisons dans le cadre de la loi du 10/12/1990, selon disponibilité.
Surface habitable : 71m2.
Nombre de pièces : 3.
Nombre de chambres : 2.
Prix terrain seul : 50760 euros.
Terrain proposé par un partenaire foncier selon disponibilités et autorisation de publicité au prix de 50 760 €. Hors droit d'enregistrement et frais de notaire. Maison proposée, avec un contrat de construction de maison individuelle, dans le cadre de la loi du 19/12/1990, au prix de 152 640 € (Hors branchements et raccordements, papiers peints, peintures, revêtement de sol dans les chambres, qui sont chiffrés dans les travaux qui restent à charge du client. Tarif modifiable sans préavis). Étiquette énergie : A. Différents modèles disponibles pour ce terrain. Assurances et garanties du constructeur comprises (RC professionnelle, décennale, dommage ouvrage).
MAISONS FRANCE CONFORT 1000, Boulevard des Grands Bouessays 53960 Bonchamp-lès-Laval
Référence : CF2290522_1
Bien En copropriété : non
* Prix net, hors frais notarié, d'enregistrement et de publicité foncière.
Contactez
MAISONS FRANCE CONFORT
N° de téléphone
Nous contacter