Salon-de-provence (13300)
Maison - 1 pièce(s) - 89 m²
352 000
€ *
- Référence : 1005204_1005119_3528034
- Dernière mise à jour : 06/12/2025
Pour la nouvelle notation (DPE à partir de juillet 2021), c'est la plus mauvaise des deux performances (énergie, climat) qui est retenue.
&
127969; À VENDRE - TERRAIN + PROJET DE CONSTRUCTION - SALON DE PROVENCE (13300)
&
128205; Emplacement idéal &
127795; Environnement résidentiel &
127968; Maison neuve personnalisable
Accès rapide à l'autoroute.
Vous rêvez de construire votre maison dans un cadre naturel tout en restant proche des commodités ?
Ne cherchez plus !
&
128208; Terrain constructible de 510 m², situé dans un quartier résidentiel de Salon de Provence, à proximité immédiate du centre-ville, des écoles, commerces, et de la gare.
&
128736;&
65039; Projet de construction sur mesure :
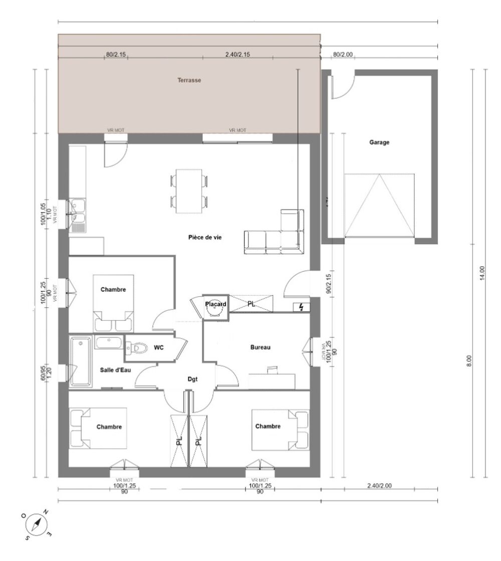
Maison individuelle de 89 m², composée de :
Grande pièce de vie lumineuse
Cuisine ouverte
3 chambres + 1 bureau
Salles de bains moderne
Garage / Terrasse / Jardin (selon plans en option) prix sur demande
&
127959;&
65039; Construction réalisée par un constructeur national reconnu, avec garanties décennales et normes RE2020. CCMI
&
9989; Les + :
Quartier calme et familial
Orientation optimale
Possibilité de personnaliser les plans
Frais de notaire en sus
Éligible au PTZ (Prêt à Taux Zéro) selon votre situation.
&
128176; Prix global (terrain + maison) à partir de : 352000€
Tarif donné à titre indicatif, selon modèle et prestations choisies
&
128222; Contactez-nous ou , dès aujourd'hui pour plus d'informations, une étude gratuite de votre projet ou une visite du terrain !
Nos offres de terrains sont proposées en collaboration avec nos partenaires fonciers pour des maisons dans le cadre de la loi du 10/12/1990, selon disponibilité.
Surface habitable : 89m2.
Nombre de pièces : 1.
Nombre de chambres : 1.
Prix terrain seul : 201000 euros.
Terrain proposé par un partenaire foncier selon disponibilités et autorisation de publicité au prix de 201 000 €. Hors droit d'enregistrement et frais de notaire. Maison proposée, avec un contrat de construction de maison individuelle, dans le cadre de la loi du 19/12/1990, au prix de 151 000 € (Hors branchements et raccordements, papiers peints, peintures, revêtement de sol dans les chambres, qui sont chiffrés dans les travaux qui restent à charge du client. Tarif modifiable sans préavis). Étiquette énergie : A. Différents modèles disponibles pour ce terrain. Assurances et garanties du constructeur comprises (RC professionnelle, décennale, dommage ouvrage).
MAISONS FRANCE CONFORT 229, Avenue Georges Borel 13300 Salon-de-Provence
Référence : SCS2295496_1
Bien En copropriété : non
127969; À VENDRE - TERRAIN + PROJET DE CONSTRUCTION - SALON DE PROVENCE (13300)
&
128205; Emplacement idéal &
127795; Environnement résidentiel &
127968; Maison neuve personnalisable
Accès rapide à l'autoroute.
Vous rêvez de construire votre maison dans un cadre naturel tout en restant proche des commodités ?
Ne cherchez plus !
&
128208; Terrain constructible de 510 m², situé dans un quartier résidentiel de Salon de Provence, à proximité immédiate du centre-ville, des écoles, commerces, et de la gare.
&
128736;&
65039; Projet de construction sur mesure :
Maison individuelle de 89 m², composée de :
Grande pièce de vie lumineuse
Cuisine ouverte
3 chambres + 1 bureau
Salles de bains moderne
Garage / Terrasse / Jardin (selon plans en option) prix sur demande
&
127959;&
65039; Construction réalisée par un constructeur national reconnu, avec garanties décennales et normes RE2020. CCMI
&
9989; Les + :
Quartier calme et familial
Orientation optimale
Possibilité de personnaliser les plans
Frais de notaire en sus
Éligible au PTZ (Prêt à Taux Zéro) selon votre situation.
&
128176; Prix global (terrain + maison) à partir de : 352000€
Tarif donné à titre indicatif, selon modèle et prestations choisies
&
128222; Contactez-nous ou , dès aujourd'hui pour plus d'informations, une étude gratuite de votre projet ou une visite du terrain !
Nos offres de terrains sont proposées en collaboration avec nos partenaires fonciers pour des maisons dans le cadre de la loi du 10/12/1990, selon disponibilité.
Surface habitable : 89m2.
Nombre de pièces : 1.
Nombre de chambres : 1.
Prix terrain seul : 201000 euros.
Terrain proposé par un partenaire foncier selon disponibilités et autorisation de publicité au prix de 201 000 €. Hors droit d'enregistrement et frais de notaire. Maison proposée, avec un contrat de construction de maison individuelle, dans le cadre de la loi du 19/12/1990, au prix de 151 000 € (Hors branchements et raccordements, papiers peints, peintures, revêtement de sol dans les chambres, qui sont chiffrés dans les travaux qui restent à charge du client. Tarif modifiable sans préavis). Étiquette énergie : A. Différents modèles disponibles pour ce terrain. Assurances et garanties du constructeur comprises (RC professionnelle, décennale, dommage ouvrage).
MAISONS FRANCE CONFORT 229, Avenue Georges Borel 13300 Salon-de-Provence
Référence : SCS2295496_1
Bien En copropriété : non
* Prix net, hors frais notarié, d'enregistrement et de publicité foncière.
Contactez
MAISONS FRANCE CONFORT
N° de téléphone
Nous contacter