Salins (77148)
Maison - 6 pièce(s) - 120 m²
280 800
€ *
- Référence : 1055113_1005141_3535017
- Dernière mise à jour : 15/01/2026
Pour la nouvelle notation (DPE à partir de juillet 2021), c'est la plus mauvaise des deux performances (énergie, climat) qui est retenue.
Contactez Stéphanie SEBAG de l'agence Maisons Evolution de Mareuil-lès-Meaux pour avoir plus d'informations sur ce projet.
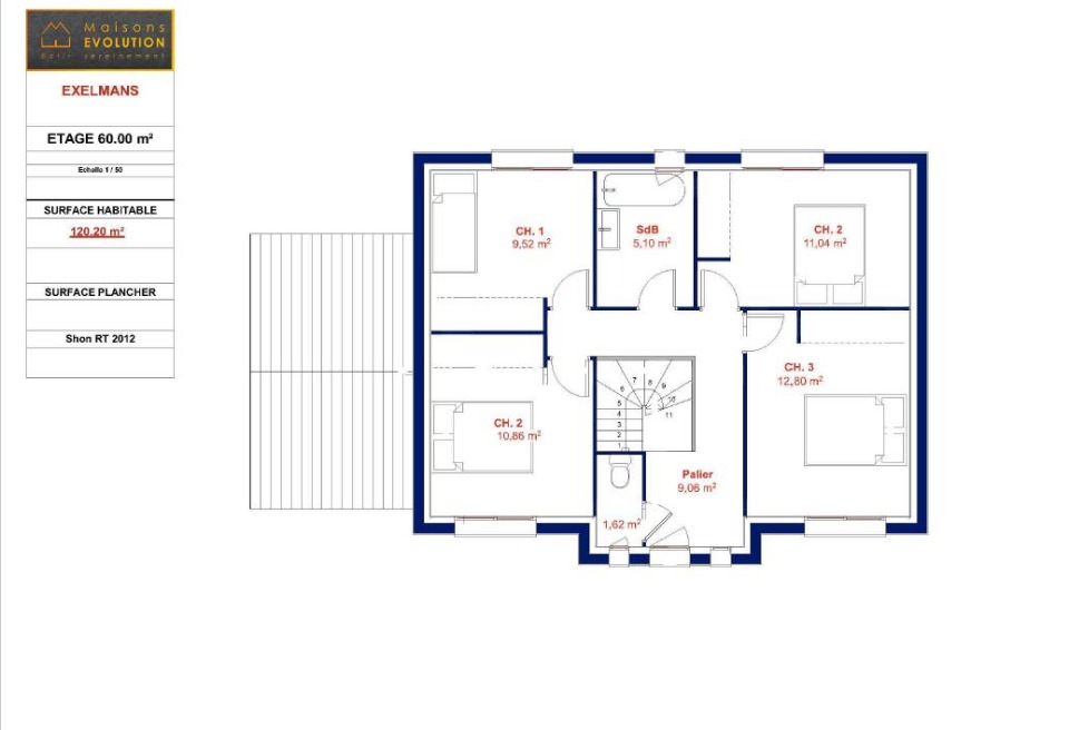
Très jolie maison moderne à étage de 120 m² habitables avec garage accolé idéalement située sur la commune de SALINS
Elle est composée de 4 chambres au total dont une grande suite parentale avec salle d'eau selon vos besoins, d'une seconde salle de bains, de deux WC séparés et d'un grand salon-séjour lumineux avec cuisine ouverte donnant sur un grand cellier/buanderie puis sur le garage.
Les plans sont entièrement modifiables selon vos souhaits, en agence ou visioconférence. Nous vous proposons un véritable accompagnement de qualité tout au long de votre projet.
Dessinons ensemble votre future maison !
Tel :
Annonce proposée par un Agent Commercial Partenaire.
Nos offres de terrains sont proposées en collaboration avec nos partenaires fonciers pour des maisons dans le cadre de la loi du 10/12/1990, selon disponibilité.
Surface habitable : 120m2.
Nombre de pièces : 6.
Nombre de chambres : 4.
Prix terrain seul : 72800 euros.
Terrain proposé par un partenaire foncier selon disponibilités et autorisation de publicité au prix de 72 800 €. Hors droit d'enregistrement et frais de notaire. Terrain + Maison proposés au prix de 208 000 € (Hors branchements et raccordements, papiers peints, peintures, revêtement de sol dans les chambres. Tarif modifiable sans préavis). Etiquette énergie : A. Différents modèles disponibles pour ce terrain. Assurances et garanties du constructeur (RC professionnelle, décennale, dommage ouvrage, garantie de remboursement de l'acompte, livraison à prix et délai convenu) :
MAISONS EVOLUTION 1 Rue Pierre de Ronsard 77100 Mareuil-lès-Meaux
Référence : SS2302115_4
Bien En copropriété : non
Très jolie maison moderne à étage de 120 m² habitables avec garage accolé idéalement située sur la commune de SALINS
Elle est composée de 4 chambres au total dont une grande suite parentale avec salle d'eau selon vos besoins, d'une seconde salle de bains, de deux WC séparés et d'un grand salon-séjour lumineux avec cuisine ouverte donnant sur un grand cellier/buanderie puis sur le garage.
Les plans sont entièrement modifiables selon vos souhaits, en agence ou visioconférence. Nous vous proposons un véritable accompagnement de qualité tout au long de votre projet.
Dessinons ensemble votre future maison !
Tel :
Annonce proposée par un Agent Commercial Partenaire.
Nos offres de terrains sont proposées en collaboration avec nos partenaires fonciers pour des maisons dans le cadre de la loi du 10/12/1990, selon disponibilité.
Surface habitable : 120m2.
Nombre de pièces : 6.
Nombre de chambres : 4.
Prix terrain seul : 72800 euros.
Terrain proposé par un partenaire foncier selon disponibilités et autorisation de publicité au prix de 72 800 €. Hors droit d'enregistrement et frais de notaire. Terrain + Maison proposés au prix de 208 000 € (Hors branchements et raccordements, papiers peints, peintures, revêtement de sol dans les chambres. Tarif modifiable sans préavis). Etiquette énergie : A. Différents modèles disponibles pour ce terrain. Assurances et garanties du constructeur (RC professionnelle, décennale, dommage ouvrage, garantie de remboursement de l'acompte, livraison à prix et délai convenu) :
MAISONS EVOLUTION 1 Rue Pierre de Ronsard 77100 Mareuil-lès-Meaux
Référence : SS2302115_4
Bien En copropriété : non
* Prix net, hors frais notarié, d'enregistrement et de publicité foncière.
Contactez
MAISONS EVOLUTION
N° de téléphone
Nous contacter