Caumont-sur-durance (84510)
Maison - 6 pièce(s) - 130 m²
379 000
€ *
- Référence : 1005185_1005119_3537890
- Dernière mise à jour : 19/01/2026
Pour la nouvelle notation (DPE à partir de juillet 2021), c'est la plus mauvaise des deux performances (énergie, climat) qui est retenue.
VENTE : maison F6 (130 m²) à Caumont-sur-Durance
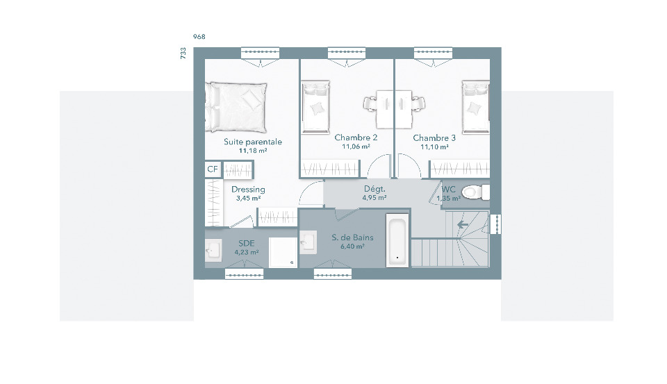
Idéalement située - Maison neuve 6 pièces en vente à Caumont-sur-Durance (84510) avec 2 niveaux, une surface de 130 m² et de 442 m² de terrain. Son intérieur est composé de quatre chambres, d'une cuisine et de trois salles de bains.
À proximité : gares, écoles, tennis, bibliothèque, commerces, boulangeries, poissonnerie, épicerie et bureau de poste. Accès autoroute A7 et nationale N129 à 3 km. Mer Méditerranée à 38 km. Avignon à 12 km.
Le prix de vente de cette maison de 6 pièces est de 379 000 €.
Contactez notre agence (Julien FANTOZZI : ) pour toute question sur la maison, sur les modalités de vente ou sur les démarches à suivre.
Nos offres de terrains sont proposées en collaboration avec nos partenaires fonciers pour des maisons dans le cadre de la loi du 10/12/1990, selon disponibilité.
Surface habitable : 130m2.
Nombre de pièces : 6.
Nombre de chambres : 4.
Prix terrain seul : 135000 euros.
Terrain proposé par un partenaire foncier selon disponibilités et autorisation de publicité au prix de 135 000 €. Hors droit d'enregistrement et frais de notaire. Terrain + Maison proposés au prix de 244 000 € (Hors branchements et raccordements, papiers peints, peintures, revêtement de sol dans les chambres. Tarif modifiable sans préavis). Etiquette énergie : A. Différents modèles disponibles pour ce terrain. Assurances et garanties du constructeur (RC professionnelle, décennale, dommage ouvrage, garantie de remboursement de l'acompte, livraison à prix et délai convenu) : HEXAOM Services est enregistré auprès de l'ORIAS en tant que Courtier en financement, Niveau 1, sous le numéro 14001345.
MAISONS FRANCE CONFORT 267 avenue de Fontvert 84130 Le Pontet
Référence : JF2301807_3
Bien En copropriété : non
Idéalement située - Maison neuve 6 pièces en vente à Caumont-sur-Durance (84510) avec 2 niveaux, une surface de 130 m² et de 442 m² de terrain. Son intérieur est composé de quatre chambres, d'une cuisine et de trois salles de bains.
À proximité : gares, écoles, tennis, bibliothèque, commerces, boulangeries, poissonnerie, épicerie et bureau de poste. Accès autoroute A7 et nationale N129 à 3 km. Mer Méditerranée à 38 km. Avignon à 12 km.
Le prix de vente de cette maison de 6 pièces est de 379 000 €.
Contactez notre agence (Julien FANTOZZI : ) pour toute question sur la maison, sur les modalités de vente ou sur les démarches à suivre.
Nos offres de terrains sont proposées en collaboration avec nos partenaires fonciers pour des maisons dans le cadre de la loi du 10/12/1990, selon disponibilité.
Surface habitable : 130m2.
Nombre de pièces : 6.
Nombre de chambres : 4.
Prix terrain seul : 135000 euros.
Terrain proposé par un partenaire foncier selon disponibilités et autorisation de publicité au prix de 135 000 €. Hors droit d'enregistrement et frais de notaire. Terrain + Maison proposés au prix de 244 000 € (Hors branchements et raccordements, papiers peints, peintures, revêtement de sol dans les chambres. Tarif modifiable sans préavis). Etiquette énergie : A. Différents modèles disponibles pour ce terrain. Assurances et garanties du constructeur (RC professionnelle, décennale, dommage ouvrage, garantie de remboursement de l'acompte, livraison à prix et délai convenu) : HEXAOM Services est enregistré auprès de l'ORIAS en tant que Courtier en financement, Niveau 1, sous le numéro 14001345.
MAISONS FRANCE CONFORT 267 avenue de Fontvert 84130 Le Pontet
Référence : JF2301807_3
Bien En copropriété : non
* Prix net, hors frais notarié, d'enregistrement et de publicité foncière.
Contactez
MAISONS FRANCE CONFORT
N° de téléphone
Nous contacter