Surville (27400)
Maison - 6 pièce(s) - 89 m²
205 000
€ *
- Référence : 1041872_1005120_3541536
- Dernière mise à jour : 16/01/2026
Pour la nouvelle notation (DPE à partir de juillet 2021), c'est la plus mauvaise des deux performances (énergie, climat) qui est retenue.
Maison F6 (89 m²) à vendre à Surville
PROCHE DE ROUEN - MAISON 6 PIÈCES NEUVE
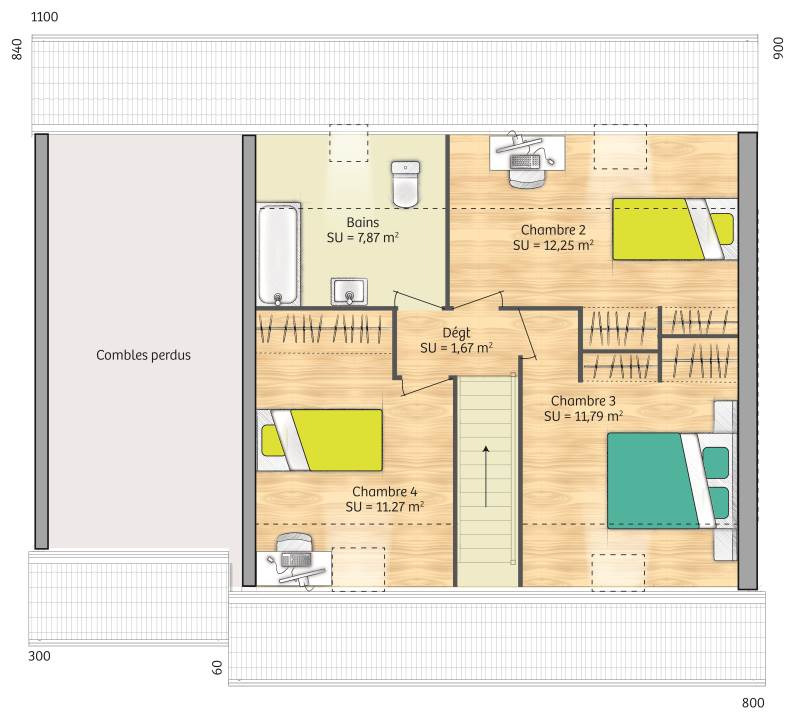
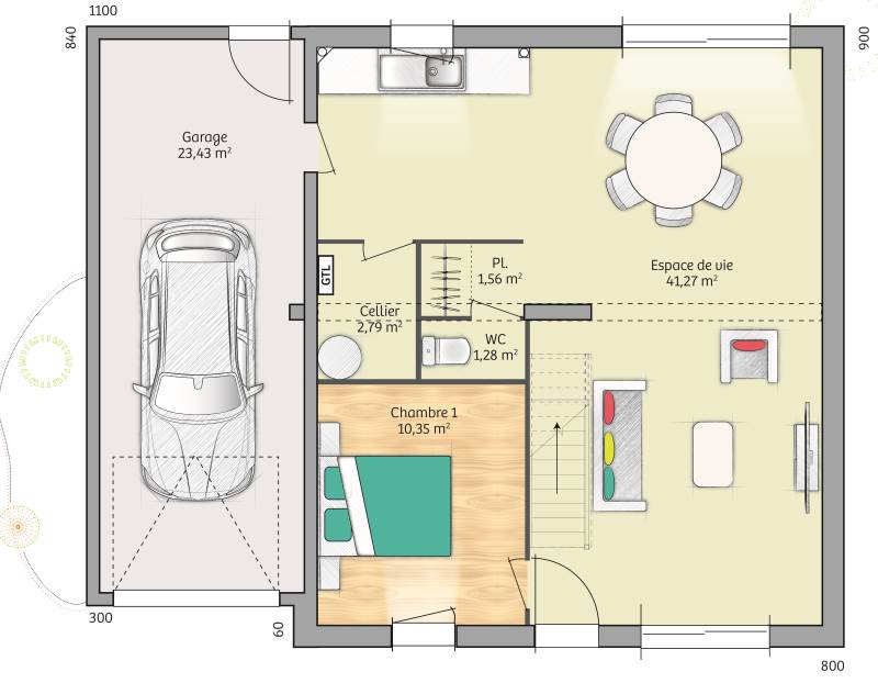
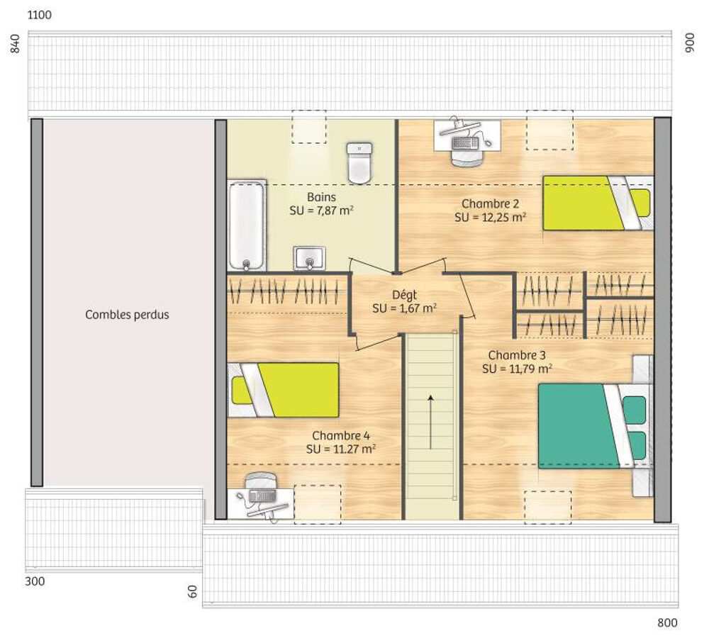
Maison au style contemporain qui offre quatre chambres, dont une au RDC. A l'étage, les 3 autres chambres accompagnées d'une salle de bain et de WC. Lorsque vous entrez dans la grande pièce de vie ouverte, vous découvrez sur un grand séjour lumineux avec ses baies coulissantes en alu, une cuisine donnant sur la salle a manger et un cellier en arrière cuisine. Cette construction dispose de prestations de qualité ; chauffage par pompe a chaleur, répondant aux normes RE2020 en vigueurs, menuiseries alu laquées ou en PVC avec volets roulant électriques, domotique et centralisation, carrelage design dans la gamme constructeur, choix des portes intérieures, des appuis de fenêtres, couverture en terre cuite ou en ardoise...
Les finitions de ce modèle seront une véritable source de fierté.
N'hésitez pas à prendre contact avec Karen GOHIER () pour toute information sur la maison, sur les démarches à suivre ou sur les modalités de vente. Donnez vie à vos projets immobiliers avec Maisons Balency Louviers.
Annonce proposée par un Agent Commercial Partenaire.
Nos offres de terrains sont proposées en collaboration avec nos partenaires fonciers pour des maisons dans le cadre de la loi du 10/12/1990, selon disponibilité.
Surface habitable : 89m2.
Nombre de pièces : 6.
Nombre de chambres : 4.
Prix terrain seul : 55000 euros.
Terrain proposé par un partenaire foncier selon disponibilités et autorisation de publicité au prix de 55 000 €. Hors droit d'enregistrement et frais de notaire. Maison proposée, avec un contrat de construction de maison individuelle, dans le cadre de la loi du 19/12/1990, au prix de 150 000 € (Hors branchements et raccordements, papiers peints, peintures, revêtement de sol dans les chambres, qui sont chiffrés dans les travaux qui restent à charge du client. Tarif modifiable sans préavis). Étiquette énergie : A. Différents modèles disponibles pour ce terrain. Assurances et garanties du constructeur comprises (RC professionnelle, décennale, dommage ouvrage).
MAISONS BALENCY 7 boulevard Georges Clémenceau 27400 Louviers
Référence : KG2308127_1
Bien En copropriété : non
PROCHE DE ROUEN - MAISON 6 PIÈCES NEUVE
Maison au style contemporain qui offre quatre chambres, dont une au RDC. A l'étage, les 3 autres chambres accompagnées d'une salle de bain et de WC. Lorsque vous entrez dans la grande pièce de vie ouverte, vous découvrez sur un grand séjour lumineux avec ses baies coulissantes en alu, une cuisine donnant sur la salle a manger et un cellier en arrière cuisine. Cette construction dispose de prestations de qualité ; chauffage par pompe a chaleur, répondant aux normes RE2020 en vigueurs, menuiseries alu laquées ou en PVC avec volets roulant électriques, domotique et centralisation, carrelage design dans la gamme constructeur, choix des portes intérieures, des appuis de fenêtres, couverture en terre cuite ou en ardoise...
Les finitions de ce modèle seront une véritable source de fierté.
N'hésitez pas à prendre contact avec Karen GOHIER () pour toute information sur la maison, sur les démarches à suivre ou sur les modalités de vente. Donnez vie à vos projets immobiliers avec Maisons Balency Louviers.
Annonce proposée par un Agent Commercial Partenaire.
Nos offres de terrains sont proposées en collaboration avec nos partenaires fonciers pour des maisons dans le cadre de la loi du 10/12/1990, selon disponibilité.
Surface habitable : 89m2.
Nombre de pièces : 6.
Nombre de chambres : 4.
Prix terrain seul : 55000 euros.
Terrain proposé par un partenaire foncier selon disponibilités et autorisation de publicité au prix de 55 000 €. Hors droit d'enregistrement et frais de notaire. Maison proposée, avec un contrat de construction de maison individuelle, dans le cadre de la loi du 19/12/1990, au prix de 150 000 € (Hors branchements et raccordements, papiers peints, peintures, revêtement de sol dans les chambres, qui sont chiffrés dans les travaux qui restent à charge du client. Tarif modifiable sans préavis). Étiquette énergie : A. Différents modèles disponibles pour ce terrain. Assurances et garanties du constructeur comprises (RC professionnelle, décennale, dommage ouvrage).
MAISONS BALENCY 7 boulevard Georges Clémenceau 27400 Louviers
Référence : KG2308127_1
Bien En copropriété : non
* Prix net, hors frais notarié, d'enregistrement et de publicité foncière.
Contactez
MAISONS BALENCY
N° de téléphone
Nous contacter