Les issards (09100)
Maison - 6 pièce(s) - 125 m²
257 869
€ *
- Référence : 1005205_1005119_3542693
- Dernière mise à jour : 18/01/2026
Pour la nouvelle notation (DPE à partir de juillet 2021), c'est la plus mauvaise des deux performances (énergie, climat) qui est retenue.
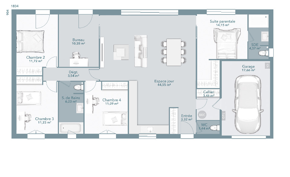
Avec Maisons France Confort Pamiers, devenez propriétaire de cette grande maison de 125 m2 pour 257 869 € Hors frais, sur un terrain de 934 m² sur la commune de Les Issards. Vous allez apprécier ses grandes pièces et ses grandes baies vitrées. Elle se compose pour la partie nuit, d'une salle de bains avec WC et quatre chambres. Petit plus avec une suite parentale de 18m2 séparée. Dans sa partie jour, WC séparés, un espace de vie de 49 m2 avec cellier contigu à la cuisine ouverte et au garage de 18m2. Pour rendre votre projet unique, il est totalement personnalisable : les plans, le niveau de prestations, le système de chauffage, tout est possible, vous décidez suivant vos envies et votre budget. Maisons France Confort vous offre dans votre contrat de construction de maison individuelle toutes les garanties. Faites maintenant le choix du 1er constructeur en Midi Pyrénées pour un accompagnement de haute qualité à toutes les étapes de votre projet et un résultat optimal. Alors pour toutes informations, étude personnalisée et gratuite de votre projet, c'est facile contactez l'agence Maisons France Confort de Pamiers
Annonce proposée par un Agent Commercial Partenaire.
Nos offres de terrains sont proposées en collaboration avec nos partenaires fonciers pour des maisons dans le cadre de la loi du 10/12/1990, selon disponibilité.
Surface habitable : 125m2.
Nombre de pièces : 6.
Nombre de chambres : 5.
Prix terrain seul : 61000 euros.
Terrain proposé par un partenaire foncier selon disponibilités et autorisation de publicité au prix de 61 000 €. Hors droit d'enregistrement et frais de notaire. Maison proposée, avec un contrat de construction de maison individuelle, dans le cadre de la loi du 19/12/1990, au prix de 196 869 € (Hors branchements et raccordements, papiers peints, peintures, revêtement de sol dans les chambres, qui sont chiffrés dans les travaux qui restent à charge du client. Tarif modifiable sans préavis). Étiquette énergie : A. Différents modèles disponibles pour ce terrain. Assurances et garanties du constructeur comprises (RC professionnelle, décennale, dommage ouvrage).
MAISONS FRANCE CONFORT 4 route de Foix 09100 Pamiers
Référence : FA2308844_2
Bien En copropriété : non
Annonce proposée par un Agent Commercial Partenaire.
Nos offres de terrains sont proposées en collaboration avec nos partenaires fonciers pour des maisons dans le cadre de la loi du 10/12/1990, selon disponibilité.
Surface habitable : 125m2.
Nombre de pièces : 6.
Nombre de chambres : 5.
Prix terrain seul : 61000 euros.
Terrain proposé par un partenaire foncier selon disponibilités et autorisation de publicité au prix de 61 000 €. Hors droit d'enregistrement et frais de notaire. Maison proposée, avec un contrat de construction de maison individuelle, dans le cadre de la loi du 19/12/1990, au prix de 196 869 € (Hors branchements et raccordements, papiers peints, peintures, revêtement de sol dans les chambres, qui sont chiffrés dans les travaux qui restent à charge du client. Tarif modifiable sans préavis). Étiquette énergie : A. Différents modèles disponibles pour ce terrain. Assurances et garanties du constructeur comprises (RC professionnelle, décennale, dommage ouvrage).
MAISONS FRANCE CONFORT 4 route de Foix 09100 Pamiers
Référence : FA2308844_2
Bien En copropriété : non
* Prix net, hors frais notarié, d'enregistrement et de publicité foncière.
Contactez
MAISONS FRANCE CONFORT
N° de téléphone
Nous contacter