Givrand (85800)
Maison - 2 pièce(s) - 50 m²
189 900
€ *
- Référence : 1041059_1005150_3546881
- Dernière mise à jour : 22/12/2025
Pour la nouvelle notation (DPE à partir de juillet 2021), c'est la plus mauvaise des deux performances (énergie, climat) qui est retenue.
****PROCHE DU BOURG ET A SEULEMENT QUELQUES MINUTES DE LA MER*****
VENTE d'une maison de 2 pièces (50 m²) à Givrand
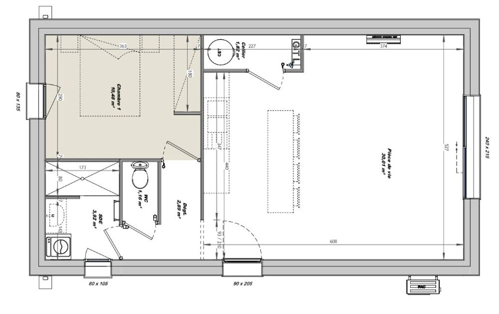
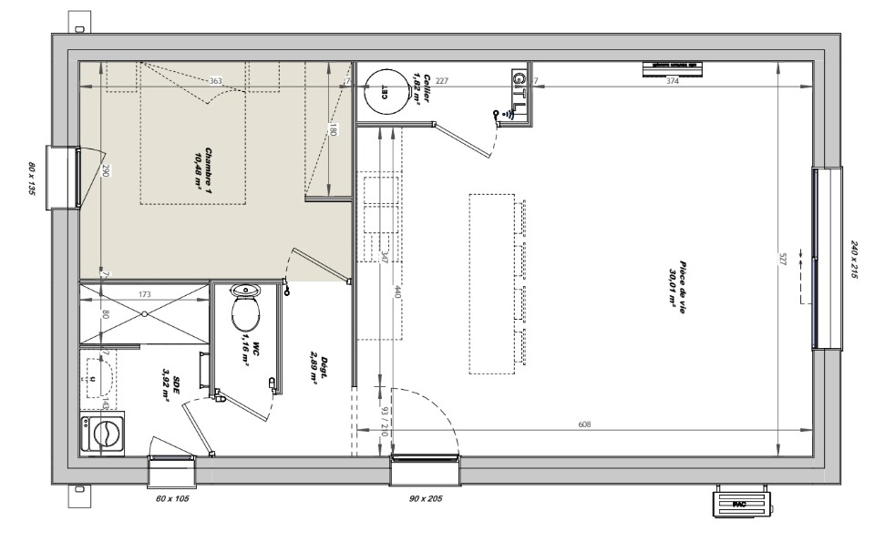
À découvrir à Givrand (85800) : maison neuve 2 pièces à vendre. Surface de 50 m² sur 380 m² de terrain. Elle comporte une chambre, une cuisine et une salle de bains.
À dix minutes : gares (Saint-Gilles-Croix-de-Vie et Saint-Hilaire-de-Riez), École Primaire Privée la Fontaine, boulangerie et commerce. Océan Atlantique à 4 km.
Le prix de vente de cette maison de 2 pièces est de 189 900 €.
Contactez notre agence (Nicolas RISSELIN : ) pour obtenir de plus amples informations sur la maison de plain-pied, sur les démarches à suivre ou sur les modalités de vente.
****PROCHE DU BOURG ET A SEULEMENT QUELQUES MINUTES DE LA MER*****
Nos offres de terrains sont proposées en collaboration avec nos partenaires fonciers pour des maisons dans le cadre de la loi du 10/12/1990, selon disponibilité.
Surface habitable : 50m2.
Nombre de pièces : 2.
Nombre de chambres : 1.
Prix terrain seul : 84000 euros.
Terrain proposé par un partenaire foncier selon disponibilités et autorisation de publicité au prix de 84 000 €. Hors droit d'enregistrement et frais de notaire. Maison proposée, avec un contrat de construction de maison individuelle, dans le cadre de la loi du 19/12/1990, au prix de 105 900 € (Hors branchements et raccordements, papiers peints, peintures, revêtement de sol dans les chambres, qui sont chiffrés dans les travaux qui restent à charge du client. Tarif modifiable sans préavis). Étiquette énergie : A. Différents modèles disponibles pour ce terrain. Assurances et garanties du constructeur comprises (RC professionnelle, décennale, dommage ouvrage).
LMP CONSTRUCTEUR 5 rue Gautté 85800 Saint-Gilles-Croix-de-Vie
Référence : NR2313195_1
Bien En copropriété : non
VENTE d'une maison de 2 pièces (50 m²) à Givrand
À découvrir à Givrand (85800) : maison neuve 2 pièces à vendre. Surface de 50 m² sur 380 m² de terrain. Elle comporte une chambre, une cuisine et une salle de bains.
À dix minutes : gares (Saint-Gilles-Croix-de-Vie et Saint-Hilaire-de-Riez), École Primaire Privée la Fontaine, boulangerie et commerce. Océan Atlantique à 4 km.
Le prix de vente de cette maison de 2 pièces est de 189 900 €.
Contactez notre agence (Nicolas RISSELIN : ) pour obtenir de plus amples informations sur la maison de plain-pied, sur les démarches à suivre ou sur les modalités de vente.
****PROCHE DU BOURG ET A SEULEMENT QUELQUES MINUTES DE LA MER*****
Nos offres de terrains sont proposées en collaboration avec nos partenaires fonciers pour des maisons dans le cadre de la loi du 10/12/1990, selon disponibilité.
Surface habitable : 50m2.
Nombre de pièces : 2.
Nombre de chambres : 1.
Prix terrain seul : 84000 euros.
Terrain proposé par un partenaire foncier selon disponibilités et autorisation de publicité au prix de 84 000 €. Hors droit d'enregistrement et frais de notaire. Maison proposée, avec un contrat de construction de maison individuelle, dans le cadre de la loi du 19/12/1990, au prix de 105 900 € (Hors branchements et raccordements, papiers peints, peintures, revêtement de sol dans les chambres, qui sont chiffrés dans les travaux qui restent à charge du client. Tarif modifiable sans préavis). Étiquette énergie : A. Différents modèles disponibles pour ce terrain. Assurances et garanties du constructeur comprises (RC professionnelle, décennale, dommage ouvrage).
LMP CONSTRUCTEUR 5 rue Gautté 85800 Saint-Gilles-Croix-de-Vie
Référence : NR2313195_1
Bien En copropriété : non
* Prix net, hors frais notarié, d'enregistrement et de publicité foncière.
Contactez
LMP CONSTRUCTEUR
N° de téléphone
Nous contacter