Martigues (13500)
Maison - 4 pièce(s) - 71 m²
378 890
€ *
- Référence : 1005409_1005132_3560423
- Dernière mise à jour : 05/12/2025
Pour la nouvelle notation (DPE à partir de juillet 2021), c'est la plus mauvaise des deux performances (énergie, climat) qui est retenue.
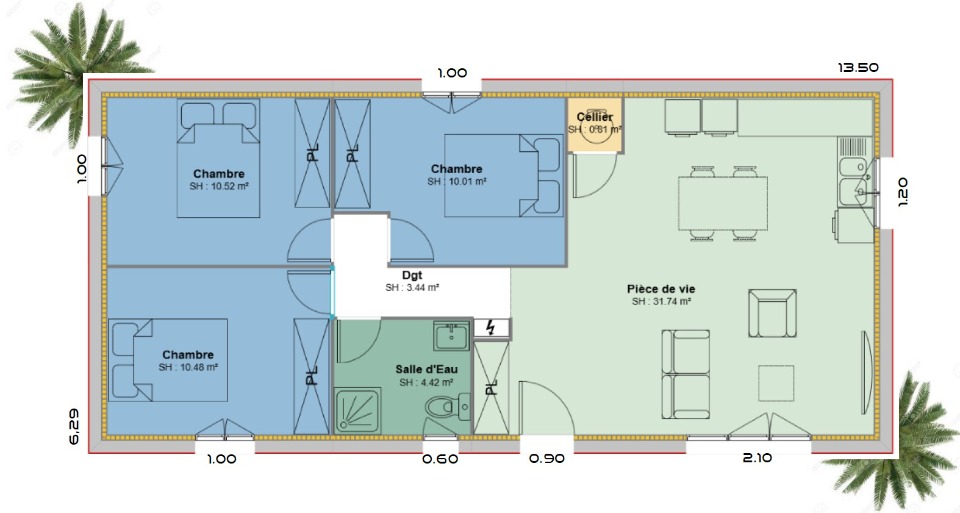
VENTE d'une maison de 4 pièces (71 m²) à Martigues
Emplacement privilégié - À Martigues (13500), maison neuve à vendre de 4 pièces, 71 m² sur 378 m² de terrain. Conçue de plain-pied, elle propose trois chambres, une cuisine et une salle de bains.
À dix minutes : gares, établissements scolaires, crèches, marchés, bibliothèques, tennis, bassin de natation, ports de plaisance, boulangeries, commerces, supermarchés, boucheries-charcuteries et épiceries. Autoroute A55 et nationale N568 accessibles à 6 km. Mer Méditerranée à 3 km.
Cette maison de 4 pièces est à vendre pour la somme de 378 890 €.
N'hésitez pas à prendre contact avec Anthony ANGELI () pour toute question sur la maison. Azur & Constructions Cabriès est là pour vous accompagner dans toutes vos démarches.
Nos offres de terrains sont proposées en collaboration avec nos partenaires fonciers pour des maisons dans le cadre de la loi du 10/12/1990, selon disponibilité.
Surface habitable : 71m2.
Nombre de pièces : 4.
Nombre de chambres : 3.
Prix terrain seul : 240000 euros.
Terrain proposé par un partenaire foncier selon disponibilités et autorisation de publicité au prix de 240 000 €. Hors droit d'enregistrement et frais de notaire. Maison proposée, avec un contrat de construction de maison individuelle, dans le cadre de la loi du 19/12/1990, au prix de 138 890 € (Hors branchements et raccordements, papiers peints, peintures, revêtement de sol dans les chambres, qui sont chiffrés dans les travaux qui restent à charge du client. Tarif modifiable sans préavis). Étiquette énergie : A. Différents modèles disponibles pour ce terrain. Assurances et garanties du constructeur comprises (RC professionnelle, décennale, dommage ouvrage).
AZUR & CONSTRUCTIONS Expobat Villa n°13 13480 Cabriès
Référence : AA2326288_1
Bien En copropriété : non
Emplacement privilégié - À Martigues (13500), maison neuve à vendre de 4 pièces, 71 m² sur 378 m² de terrain. Conçue de plain-pied, elle propose trois chambres, une cuisine et une salle de bains.
À dix minutes : gares, établissements scolaires, crèches, marchés, bibliothèques, tennis, bassin de natation, ports de plaisance, boulangeries, commerces, supermarchés, boucheries-charcuteries et épiceries. Autoroute A55 et nationale N568 accessibles à 6 km. Mer Méditerranée à 3 km.
Cette maison de 4 pièces est à vendre pour la somme de 378 890 €.
N'hésitez pas à prendre contact avec Anthony ANGELI () pour toute question sur la maison. Azur & Constructions Cabriès est là pour vous accompagner dans toutes vos démarches.
Nos offres de terrains sont proposées en collaboration avec nos partenaires fonciers pour des maisons dans le cadre de la loi du 10/12/1990, selon disponibilité.
Surface habitable : 71m2.
Nombre de pièces : 4.
Nombre de chambres : 3.
Prix terrain seul : 240000 euros.
Terrain proposé par un partenaire foncier selon disponibilités et autorisation de publicité au prix de 240 000 €. Hors droit d'enregistrement et frais de notaire. Maison proposée, avec un contrat de construction de maison individuelle, dans le cadre de la loi du 19/12/1990, au prix de 138 890 € (Hors branchements et raccordements, papiers peints, peintures, revêtement de sol dans les chambres, qui sont chiffrés dans les travaux qui restent à charge du client. Tarif modifiable sans préavis). Étiquette énergie : A. Différents modèles disponibles pour ce terrain. Assurances et garanties du constructeur comprises (RC professionnelle, décennale, dommage ouvrage).
AZUR & CONSTRUCTIONS Expobat Villa n°13 13480 Cabriès
Référence : AA2326288_1
Bien En copropriété : non
* Prix net, hors frais notarié, d'enregistrement et de publicité foncière.
Contactez
AZUR & CONSTRUCTIONS
N° de téléphone
Nous contacter