Coëx (85220)
Maison - 4 pièce(s) - 84 m²
259 900
€ *
- Référence : 1005501_1005150_3539487
- Dernière mise à jour : 13/01/2026
Pour la nouvelle notation (DPE à partir de juillet 2021), c'est la plus mauvaise des deux performances (énergie, climat) qui est retenue.
***** CENTRE VILLE ******
Coëx : maison F4 (84 m²) en vente
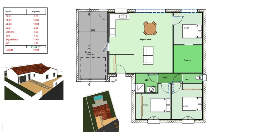
Idéalement située - À Coëx (85220), maison neuve en vente de 4 pièces, 84 m² de surface sur 400 m² de terrain. Elle propose trois chambres, une cuisine et une salle de bains.
À dix minutes : écoles, tennis, boulangeries, commerces, supermarché, épicerie et boucheries-charcuteries. Autoroute A87 à 20 km. Océan Atlantique à 13 km. La Roche-sur-Yon à 26 km.
Cette maison de 4 pièces est à vendre pour la somme de 259 900 €.
N'hésitez pas à prendre contact avec Nicolas RISSELIN () pour tout renseignement sur la maison, sur les démarches à suivre ou sur les modalités de vente. LMP Constructeur Saint-Gilles-Croix-de-Vie vous accompagne dans tous vos projets immobiliers et à toutes les étapes de votre projet.
***** CENTRE VILLE ******
Nos offres de terrains sont proposées en collaboration avec nos partenaires fonciers pour des maisons dans le cadre de la loi du 10/12/1990, selon disponibilité.
Surface habitable : 84m2.
Nombre de pièces : 4.
Nombre de chambres : 3.
Prix terrain seul : 90000 euros.
Terrain proposé par un partenaire foncier selon disponibilités et autorisation de publicité au prix de 90 000 €. Hors droit d'enregistrement et frais de notaire. Terrain + Maison proposés au prix de 169 900 € (Hors branchements et raccordements, papiers peints, peintures, revêtement de sol dans les chambres. Tarif modifiable sans préavis). Etiquette énergie : A. Différents modèles disponibles pour ce terrain. Assurances et garanties du constructeur (RC professionnelle, décennale, dommage ouvrage, garantie de remboursement de l'acompte, livraison à prix et délai convenu) :
LMP CONSTRUCTEUR 4 Place du Champ de Foire 85300 Challans
Référence : NR2305579_5
Bien En copropriété : non
Coëx : maison F4 (84 m²) en vente
Idéalement située - À Coëx (85220), maison neuve en vente de 4 pièces, 84 m² de surface sur 400 m² de terrain. Elle propose trois chambres, une cuisine et une salle de bains.
À dix minutes : écoles, tennis, boulangeries, commerces, supermarché, épicerie et boucheries-charcuteries. Autoroute A87 à 20 km. Océan Atlantique à 13 km. La Roche-sur-Yon à 26 km.
Cette maison de 4 pièces est à vendre pour la somme de 259 900 €.
N'hésitez pas à prendre contact avec Nicolas RISSELIN () pour tout renseignement sur la maison, sur les démarches à suivre ou sur les modalités de vente. LMP Constructeur Saint-Gilles-Croix-de-Vie vous accompagne dans tous vos projets immobiliers et à toutes les étapes de votre projet.
***** CENTRE VILLE ******
Nos offres de terrains sont proposées en collaboration avec nos partenaires fonciers pour des maisons dans le cadre de la loi du 10/12/1990, selon disponibilité.
Surface habitable : 84m2.
Nombre de pièces : 4.
Nombre de chambres : 3.
Prix terrain seul : 90000 euros.
Terrain proposé par un partenaire foncier selon disponibilités et autorisation de publicité au prix de 90 000 €. Hors droit d'enregistrement et frais de notaire. Terrain + Maison proposés au prix de 169 900 € (Hors branchements et raccordements, papiers peints, peintures, revêtement de sol dans les chambres. Tarif modifiable sans préavis). Etiquette énergie : A. Différents modèles disponibles pour ce terrain. Assurances et garanties du constructeur (RC professionnelle, décennale, dommage ouvrage, garantie de remboursement de l'acompte, livraison à prix et délai convenu) :
LMP CONSTRUCTEUR 4 Place du Champ de Foire 85300 Challans
Référence : NR2305579_5
Bien En copropriété : non
* Prix net, hors frais notarié, d'enregistrement et de publicité foncière.
Contactez
LMP CONSTRUCTEUR
N° de téléphone
Nous contacter