Esvres (37320)
Maison - 4 pièce(s) - 80 m²
265 000
€ *
- Référence : 1044313_1005119_3522244
- Dernière mise à jour : 21/01/2026
Pour la nouvelle notation (DPE à partir de juillet 2021), c'est la plus mauvaise des deux performances (énergie, climat) qui est retenue.
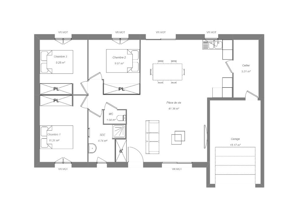
Belle maison de plain-pied d'une superficie totale de 82m².
La disposition de cette maison permet d'opter pour un terrain avec une façade restreinte ainsi que s'adapter facilement aux exigences des terrains classés en bâtiments de France.
Vous retrouverez dans cette jolie maison une pièce à vivre évolutive de 4m², un ensemble de 3 chambres, une salle d'eau ainsi d'un cellier et un WC.
Concernant les prestations globales, vous retrouverez une pompe à chaleur, des menuiseries de couleur en aluminium, des combles aménageables...
Terrain hors lotissement de 700 m² situé à Esvres, proche de toutes commodités, plat et déjà clôturé.
Orientation idéale, et aucun vis à vis.
Me contacter pour plus d'informations
Nos offres de terrains sont proposées en collaboration avec nos partenaires fonciers pour des maisons dans le cadre de la loi du 10/12/1990, selon disponibilité.
Surface habitable : 80m2.
Nombre de pièces : 4.
Nombre de chambres : 3.
Prix terrain seul : 62000 euros.
Terrain proposé par un partenaire foncier selon disponibilités et autorisation de publicité au prix de 62 000 €. Hors droit d'enregistrement et frais de notaire. Terrain + Maison proposés au prix de 203 000 € (Hors branchements et raccordements, papiers peints, peintures, revêtement de sol dans les chambres. Tarif modifiable sans préavis). Etiquette énergie : A. Différents modèles disponibles pour ce terrain. Assurances et garanties du constructeur (RC professionnelle, décennale, dommage ouvrage, garantie de remboursement de l'acompte, livraison à prix et délai convenu) : HEXAOM Services est enregistré auprès de l'ORIAS en tant que Courtier en financement, Niveau 1, sous le numéro 14001345.
MAISONS FRANCE CONFORT 35 rue du général Mocquery 37550 Saint-Avertin
Référence : AG2289590_1
Bien En copropriété : non
La disposition de cette maison permet d'opter pour un terrain avec une façade restreinte ainsi que s'adapter facilement aux exigences des terrains classés en bâtiments de France.
Vous retrouverez dans cette jolie maison une pièce à vivre évolutive de 4m², un ensemble de 3 chambres, une salle d'eau ainsi d'un cellier et un WC.
Concernant les prestations globales, vous retrouverez une pompe à chaleur, des menuiseries de couleur en aluminium, des combles aménageables...
Terrain hors lotissement de 700 m² situé à Esvres, proche de toutes commodités, plat et déjà clôturé.
Orientation idéale, et aucun vis à vis.
Me contacter pour plus d'informations
Nos offres de terrains sont proposées en collaboration avec nos partenaires fonciers pour des maisons dans le cadre de la loi du 10/12/1990, selon disponibilité.
Surface habitable : 80m2.
Nombre de pièces : 4.
Nombre de chambres : 3.
Prix terrain seul : 62000 euros.
Terrain proposé par un partenaire foncier selon disponibilités et autorisation de publicité au prix de 62 000 €. Hors droit d'enregistrement et frais de notaire. Terrain + Maison proposés au prix de 203 000 € (Hors branchements et raccordements, papiers peints, peintures, revêtement de sol dans les chambres. Tarif modifiable sans préavis). Etiquette énergie : A. Différents modèles disponibles pour ce terrain. Assurances et garanties du constructeur (RC professionnelle, décennale, dommage ouvrage, garantie de remboursement de l'acompte, livraison à prix et délai convenu) : HEXAOM Services est enregistré auprès de l'ORIAS en tant que Courtier en financement, Niveau 1, sous le numéro 14001345.
MAISONS FRANCE CONFORT 35 rue du général Mocquery 37550 Saint-Avertin
Référence : AG2289590_1
Bien En copropriété : non
* Prix net, hors frais notarié, d'enregistrement et de publicité foncière.
Contactez
MAISONS FRANCE CONFORT
N° de téléphone
Nous contacter