Châteauneuf-de-gadagne (84470)
Maison - 4 pièce(s) - 73 m²
279 000
€ *
- Référence : 1005185_1005119_3577460
- Dernière mise à jour : 19/01/2026
Pour la nouvelle notation (DPE à partir de juillet 2021), c'est la plus mauvaise des deux performances (énergie, climat) qui est retenue.
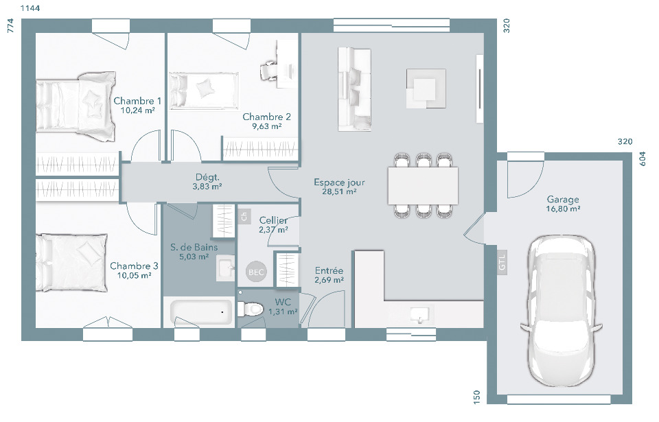
VENTE : maison de 4 pièces (73 m²) à Châteauneuf-de-Gadagne
Idéalement située - À découvrir à Châteauneuf-de-Gadagne (84470) : maison neuve 4 pièces en vente, 73 m² de surface sur 400 m² de terrain. Son intérieur dispose de trois chambres, d'une cuisine et d'une salle de bains.
Proche gare (Gadagne), écoles, crèches, bibliothèque, bassin de natation, commerces, boulangerie, bureau de poste et boucherie-charcuterie. Accès autoroute A7 et nationale N129 à 5 km. Mer Méditerranée à 42 km. Avignon à 9 km.
Cette maison de 4 pièces est à vendre pour la somme de 279 000 €.
N'hésitez pas à prendre contact avec Julien FANTOZZI (tél : ) pour obtenir de plus amples renseignements sur la maison de plain-pied. Concrétisez vos projets immobiliers avec Maisons France Confort Le Pontet.
Nos offres de terrains sont proposées en collaboration avec nos partenaires fonciers pour des maisons dans le cadre de la loi du 10/12/1990, selon disponibilité.
Surface habitable : 73m2.
Nombre de pièces : 4.
Nombre de chambres : 3.
Prix terrain seul : 149000 euros.
Terrain proposé par un partenaire foncier selon disponibilités et autorisation de publicité au prix de 149 000 €. Hors droit d'enregistrement et frais de notaire. Terrain + Maison proposés au prix de 130 000 € (Hors branchements et raccordements, papiers peints, peintures, revêtement de sol dans les chambres. Tarif modifiable sans préavis). Etiquette énergie : A. Différents modèles disponibles pour ce terrain. Assurances et garanties du constructeur (RC professionnelle, décennale, dommage ouvrage, garantie de remboursement de l'acompte, livraison à prix et délai convenu) : HEXAOM Services est enregistré auprès de l'ORIAS en tant que Courtier en financement, Niveau 1, sous le numéro 14001345.
MAISONS FRANCE CONFORT 267 avenue de Fontvert 84130 Le Pontet
Référence : JF2332382_4
Bien En copropriété : non
Idéalement située - À découvrir à Châteauneuf-de-Gadagne (84470) : maison neuve 4 pièces en vente, 73 m² de surface sur 400 m² de terrain. Son intérieur dispose de trois chambres, d'une cuisine et d'une salle de bains.
Proche gare (Gadagne), écoles, crèches, bibliothèque, bassin de natation, commerces, boulangerie, bureau de poste et boucherie-charcuterie. Accès autoroute A7 et nationale N129 à 5 km. Mer Méditerranée à 42 km. Avignon à 9 km.
Cette maison de 4 pièces est à vendre pour la somme de 279 000 €.
N'hésitez pas à prendre contact avec Julien FANTOZZI (tél : ) pour obtenir de plus amples renseignements sur la maison de plain-pied. Concrétisez vos projets immobiliers avec Maisons France Confort Le Pontet.
Nos offres de terrains sont proposées en collaboration avec nos partenaires fonciers pour des maisons dans le cadre de la loi du 10/12/1990, selon disponibilité.
Surface habitable : 73m2.
Nombre de pièces : 4.
Nombre de chambres : 3.
Prix terrain seul : 149000 euros.
Terrain proposé par un partenaire foncier selon disponibilités et autorisation de publicité au prix de 149 000 €. Hors droit d'enregistrement et frais de notaire. Terrain + Maison proposés au prix de 130 000 € (Hors branchements et raccordements, papiers peints, peintures, revêtement de sol dans les chambres. Tarif modifiable sans préavis). Etiquette énergie : A. Différents modèles disponibles pour ce terrain. Assurances et garanties du constructeur (RC professionnelle, décennale, dommage ouvrage, garantie de remboursement de l'acompte, livraison à prix et délai convenu) : HEXAOM Services est enregistré auprès de l'ORIAS en tant que Courtier en financement, Niveau 1, sous le numéro 14001345.
MAISONS FRANCE CONFORT 267 avenue de Fontvert 84130 Le Pontet
Référence : JF2332382_4
Bien En copropriété : non
* Prix net, hors frais notarié, d'enregistrement et de publicité foncière.
Contactez
MAISONS FRANCE CONFORT
N° de téléphone
Nous contacter