Trans-en-provence (83720)
Maison - 5 pièce(s) - 100 m²
345 000
€ *
- Référence : 1033634_1005119_3582833
- Dernière mise à jour : 25/12/2025
Pour la nouvelle notation (DPE à partir de juillet 2021), c'est la plus mauvaise des deux performances (énergie, climat) qui est retenue.
Votre villa neuve clé en main à 345 000 euros à Trans en Provence
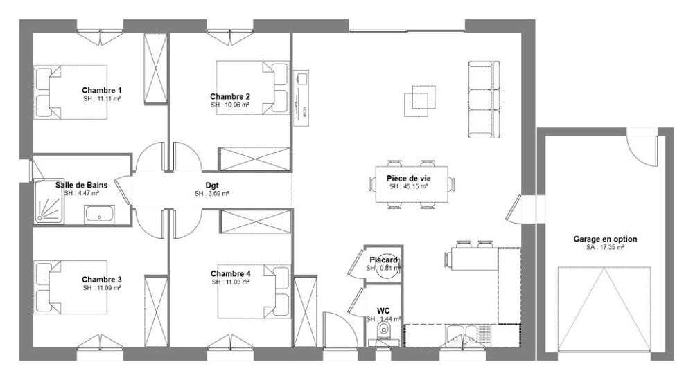
Maisons France Confort agence de Trans en Provence vous propose une belle villa de plain-pied située dans un environnement de qualité, à deux pas des commodités, sur un terrain de 700m² offrant une exposition plein sud.
Confort, modernité et performance :
Grand espace de vie lumineux
Cuisine ouverte contemporaine
4 chambres spacieuses
Une salle de bains moderne idéale pour toute la famille
Volets roulants électriques
Système domotique pour un quotidien simplifié
Performance énergétique RE2020 : Grâce à une isolation renforcée et un chauffage économique, cette villa vous assure un confort optimal tout au long de l'année.
Projet clé en main à 345 000 euros Ce prix comprend le terrain, la maison et les frais de raccordement.
Pour une étude personnalisée, contactez Véronique CHAUVET au O99
Maisons France Confort, constructeur familial depuis 1919. Leader en France de la maison individuelle sur mesure.
Nos offres de terrains sont proposées en collaboration avec nos partenaires fonciers pour des maisons dans le cadre de la loi du 10/12/1990, selon disponibilité.
Surface habitable : 100m2.
Nombre de pièces : 5.
Nombre de chambres : 4.
Prix terrain seul : 139000 euros.
Terrain proposé par un partenaire foncier selon disponibilités et autorisation de publicité au prix de 139 000 €. Hors droit d'enregistrement et frais de notaire. Maison proposée, avec un contrat de construction de maison individuelle, dans le cadre de la loi du 19/12/1990, au prix de 206 000 € (Hors branchements et raccordements, papiers peints, peintures, revêtement de sol dans les chambres, qui sont chiffrés dans les travaux qui restent à charge du client. Tarif modifiable sans préavis). Étiquette énergie : A. Différents modèles disponibles pour ce terrain. Assurances et garanties du constructeur comprises (RC professionnelle, décennale, dommage ouvrage).
MAISONS FRANCE CONFORT Centre Commercial ARCADIA BAT B 83720 Trans-en-Provence
Référence : VC2343099_1
Bien En copropriété : non
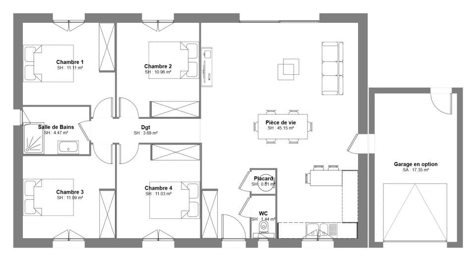
Maisons France Confort agence de Trans en Provence vous propose une belle villa de plain-pied située dans un environnement de qualité, à deux pas des commodités, sur un terrain de 700m² offrant une exposition plein sud.
Confort, modernité et performance :
Grand espace de vie lumineux
Cuisine ouverte contemporaine
4 chambres spacieuses
Une salle de bains moderne idéale pour toute la famille
Volets roulants électriques
Système domotique pour un quotidien simplifié
Performance énergétique RE2020 : Grâce à une isolation renforcée et un chauffage économique, cette villa vous assure un confort optimal tout au long de l'année.
Projet clé en main à 345 000 euros Ce prix comprend le terrain, la maison et les frais de raccordement.
Pour une étude personnalisée, contactez Véronique CHAUVET au O99
Maisons France Confort, constructeur familial depuis 1919. Leader en France de la maison individuelle sur mesure.
Nos offres de terrains sont proposées en collaboration avec nos partenaires fonciers pour des maisons dans le cadre de la loi du 10/12/1990, selon disponibilité.
Surface habitable : 100m2.
Nombre de pièces : 5.
Nombre de chambres : 4.
Prix terrain seul : 139000 euros.
Terrain proposé par un partenaire foncier selon disponibilités et autorisation de publicité au prix de 139 000 €. Hors droit d'enregistrement et frais de notaire. Maison proposée, avec un contrat de construction de maison individuelle, dans le cadre de la loi du 19/12/1990, au prix de 206 000 € (Hors branchements et raccordements, papiers peints, peintures, revêtement de sol dans les chambres, qui sont chiffrés dans les travaux qui restent à charge du client. Tarif modifiable sans préavis). Étiquette énergie : A. Différents modèles disponibles pour ce terrain. Assurances et garanties du constructeur comprises (RC professionnelle, décennale, dommage ouvrage).
MAISONS FRANCE CONFORT Centre Commercial ARCADIA BAT B 83720 Trans-en-Provence
Référence : VC2343099_1
Bien En copropriété : non
* Prix net, hors frais notarié, d'enregistrement et de publicité foncière.
Contactez
MAISONS FRANCE CONFORT
N° de téléphone
Nous contacter