Louveciennes (78430)
Maison - 7 pièce(s) - 160 m²
1 080 000
€ *
- Référence : 1041290_1005120_3590197
- Dernière mise à jour : 03/12/2025
Pour la nouvelle notation (DPE à partir de juillet 2021), c'est la plus mauvaise des deux performances (énergie, climat) qui est retenue.
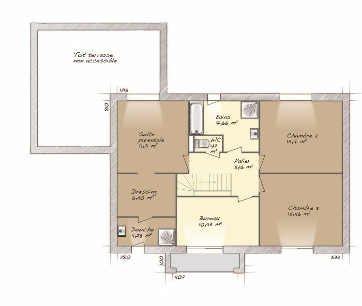
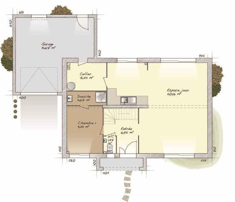
Maison F7 (160 m²) en vente à Louveciennes
Paris à 35 min (Transilien L) - À découvrir à Louveciennes (78430) : maison neuve 7 pièces en vente. 2 niveaux, surface de 160 m² et 1 035 m² de terrain. Elle offre quatre chambres, une cuisine et deux salles de bains.
Proche gare (Louveciennes), écoles, crèche, bibliothèque, commerces, boulangeries, boucherie-charcuterie, bureau de poste et épicerie. Paris à 17 km.
Cette maison de 7 pièces est proposée à l'achat pour 1 080 000 €.
Prenez contact avec notre agence (MONTANIER Aurelien : ) pour toute question sur la maison ou sur les démarches à suivre.
Annonce proposée par un Agent Commercial Partenaire.
Nos offres de terrains sont proposées en collaboration avec nos partenaires fonciers pour des maisons dans le cadre de la loi du 10/12/1990, selon disponibilité.
Surface habitable : 160m2.
Nombre de pièces : 7.
Nombre de chambres : 4.
Prix terrain seul : 795000 euros.
Terrain proposé par un partenaire foncier selon disponibilités et autorisation de publicité au prix de 795 000 €. Hors droit d'enregistrement et frais de notaire. Maison proposée, avec un contrat de construction de maison individuelle, dans le cadre de la loi du 19/12/1990, au prix de 285 000 € (Hors branchements et raccordements, papiers peints, peintures, revêtement de sol dans les chambres, qui sont chiffrés dans les travaux qui restent à charge du client. Tarif modifiable sans préavis). Étiquette énergie : A. Différents modèles disponibles pour ce terrain. Assurances et garanties du constructeur comprises (RC professionnelle, décennale, dommage ouvrage).
MAISONS BALENCY 12 avenue de la république 94100 Saint-Maur-des-Fossés
Référence : AM2356198_1
Bien En copropriété : non
Paris à 35 min (Transilien L) - À découvrir à Louveciennes (78430) : maison neuve 7 pièces en vente. 2 niveaux, surface de 160 m² et 1 035 m² de terrain. Elle offre quatre chambres, une cuisine et deux salles de bains.
Proche gare (Louveciennes), écoles, crèche, bibliothèque, commerces, boulangeries, boucherie-charcuterie, bureau de poste et épicerie. Paris à 17 km.
Cette maison de 7 pièces est proposée à l'achat pour 1 080 000 €.
Prenez contact avec notre agence (MONTANIER Aurelien : ) pour toute question sur la maison ou sur les démarches à suivre.
Annonce proposée par un Agent Commercial Partenaire.
Nos offres de terrains sont proposées en collaboration avec nos partenaires fonciers pour des maisons dans le cadre de la loi du 10/12/1990, selon disponibilité.
Surface habitable : 160m2.
Nombre de pièces : 7.
Nombre de chambres : 4.
Prix terrain seul : 795000 euros.
Terrain proposé par un partenaire foncier selon disponibilités et autorisation de publicité au prix de 795 000 €. Hors droit d'enregistrement et frais de notaire. Maison proposée, avec un contrat de construction de maison individuelle, dans le cadre de la loi du 19/12/1990, au prix de 285 000 € (Hors branchements et raccordements, papiers peints, peintures, revêtement de sol dans les chambres, qui sont chiffrés dans les travaux qui restent à charge du client. Tarif modifiable sans préavis). Étiquette énergie : A. Différents modèles disponibles pour ce terrain. Assurances et garanties du constructeur comprises (RC professionnelle, décennale, dommage ouvrage).
MAISONS BALENCY 12 avenue de la république 94100 Saint-Maur-des-Fossés
Référence : AM2356198_1
Bien En copropriété : non
* Prix net, hors frais notarié, d'enregistrement et de publicité foncière.
Contactez
MAISONS BALENCY
N° de téléphone
Nous contacter