Roscoff (29680)
Maison - 6 pièce(s) - 117 m²
403 000
€ *
- Référence : 1005373_1005127_3590738
- Dernière mise à jour : 04/12/2025
Pour la nouvelle notation (DPE à partir de juillet 2021), c'est la plus mauvaise des deux performances (énergie, climat) qui est retenue.
Roscoff : maison de 6 pièces (117 m²) en vente
MAISON 6 PIÈCES NEUVE
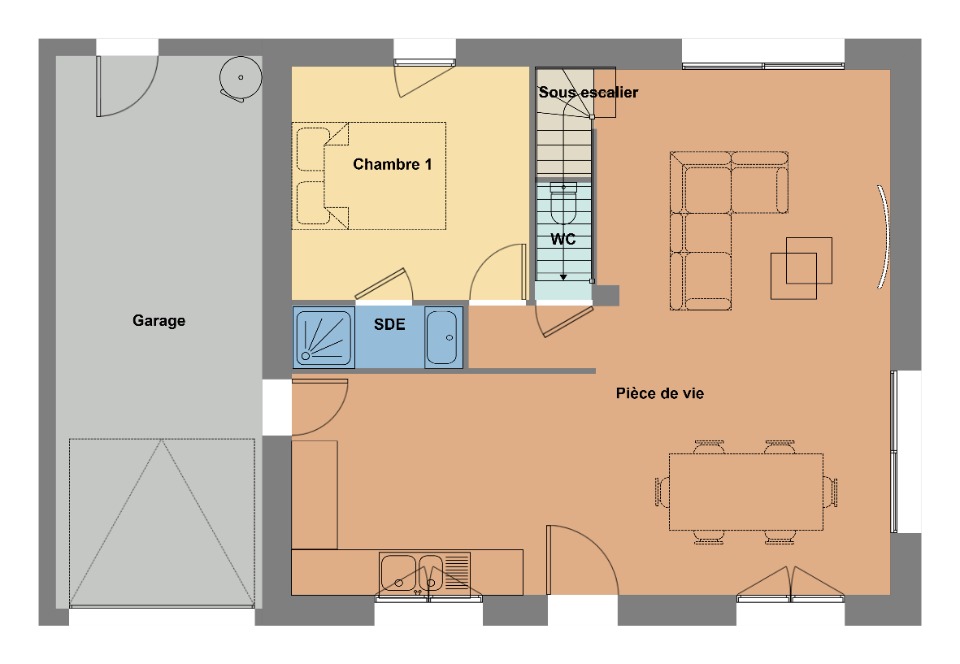
En vente : sur le littoral, à Roscoff (29680), Maisons de l'Avenir Guipavas vous présente cette maison de 6 pièces de 117 m². Son intérieur dispose de cinq chambres, d'une cuisine et de deux salles de bains.
Le terrain de la propriété s'étend sur 482 m².
Cette maison possède 2 niveaux.
Elle est proposée à l'achat pour 403 000 €.
N'hésitez pas à prendre contact avec Aurélie CAGNARD pour toute question sur cette propriété, sur les modalités de vente ou sur les démarches à suivre.
Nos offres de terrains sont proposées en collaboration avec nos partenaires fonciers pour des maisons dans le cadre de la loi du 10/12/1990, selon disponibilité.
Surface habitable : 117m2.
Nombre de pièces : 6.
Nombre de chambres : 5.
Prix terrain seul : 154000 euros.
Maisons de l'Avenir, constructeur de maisons individuelles, propose en collaboration avec ses partenaires fonciers, une sélection de terrains constructibles, selon disponibilité, pour la construction de maisons neuves définies par le constructeur, avec un contrat de construction de maison individuelle, dans le cadre de la loi du 19/12/1990. Prix net, hors frais notariés, d'enregistrement et de publicité foncièreTerrain proposé au prix de : 154 000 €Maison proposée au prix de : 249 000 €Etiquette énergie : A. Assurances et garanties du constructeur (RC professionnelle, décennale, dommage ouvrage, Garantie de livraison à prix et délai convenu).
MAISONS DE L'AVENIR 10 Rue de Poul Ar Feunteun 29490 Guipavas
Référence : AC2356555_1
Bien En copropriété : non
MAISON 6 PIÈCES NEUVE
En vente : sur le littoral, à Roscoff (29680), Maisons de l'Avenir Guipavas vous présente cette maison de 6 pièces de 117 m². Son intérieur dispose de cinq chambres, d'une cuisine et de deux salles de bains.
Le terrain de la propriété s'étend sur 482 m².
Cette maison possède 2 niveaux.
Elle est proposée à l'achat pour 403 000 €.
N'hésitez pas à prendre contact avec Aurélie CAGNARD pour toute question sur cette propriété, sur les modalités de vente ou sur les démarches à suivre.
Nos offres de terrains sont proposées en collaboration avec nos partenaires fonciers pour des maisons dans le cadre de la loi du 10/12/1990, selon disponibilité.
Surface habitable : 117m2.
Nombre de pièces : 6.
Nombre de chambres : 5.
Prix terrain seul : 154000 euros.
Maisons de l'Avenir, constructeur de maisons individuelles, propose en collaboration avec ses partenaires fonciers, une sélection de terrains constructibles, selon disponibilité, pour la construction de maisons neuves définies par le constructeur, avec un contrat de construction de maison individuelle, dans le cadre de la loi du 19/12/1990. Prix net, hors frais notariés, d'enregistrement et de publicité foncièreTerrain proposé au prix de : 154 000 €Maison proposée au prix de : 249 000 €Etiquette énergie : A. Assurances et garanties du constructeur (RC professionnelle, décennale, dommage ouvrage, Garantie de livraison à prix et délai convenu).
MAISONS DE L'AVENIR 10 Rue de Poul Ar Feunteun 29490 Guipavas
Référence : AC2356555_1
Bien En copropriété : non
* Prix net, hors frais notarié, d'enregistrement et de publicité foncière.
Contactez
MAISONS DE L'AVENIR
N° de téléphone
Nous contacter