Brest (29200)
Maison - 5 pièce(s) - 115 m²
390 000
€ *
- Référence : 1005373_1005127_3592090
- Dernière mise à jour : 05/12/2025
Pour la nouvelle notation (DPE à partir de juillet 2021), c'est la plus mauvaise des deux performances (énergie, climat) qui est retenue.
🏡 Terrain à vendre - Rive Droite (Recouvrance) - 512 m²
📍 Emplacement rare à Brest - Quartier Recouvrance
Découvrez ce terrain hors lotissement de 512 m², issu d'une division de parcelle.
Idéalement situé rive droite, à proximité immédiate des commerces, des écoles et des transports en commun, il offre un cadre de vie pratique et recherché.
🏠 Projet de construction proposé avec Maisons de l'Avenir :
Nous vous proposons les plans d'une maison de style contemporaine, pensée pour allier confort et performance énergétique.
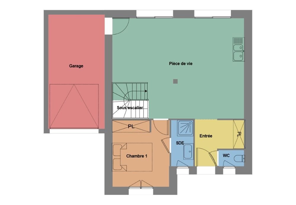
✅ Surface habitable : 115 m² (entièrement adaptable selon vos besoins)
✅ 4 chambres, dont une suite parentale avec salle d'eau et dressing
✅ 2 salles d'eau
✅ Espace de vie lumineux d'environ 40 m²
✅ Cuisine ouverte avec cellier attenant
✅ Garage pour véhicule et espace de stockage
Prix Terrain + Maisons = 390000€
🌿 Cette maison s'inscrit dans notre concept Bâti Activ, des maisons passives et intelligentes conçues pour :
Maximiser l'ensoleillement naturel ☀️
Réduire les consommations d'énergie
Offrir un confort thermique été comme hiver
📩 Si ce bien vous intéresse, faites vite !
📞 Contactez Erwan TILLY - Maisons de l'Avenir
Nous conviendrons ensemble d'une visite du terrain et d'un projet sur mesure, selon vos envies et votre mode de vie.
Nos offres de terrains sont proposées en collaboration avec nos partenaires fonciers pour des maisons dans le cadre de la loi du 10/12/1990, selon disponibilité.
Surface habitable : 115m2.
Nombre de pièces : 5.
Nombre de chambres : 4.
Prix terrain seul : 120000 euros.
Maisons de l'Avenir, constructeur de maisons individuelles, propose en collaboration avec ses partenaires fonciers, une sélection de terrains constructibles, selon disponibilité, pour la construction de maisons neuves définies par le constructeur, avec un contrat de construction de maison individuelle, dans le cadre de la loi du 19/12/1990. Prix net, hors frais notariés, d'enregistrement et de publicité foncièreTerrain proposé au prix de : 120 000 €Maison proposée au prix de : 270 000 €Etiquette énergie : A. Assurances et garanties du constructeur (RC professionnelle, décennale, dommage ouvrage, Garantie de livraison à prix et délai convenu).
MAISONS DE L'AVENIR 10 Rue de Poul Ar Feunteun 29490 Guipavas
Référence : ET2358072_2
Bien En copropriété : non
📍 Emplacement rare à Brest - Quartier Recouvrance
Découvrez ce terrain hors lotissement de 512 m², issu d'une division de parcelle.
Idéalement situé rive droite, à proximité immédiate des commerces, des écoles et des transports en commun, il offre un cadre de vie pratique et recherché.
🏠 Projet de construction proposé avec Maisons de l'Avenir :
Nous vous proposons les plans d'une maison de style contemporaine, pensée pour allier confort et performance énergétique.
✅ Surface habitable : 115 m² (entièrement adaptable selon vos besoins)
✅ 4 chambres, dont une suite parentale avec salle d'eau et dressing
✅ 2 salles d'eau
✅ Espace de vie lumineux d'environ 40 m²
✅ Cuisine ouverte avec cellier attenant
✅ Garage pour véhicule et espace de stockage
Prix Terrain + Maisons = 390000€
🌿 Cette maison s'inscrit dans notre concept Bâti Activ, des maisons passives et intelligentes conçues pour :
Maximiser l'ensoleillement naturel ☀️
Réduire les consommations d'énergie
Offrir un confort thermique été comme hiver
📩 Si ce bien vous intéresse, faites vite !
📞 Contactez Erwan TILLY - Maisons de l'Avenir
Nous conviendrons ensemble d'une visite du terrain et d'un projet sur mesure, selon vos envies et votre mode de vie.
Nos offres de terrains sont proposées en collaboration avec nos partenaires fonciers pour des maisons dans le cadre de la loi du 10/12/1990, selon disponibilité.
Surface habitable : 115m2.
Nombre de pièces : 5.
Nombre de chambres : 4.
Prix terrain seul : 120000 euros.
Maisons de l'Avenir, constructeur de maisons individuelles, propose en collaboration avec ses partenaires fonciers, une sélection de terrains constructibles, selon disponibilité, pour la construction de maisons neuves définies par le constructeur, avec un contrat de construction de maison individuelle, dans le cadre de la loi du 19/12/1990. Prix net, hors frais notariés, d'enregistrement et de publicité foncièreTerrain proposé au prix de : 120 000 €Maison proposée au prix de : 270 000 €Etiquette énergie : A. Assurances et garanties du constructeur (RC professionnelle, décennale, dommage ouvrage, Garantie de livraison à prix et délai convenu).
MAISONS DE L'AVENIR 10 Rue de Poul Ar Feunteun 29490 Guipavas
Référence : ET2358072_2
Bien En copropriété : non
* Prix net, hors frais notarié, d'enregistrement et de publicité foncière.
Contactez
MAISONS DE L'AVENIR
N° de téléphone
Nous contacter