Lorgues (83510)
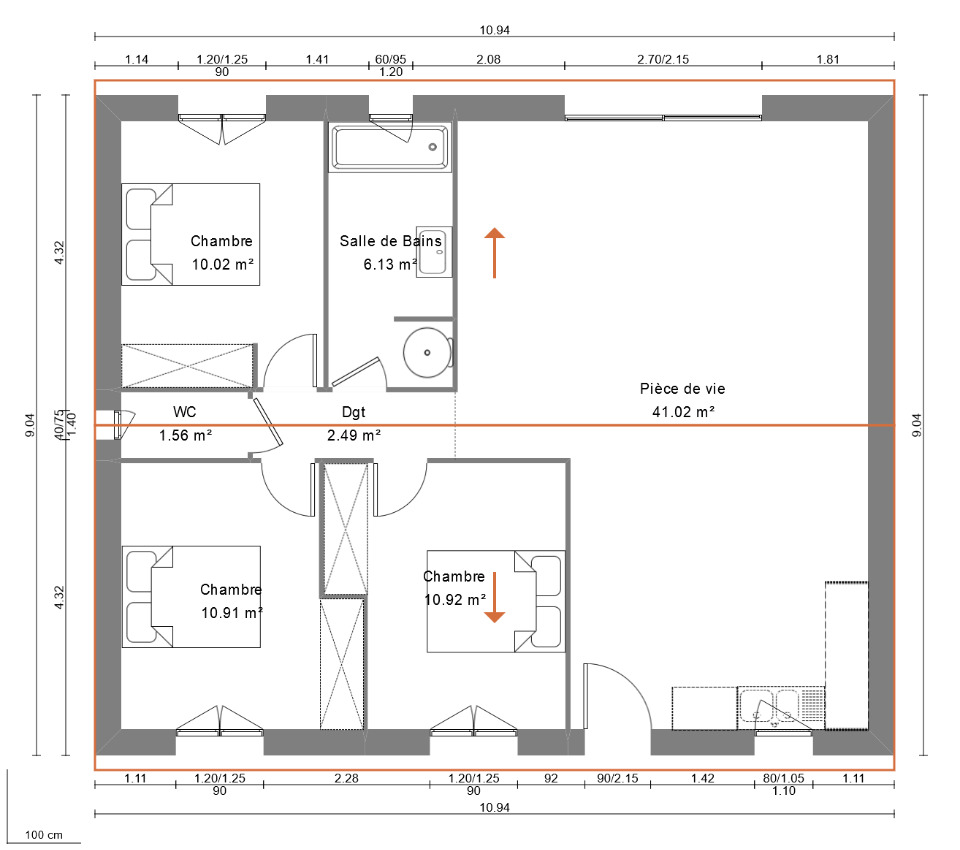
Maison - 4 pièce(s) - 83 m²
334 000
€ *
- Référence : 1033634_1005119_3603411
- Dernière mise à jour : 16/01/2026
Pour la nouvelle notation (DPE à partir de juillet 2021), c'est la plus mauvaise des deux performances (énergie, climat) qui est retenue.
Nouveau projet de construction à Lorgues
Vous rêvez d'un cadre de vie paisible, ensoleillé et proche de la nature ?
Maisons France Confort agence de Trans en Provence, vous propose un projet de construction d'une villa de plain-pied situé dans un cadre campagne sur la jolie commune de Lorgues.
Cette villa neuve vous offre :
- Une surface habitable optimisée avec : une grande pièce de vie lumineuse avec cuisine ouverte, 3 chambres confortables, une salle de bain moderne, et des toilettes indépendantes
- Une exposition plein sud pour un ensoleillement optimal
- Terrain plat de 1000m² dans un quartier calme et résidentiel
- Climatisation dans la pièce de vie pour un confort été comme hiver
- Isolation renforcée et conformité RE2020 pour une performances énergétiques durables
Un projet idéal pour une famille, un couple ou un investissement locatif dans un cadre de vie privilégié.
Projet prêt à construire et à personnaliser selon vos envies
Pour tous renseignements et une étude personnalisée, contactez Véronique Chauvet au O
Maisons France Confort agence de Trans en Provence. Constructeur de maisons individuelles leader en France. Entreprise familiale fondée en 1919.
Nos offres de terrains sont proposées en collaboration avec nos partenaires fonciers pour des maisons dans le cadre de la loi du 10/12/1990, selon disponibilité.
Surface habitable : 83m2.
Nombre de pièces : 4.
Nombre de chambres : 3.
Prix terrain seul : 160500 euros.
Terrain proposé par un partenaire foncier selon disponibilités et autorisation de publicité au prix de 160 500 €. Hors droit d'enregistrement et frais de notaire. Maison proposée, avec un contrat de construction de maison individuelle, dans le cadre de la loi du 19/12/1990, au prix de 173 500 € (Hors branchements et raccordements, papiers peints, peintures, revêtement de sol dans les chambres, qui sont chiffrés dans les travaux qui restent à charge du client. Tarif modifiable sans préavis). Étiquette énergie : A. Différents modèles disponibles pour ce terrain. Assurances et garanties du constructeur comprises (RC professionnelle, décennale, dommage ouvrage).
MAISONS FRANCE CONFORT Centre Commercial ARCADIA BAT B 83720 Trans-en-Provence
Référence : VC2368897_1
Bien En copropriété : non
Vous rêvez d'un cadre de vie paisible, ensoleillé et proche de la nature ?
Maisons France Confort agence de Trans en Provence, vous propose un projet de construction d'une villa de plain-pied situé dans un cadre campagne sur la jolie commune de Lorgues.
Cette villa neuve vous offre :
- Une surface habitable optimisée avec : une grande pièce de vie lumineuse avec cuisine ouverte, 3 chambres confortables, une salle de bain moderne, et des toilettes indépendantes
- Une exposition plein sud pour un ensoleillement optimal
- Terrain plat de 1000m² dans un quartier calme et résidentiel
- Climatisation dans la pièce de vie pour un confort été comme hiver
- Isolation renforcée et conformité RE2020 pour une performances énergétiques durables
Un projet idéal pour une famille, un couple ou un investissement locatif dans un cadre de vie privilégié.
Projet prêt à construire et à personnaliser selon vos envies
Pour tous renseignements et une étude personnalisée, contactez Véronique Chauvet au O
Maisons France Confort agence de Trans en Provence. Constructeur de maisons individuelles leader en France. Entreprise familiale fondée en 1919.
Nos offres de terrains sont proposées en collaboration avec nos partenaires fonciers pour des maisons dans le cadre de la loi du 10/12/1990, selon disponibilité.
Surface habitable : 83m2.
Nombre de pièces : 4.
Nombre de chambres : 3.
Prix terrain seul : 160500 euros.
Terrain proposé par un partenaire foncier selon disponibilités et autorisation de publicité au prix de 160 500 €. Hors droit d'enregistrement et frais de notaire. Maison proposée, avec un contrat de construction de maison individuelle, dans le cadre de la loi du 19/12/1990, au prix de 173 500 € (Hors branchements et raccordements, papiers peints, peintures, revêtement de sol dans les chambres, qui sont chiffrés dans les travaux qui restent à charge du client. Tarif modifiable sans préavis). Étiquette énergie : A. Différents modèles disponibles pour ce terrain. Assurances et garanties du constructeur comprises (RC professionnelle, décennale, dommage ouvrage).
MAISONS FRANCE CONFORT Centre Commercial ARCADIA BAT B 83720 Trans-en-Provence
Référence : VC2368897_1
Bien En copropriété : non
* Prix net, hors frais notarié, d'enregistrement et de publicité foncière.
Contactez
MAISONS FRANCE CONFORT
N° de téléphone
Nous contacter