Saint-brandan (22800)
Maison - 3 pièce(s) - 57 m²
189 000
€ *
- Référence : 1005370_1005127_3523529
- Dernière mise à jour : 17/12/2025
Pour la nouvelle notation (DPE à partir de juillet 2021), c'est la plus mauvaise des deux performances (énergie, climat) qui est retenue.
Saint-Brandan : maison de 3 pièces (57 m²) à vendre
IDÉALEMENT SITUÉE - MAISON 3 PIÈCES NEUVE
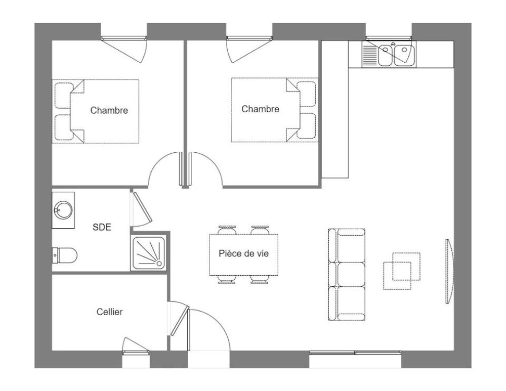
À vendre : à 23 km de la Manche et à deux pas de Saint-Brieuc, votre agence Maisons de l'Avenir Saint-Brieuc est heureuse de vous proposer cette maison de 3 pièces de plain-pied de 57 m² idéalement située dans Saint-Brandan (22800).
Son intérieur dispose de deux chambres, d'une cuisine et d'une salle de bains. Cette maison est neuve.
Le terrain du bien est de 754 m².
Le bien se situe dans un secteur recherché. On trouve l'École Primaire Privée Sainte Anne et l'École Primaire Publique les Chrysalides à moins de 10 minutes à pied. Il y a un accès à la nationale N12 à 15 km. Il y a une bibliothèque, un tennis, une boulangerie et un commerce à proximité du logement.
Il est proposé à l'achat pour 189 000 €.
Contactez Samuel ROGER () pour obtenir de plus amples renseignements sur la maison ou sur les modalités de vente. Maisons de l'Avenir Saint-Brieuc vous accompagne à toutes les étapes de votre projet et dans toutes vos démarches.
Nos offres de terrains sont proposées en collaboration avec nos partenaires fonciers pour des maisons dans le cadre de la loi du 10/12/1990, selon disponibilité.
Surface habitable : 57m2.
Nombre de pièces : 3.
Nombre de chambres : 2.
Prix terrain seul : 75000 euros.
Maisons de l'Avenir, constructeur de maisons individuelles, propose en collaboration avec ses partenaires fonciers, une sélection de terrains constructibles, selon disponibilité, pour la construction de maisons neuves définies par le constructeur, avec un contrat de construction de maison individuelle, dans le cadre de la loi du 19/12/1990. Prix net, hors frais notariés, d'enregistrement et de publicité foncièreTerrain proposé au prix de : 75 000 €Maison proposée au prix de : 114 000 €Etiquette énergie : A. Assurances et garanties du constructeur (RC professionnelle, décennale, dommage ouvrage, Garantie de livraison à prix et délai convenu).
MAISONS DE L'AVENIR 1 bis boulevard Carnot 22000 Saint-Brieuc
Référence : SR2288501_1
Bien En copropriété : non
IDÉALEMENT SITUÉE - MAISON 3 PIÈCES NEUVE
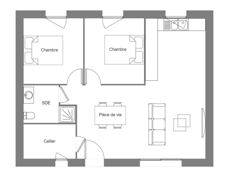
À vendre : à 23 km de la Manche et à deux pas de Saint-Brieuc, votre agence Maisons de l'Avenir Saint-Brieuc est heureuse de vous proposer cette maison de 3 pièces de plain-pied de 57 m² idéalement située dans Saint-Brandan (22800).
Son intérieur dispose de deux chambres, d'une cuisine et d'une salle de bains. Cette maison est neuve.
Le terrain du bien est de 754 m².
Le bien se situe dans un secteur recherché. On trouve l'École Primaire Privée Sainte Anne et l'École Primaire Publique les Chrysalides à moins de 10 minutes à pied. Il y a un accès à la nationale N12 à 15 km. Il y a une bibliothèque, un tennis, une boulangerie et un commerce à proximité du logement.
Il est proposé à l'achat pour 189 000 €.
Contactez Samuel ROGER () pour obtenir de plus amples renseignements sur la maison ou sur les modalités de vente. Maisons de l'Avenir Saint-Brieuc vous accompagne à toutes les étapes de votre projet et dans toutes vos démarches.
Nos offres de terrains sont proposées en collaboration avec nos partenaires fonciers pour des maisons dans le cadre de la loi du 10/12/1990, selon disponibilité.
Surface habitable : 57m2.
Nombre de pièces : 3.
Nombre de chambres : 2.
Prix terrain seul : 75000 euros.
Maisons de l'Avenir, constructeur de maisons individuelles, propose en collaboration avec ses partenaires fonciers, une sélection de terrains constructibles, selon disponibilité, pour la construction de maisons neuves définies par le constructeur, avec un contrat de construction de maison individuelle, dans le cadre de la loi du 19/12/1990. Prix net, hors frais notariés, d'enregistrement et de publicité foncièreTerrain proposé au prix de : 75 000 €Maison proposée au prix de : 114 000 €Etiquette énergie : A. Assurances et garanties du constructeur (RC professionnelle, décennale, dommage ouvrage, Garantie de livraison à prix et délai convenu).
MAISONS DE L'AVENIR 1 bis boulevard Carnot 22000 Saint-Brieuc
Référence : SR2288501_1
Bien En copropriété : non
* Prix net, hors frais notarié, d'enregistrement et de publicité foncière.
Contactez
MAISONS DE L'AVENIR
N° de téléphone
Nous contacter