Saint-paul-lès-dax (40990)
Maison - 4 pièce(s) - 95 m²
303 500
€ *
- Référence : 1005434_1005134_3605688
- Dernière mise à jour : 17/12/2025
Pour la nouvelle notation (DPE à partir de juillet 2021), c'est la plus mauvaise des deux performances (énergie, climat) qui est retenue.
Cécile PÉNICAUT Odes Maisons MCA vous propose d'adapter le modèle Atlanta Investisseurs, sur ce terrain d'environ 500m², idéalement situé dans un petit lotissement, sur la commune de Saint Paul Dax.
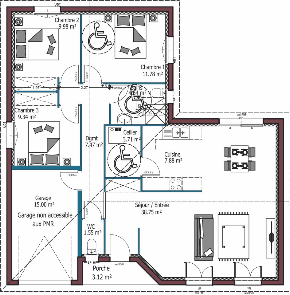
Dédié aux investisseurs, laissez-vous séduire par ce modèle de maison en L, entièrement adapté aux normes PMR. Avec son garage intégré et ses 3 chambres, chacune disposant d'un emplacement placard, cette villa lumineuse et généreuse facilitera le quotidien des familles. La cuisine est en partie ouverte sur le vaste salon-séjour tourné vers le jardin. Les lignes définies par le porche apportent une touche d'originalité à cette maison.
Vous serez séduits par le beau volume de ses chambres, et la grande luminosité de son espace de vie.
Le prix affiché comprend le terrain, les frais de notaire, les frais annexes (raccordements, bornage), et cette maison livrée prête à décorer.
Pour vous accompagner dans votre projet de construction personnalisé, contactez vite Cécile PÉNICAUT au Oà l'agence MCA Saint Paul Lès Dax, afin qu'elle vous accompagne et vous guide dans les démarches 🗝️🌟🏡
Nos offres de terrains sont proposées en collaboration avec nos partenaires fonciers pour des maisons dans le cadre de la loi du 10/12/1990, selon disponibilité.
Surface habitable : 95m2.
Nombre de pièces : 4.
Nombre de chambres : 3.
Prix terrain seul : 115000 euros.
Maisons MCA - Saint-Paul-lès-Dax 34 avenue de la liberté 40990 Saint-Paul-lès-Dax
Référence : CP2371446_3
Bien En copropriété : non
Dédié aux investisseurs, laissez-vous séduire par ce modèle de maison en L, entièrement adapté aux normes PMR. Avec son garage intégré et ses 3 chambres, chacune disposant d'un emplacement placard, cette villa lumineuse et généreuse facilitera le quotidien des familles. La cuisine est en partie ouverte sur le vaste salon-séjour tourné vers le jardin. Les lignes définies par le porche apportent une touche d'originalité à cette maison.
Vous serez séduits par le beau volume de ses chambres, et la grande luminosité de son espace de vie.
Le prix affiché comprend le terrain, les frais de notaire, les frais annexes (raccordements, bornage), et cette maison livrée prête à décorer.
Pour vous accompagner dans votre projet de construction personnalisé, contactez vite Cécile PÉNICAUT au Oà l'agence MCA Saint Paul Lès Dax, afin qu'elle vous accompagne et vous guide dans les démarches 🗝️🌟🏡
Nos offres de terrains sont proposées en collaboration avec nos partenaires fonciers pour des maisons dans le cadre de la loi du 10/12/1990, selon disponibilité.
Surface habitable : 95m2.
Nombre de pièces : 4.
Nombre de chambres : 3.
Prix terrain seul : 115000 euros.
Maisons MCA - Saint-Paul-lès-Dax 34 avenue de la liberté 40990 Saint-Paul-lès-Dax
Référence : CP2371446_3
Bien En copropriété : non
* Prix net, hors frais notarié, d'enregistrement et de publicité foncière.
Contactez
MAISONS MCA - SAINT-PAUL-LèS-DAX
N° de téléphone
Nous contacter