Louvigné-de-bais (35680)
Maison - 5 pièce(s) - 140 m²
342 000
€ *
- Référence : 1005371_1005127_3607235
- Dernière mise à jour : 19/12/2025
Pour la nouvelle notation (DPE à partir de juillet 2021), c'est la plus mauvaise des deux performances (énergie, climat) qui est retenue.
VENTE : maison de 5 pièces (140 m²) à Louvigné-de-Bais
IDÉALEMENT SITUÉE - MAISON 5 PIÈCES NEUVE
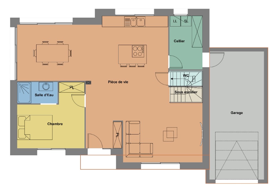
En vente : à deux pas de Rennes, notre agence Maisons de l'Avenir Cesson-Sévigné est heureuse de vous proposer, idéalement située dans Louvigné-de-Bais (35680), cette maison de 5 pièces de 140 m² et de 403 m² de terrain.
C'est une maison de 2 niveaux. Son intérieur propose quatre chambres, une cuisine et deux salles de bains. Cette maison est neuve.
La maison se trouve dans un secteur prisé. Il y a l'École Primaire Privée St Patern et l'École Primaire Publique Charles Perrault à moins de 10 minutes à pied. Niveau transports, on trouve deux gares (Les Lacs et Châteaubourg) à moins de 10 minutes en voiture. La nationale N157 est accessible à 6 km. Il y a une bibliothèque, un tennis, une boulangerie, une épicerie et une boucherie-charcuterie dans les environs.
Elle est à vendre pour la somme de 342 000 €.
Prenez contact avec Dimitri MESAS (tél : ) pour toute information sur la maison. Maisons de l'Avenir Cesson-Sévigné est là pour vous accompagner dans tous vos projets immobiliers.
Nos offres de terrains sont proposées en collaboration avec nos partenaires fonciers pour des maisons dans le cadre de la loi du 10/12/1990, selon disponibilité.
Surface habitable : 140m2.
Nombre de pièces : 5.
Nombre de chambres : 4.
Prix terrain seul : 40500 euros.
Maisons de l'Avenir, constructeur de maisons individuelles, propose en collaboration avec ses partenaires fonciers, une sélection de terrains constructibles, selon disponibilité, pour la construction de maisons neuves définies par le constructeur, avec un contrat de construction de maison individuelle, dans le cadre de la loi du 19/12/1990. Prix net, hors frais notariés, d'enregistrement et de publicité foncièreTerrain proposé au prix de : 40 500 €Maison proposée au prix de : 301 500 €Etiquette énergie : A. Assurances et garanties du constructeur (RC professionnelle, décennale, dommage ouvrage, Garantie de livraison à prix et délai convenu).
MAISONS DE L'AVENIR 7, rue d'Armor 35740 Pacé
Référence : DM2366303_4
Bien En copropriété : non
IDÉALEMENT SITUÉE - MAISON 5 PIÈCES NEUVE
En vente : à deux pas de Rennes, notre agence Maisons de l'Avenir Cesson-Sévigné est heureuse de vous proposer, idéalement située dans Louvigné-de-Bais (35680), cette maison de 5 pièces de 140 m² et de 403 m² de terrain.
C'est une maison de 2 niveaux. Son intérieur propose quatre chambres, une cuisine et deux salles de bains. Cette maison est neuve.
La maison se trouve dans un secteur prisé. Il y a l'École Primaire Privée St Patern et l'École Primaire Publique Charles Perrault à moins de 10 minutes à pied. Niveau transports, on trouve deux gares (Les Lacs et Châteaubourg) à moins de 10 minutes en voiture. La nationale N157 est accessible à 6 km. Il y a une bibliothèque, un tennis, une boulangerie, une épicerie et une boucherie-charcuterie dans les environs.
Elle est à vendre pour la somme de 342 000 €.
Prenez contact avec Dimitri MESAS (tél : ) pour toute information sur la maison. Maisons de l'Avenir Cesson-Sévigné est là pour vous accompagner dans tous vos projets immobiliers.
Nos offres de terrains sont proposées en collaboration avec nos partenaires fonciers pour des maisons dans le cadre de la loi du 10/12/1990, selon disponibilité.
Surface habitable : 140m2.
Nombre de pièces : 5.
Nombre de chambres : 4.
Prix terrain seul : 40500 euros.
Maisons de l'Avenir, constructeur de maisons individuelles, propose en collaboration avec ses partenaires fonciers, une sélection de terrains constructibles, selon disponibilité, pour la construction de maisons neuves définies par le constructeur, avec un contrat de construction de maison individuelle, dans le cadre de la loi du 19/12/1990. Prix net, hors frais notariés, d'enregistrement et de publicité foncièreTerrain proposé au prix de : 40 500 €Maison proposée au prix de : 301 500 €Etiquette énergie : A. Assurances et garanties du constructeur (RC professionnelle, décennale, dommage ouvrage, Garantie de livraison à prix et délai convenu).
MAISONS DE L'AVENIR 7, rue d'Armor 35740 Pacé
Référence : DM2366303_4
Bien En copropriété : non
* Prix net, hors frais notarié, d'enregistrement et de publicité foncière.
Contactez
MAISONS DE L'AVENIR
N° de téléphone
Nous contacter