Le petit-fougeray (35320)
Maison - 5 pièce(s) - 100 m²
209 500
€ *
- Référence : 1005371_1005127_3607239
- Dernière mise à jour : 19/12/2025
Pour la nouvelle notation (DPE à partir de juillet 2021), c'est la plus mauvaise des deux performances (énergie, climat) qui est retenue.
VENTE d'une maison de 5 pièces (100 m²) au Petit-Fougeray
IDÉALEMENT SITUÉE - MAISON 5 PIÈCES NEUVE
En vente : à 21 km de Rennes, Maisons de l'Avenir Cesson-Sévigné vous présente cette maison de 5 pièces de 100 m² avec vue sur jardin idéalement située dans Le Petit-Fougeray (35320).
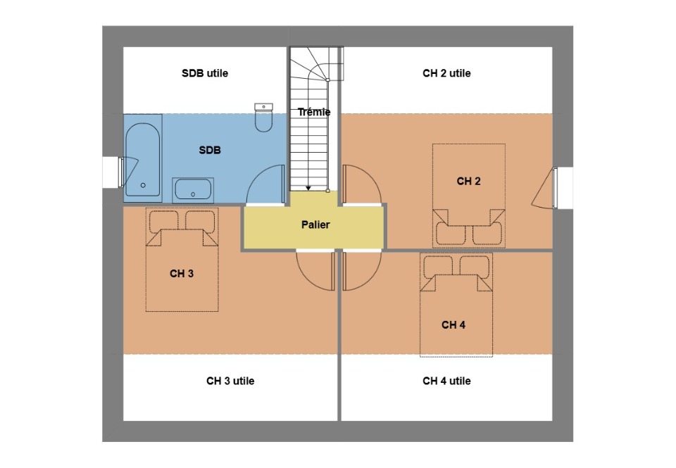
Cette maison possède 2 niveaux. Son intérieur se divise en quatre chambres, une cuisine et deux salles de bains. Cette maison est neuve.
Le terrain de la propriété s'étend sur 346 m².
La maison se situe dans un quartier prisé. On trouve l'École Primaire Publique Yak Rivais à moins de 10 minutes à pied. Niveau transports en commun, il y a trois gares (Corps-Nuds, Janzé et Saint-Armel) à moins de 10 minutes en voiture. La nationale N137 est accessible à 5 km. On trouve une bibliothèque à proximité du logement.
Son prix de vente est de 209 500 €.
Contactez notre agence (Dimitri MESAS : ) pour toute question sur la maison, sur les démarches à suivre ou sur les modalités de vente.
Nos offres de terrains sont proposées en collaboration avec nos partenaires fonciers pour des maisons dans le cadre de la loi du 10/12/1990, selon disponibilité.
Surface habitable : 100m2.
Nombre de pièces : 5.
Nombre de chambres : 4.
Prix terrain seul : 41500 euros.
Maisons de l'Avenir, constructeur de maisons individuelles, propose en collaboration avec ses partenaires fonciers, une sélection de terrains constructibles, selon disponibilité, pour la construction de maisons neuves définies par le constructeur, avec un contrat de construction de maison individuelle, dans le cadre de la loi du 19/12/1990. Prix net, hors frais notariés, d'enregistrement et de publicité foncièreTerrain proposé au prix de : 41 500 €Maison proposée au prix de : 168 000 €Etiquette énergie : A. Assurances et garanties du constructeur (RC professionnelle, décennale, dommage ouvrage, Garantie de livraison à prix et délai convenu).
MAISONS DE L'AVENIR 7, rue d'Armor 35740 Pacé
Référence : DM2369295_1
Bien En copropriété : non
IDÉALEMENT SITUÉE - MAISON 5 PIÈCES NEUVE
En vente : à 21 km de Rennes, Maisons de l'Avenir Cesson-Sévigné vous présente cette maison de 5 pièces de 100 m² avec vue sur jardin idéalement située dans Le Petit-Fougeray (35320).
Cette maison possède 2 niveaux. Son intérieur se divise en quatre chambres, une cuisine et deux salles de bains. Cette maison est neuve.
Le terrain de la propriété s'étend sur 346 m².
La maison se situe dans un quartier prisé. On trouve l'École Primaire Publique Yak Rivais à moins de 10 minutes à pied. Niveau transports en commun, il y a trois gares (Corps-Nuds, Janzé et Saint-Armel) à moins de 10 minutes en voiture. La nationale N137 est accessible à 5 km. On trouve une bibliothèque à proximité du logement.
Son prix de vente est de 209 500 €.
Contactez notre agence (Dimitri MESAS : ) pour toute question sur la maison, sur les démarches à suivre ou sur les modalités de vente.
Nos offres de terrains sont proposées en collaboration avec nos partenaires fonciers pour des maisons dans le cadre de la loi du 10/12/1990, selon disponibilité.
Surface habitable : 100m2.
Nombre de pièces : 5.
Nombre de chambres : 4.
Prix terrain seul : 41500 euros.
Maisons de l'Avenir, constructeur de maisons individuelles, propose en collaboration avec ses partenaires fonciers, une sélection de terrains constructibles, selon disponibilité, pour la construction de maisons neuves définies par le constructeur, avec un contrat de construction de maison individuelle, dans le cadre de la loi du 19/12/1990. Prix net, hors frais notariés, d'enregistrement et de publicité foncièreTerrain proposé au prix de : 41 500 €Maison proposée au prix de : 168 000 €Etiquette énergie : A. Assurances et garanties du constructeur (RC professionnelle, décennale, dommage ouvrage, Garantie de livraison à prix et délai convenu).
MAISONS DE L'AVENIR 7, rue d'Armor 35740 Pacé
Référence : DM2369295_1
Bien En copropriété : non
* Prix net, hors frais notarié, d'enregistrement et de publicité foncière.
Contactez
MAISONS DE L'AVENIR
N° de téléphone
Nous contacter