Coursan (11110)
Maison - 4 pièce(s) - 73 m²
227 000
€ *
- Référence : 1005232_1005119_3610619
- Dernière mise à jour : 08/01/2026
Pour la nouvelle notation (DPE à partir de juillet 2021), c'est la plus mauvaise des deux performances (énergie, climat) qui est retenue.
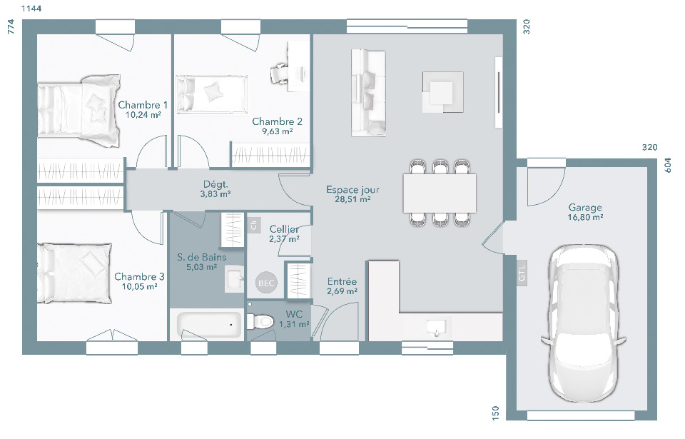
Coursan : maison de 4 pièces (73 m²) en vente
Proche de Béziers - Maison neuve 4 pièces en vente à Coursan (11110) avec une surface de 73 m² et de 300 m² de terrain. Conçue de plain-pied, elle offre trois chambres, une cuisine et une salle de bains.
Proche gare (Coursan), établissements scolaires, tennis, boulangeries, commerces, supermarchés, supérette et bureau de poste. Marché Place et Halle hebdomadaire. Accès autoroute A9 à 7 km. Mer Méditerranée à 14 km.
Le prix de vente de cette maison de 4 pièces est de 227 000 €.
Contactez notre agence (ESTADIEU Jeannine : ) pour obtenir de plus amples informations sur la maison, sur les modalités de vente ou sur les démarches à suivre. Maisons France Confort Narbonne vous accompagne dans tous vos projets immobiliers et à toutes les étapes de l'achat.
Nos offres de terrains sont proposées en collaboration avec nos partenaires fonciers pour des maisons dans le cadre de la loi du 10/12/1990, selon disponibilité.
Surface habitable : 73m2.
Nombre de pièces : 4.
Nombre de chambres : 3.
Prix terrain seul : 84900 euros.
Terrain proposé par un partenaire foncier selon disponibilités et autorisation de publicité au prix de 84 900 €. Hors droit d'enregistrement et frais de notaire. Terrain + Maison proposés au prix de 142 100 € (Hors branchements et raccordements, papiers peints, peintures, revêtement de sol dans les chambres. Tarif modifiable sans préavis). Etiquette énergie : A. Différents modèles disponibles pour ce terrain. Assurances et garanties du constructeur (RC professionnelle, décennale, dommage ouvrage, garantie de remboursement de l'acompte, livraison à prix et délai convenu) : HEXAOM Services est enregistré auprès de l'ORIAS en tant que Courtier en financement, Niveau 1, sous le numéro 14001345.
MAISONS FRANCE CONFORT 34 Bd Marcel Sembat 11100 Narbonne
Référence : JE2376061_1
Bien En copropriété : non
Proche de Béziers - Maison neuve 4 pièces en vente à Coursan (11110) avec une surface de 73 m² et de 300 m² de terrain. Conçue de plain-pied, elle offre trois chambres, une cuisine et une salle de bains.
Proche gare (Coursan), établissements scolaires, tennis, boulangeries, commerces, supermarchés, supérette et bureau de poste. Marché Place et Halle hebdomadaire. Accès autoroute A9 à 7 km. Mer Méditerranée à 14 km.
Le prix de vente de cette maison de 4 pièces est de 227 000 €.
Contactez notre agence (ESTADIEU Jeannine : ) pour obtenir de plus amples informations sur la maison, sur les modalités de vente ou sur les démarches à suivre. Maisons France Confort Narbonne vous accompagne dans tous vos projets immobiliers et à toutes les étapes de l'achat.
Nos offres de terrains sont proposées en collaboration avec nos partenaires fonciers pour des maisons dans le cadre de la loi du 10/12/1990, selon disponibilité.
Surface habitable : 73m2.
Nombre de pièces : 4.
Nombre de chambres : 3.
Prix terrain seul : 84900 euros.
Terrain proposé par un partenaire foncier selon disponibilités et autorisation de publicité au prix de 84 900 €. Hors droit d'enregistrement et frais de notaire. Terrain + Maison proposés au prix de 142 100 € (Hors branchements et raccordements, papiers peints, peintures, revêtement de sol dans les chambres. Tarif modifiable sans préavis). Etiquette énergie : A. Différents modèles disponibles pour ce terrain. Assurances et garanties du constructeur (RC professionnelle, décennale, dommage ouvrage, garantie de remboursement de l'acompte, livraison à prix et délai convenu) : HEXAOM Services est enregistré auprès de l'ORIAS en tant que Courtier en financement, Niveau 1, sous le numéro 14001345.
MAISONS FRANCE CONFORT 34 Bd Marcel Sembat 11100 Narbonne
Référence : JE2376061_1
Bien En copropriété : non
* Prix net, hors frais notarié, d'enregistrement et de publicité foncière.
Contactez
MAISONS FRANCE CONFORT
N° de téléphone
Nous contacter