Vente Maison 4 pièces 71 m²

Maison - 4 pièce(s) - 71 m²

385 000 € *
  •   Référence : 1005406_1005132_3615857
  •   Dernière mise à jour : 07/03/2026

A
Classe Énergie
50 kWh/m² an
info
NC
Indice d'émissions de gaz à effet de serre
Non communiqué
info
Pour la nouvelle notation (DPE à partir de juillet 2021), c'est la plus mauvaise des deux performances (énergie, climat) qui est retenue.

Istres (13800)

Maison F4 (71 m²) en vente à Istres
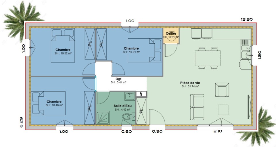
Emplacement privilégié -  En vente à Istres (13800) : maison neuve 4 pièces de 71 m² et de 740 m² de terrain. Elle se divise en trois chambres, une cuisine et une salle de bains.
Proche gares, établissements scolaires, tennis et commerce. Nationales N569 et N568 accessibles à 7 km. Mer Méditerranée à 7 km.
Le prix de vente de cette maison de 4 pièces est de 385 000 €.
Contactez notre agence (GIMENEZ Pierre :O616823612 ) pour plus de renseignements sur la maison. Donnez vie à vos projets immobiliers avec Azur & Constructions Martigues.

Nos offres de terrains sont proposées en collaboration avec nos partenaires fonciers pour des maisons dans le cadre de la loi du 10/12/1990, selon disponibilité.
Surface habitable : 71m2.
Nombre de pièces : 4.
Nombre de chambres : 3.
Prix terrain seul : 260000 euros.

Terrain proposé par un partenaire foncier selon disponibilités et autorisation de publicité au prix de 260 000 €. Hors droit d'enregistrement et frais de notaire. Terrain + Maison proposés au prix de 385 000 € (Hors branchements et raccordements, papiers peints, peintures, revêtement de sol dans les chambres. Tarif modifiable sans préavis). Etiquette énergie : A. Différents modèles disponibles pour ce terrain. Assurances et garanties du constructeur (RC professionnelle, décennale, dommage ouvrage, garantie de remboursement de l'acompte, livraison à prix et délai convenu) :

AZUR & CONSTRUCTIONS Allée Charles Dullin 13500 Martigues
Référence : PG2381293_2



Bien En copropriété : non

* Prix net, hors frais notarié, d'enregistrement et de publicité foncière.

Contactez
AZUR & CONSTRUCTIONS

Adresse postale

Allée Charles Dullin
13500 Martigues
Itinéraire

N° de téléphone

Siret : 39503718700030

Nous contacter

Contactez-nous pour l'annonce "Istres (13800)", Réf. : 1005406_1005132_3615857

* Tous les champs sont obligatoires ** En cas de transmission de coordonnées téléphoniques vous reconnaissez accepter expressément d'être rappelé par l'annonceur