Saint-quay-portrieux (22410)
Maison - 5 pièce(s) - 89 m²
370 000
€ *
- Référence : 1005370_1005127_3618814
- Dernière mise à jour : 07/01/2026
Pour la nouvelle notation (DPE à partir de juillet 2021), c'est la plus mauvaise des deux performances (énergie, climat) qui est retenue.
VENTE d'une maison T5 (89 m²) à Saint-Quay-Portrieux
MAISON 5 PIÈCES NEUVE - PROCHE DE SAINT-BRIEUC
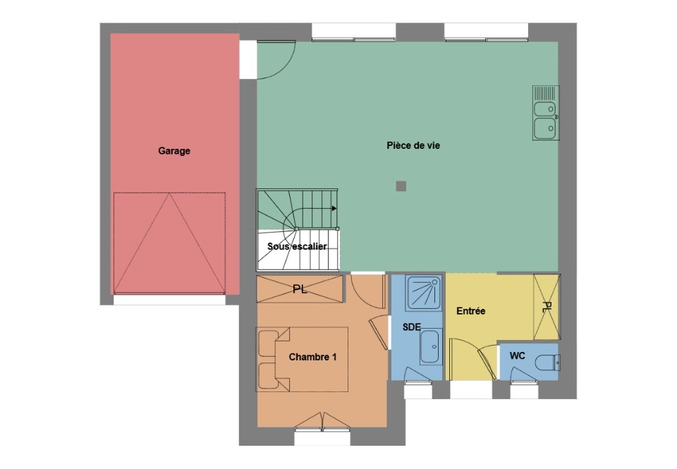
En vente : localisée à 5 km de la Manche et à 17 km de Saint-Brieuc, à Saint-Quay-Portrieux (22410), venez découvrir cette maison de 5 pièces de 89 m² et de 703 m² de terrain.
C'est une maison de 2 niveaux. Son intérieur est composé de quatre chambres, d'une cuisine et de deux salles de bains. La maison est neuve.
On trouve cinq établissements scolaires à moins de 10 minutes à pied. La nationale N12 est accessible à 12 km. Il y a un tennis, des commerces, trois supermarchés, trois boulangeries, deux épiceries et un bureau de poste dans les environs. 2 marchés animent les environs.
Elle est proposée à l'achat pour 370 000 €.
Contactez notre agence (Samuel ROGER : ) pour toute question sur cette maison.
Nos offres de terrains sont proposées en collaboration avec nos partenaires fonciers pour des maisons dans le cadre de la loi du 10/12/1990, selon disponibilité.
Surface habitable : 89m2.
Nombre de pièces : 5.
Nombre de chambres : 4.
Prix terrain seul : 169900 euros.
Terrain proposé par un partenaire foncier selon disponibilités et autorisation de publicité au prix de 169 900 €. Hors droit d'enregistrement et frais de notaire. Terrain + Maison proposés au prix de 200 100 € (Hors branchements et raccordements, papiers peints, peintures, revêtement de sol dans les chambres. Tarif modifiable sans préavis). Etiquette énergie : A. Différents modèles disponibles pour ce terrain. Assurances et garanties du constructeur (RC professionnelle, décennale, dommage ouvrage, garantie de remboursement de l'acompte, livraison à prix et délai convenu) :
MAISONS DE L'AVENIR 1 bis boulevard Carnot 22000 Saint-Brieuc
Référence : SR2381398_2
Bien En copropriété : non
MAISON 5 PIÈCES NEUVE - PROCHE DE SAINT-BRIEUC
En vente : localisée à 5 km de la Manche et à 17 km de Saint-Brieuc, à Saint-Quay-Portrieux (22410), venez découvrir cette maison de 5 pièces de 89 m² et de 703 m² de terrain.
C'est une maison de 2 niveaux. Son intérieur est composé de quatre chambres, d'une cuisine et de deux salles de bains. La maison est neuve.
On trouve cinq établissements scolaires à moins de 10 minutes à pied. La nationale N12 est accessible à 12 km. Il y a un tennis, des commerces, trois supermarchés, trois boulangeries, deux épiceries et un bureau de poste dans les environs. 2 marchés animent les environs.
Elle est proposée à l'achat pour 370 000 €.
Contactez notre agence (Samuel ROGER : ) pour toute question sur cette maison.
Nos offres de terrains sont proposées en collaboration avec nos partenaires fonciers pour des maisons dans le cadre de la loi du 10/12/1990, selon disponibilité.
Surface habitable : 89m2.
Nombre de pièces : 5.
Nombre de chambres : 4.
Prix terrain seul : 169900 euros.
Terrain proposé par un partenaire foncier selon disponibilités et autorisation de publicité au prix de 169 900 €. Hors droit d'enregistrement et frais de notaire. Terrain + Maison proposés au prix de 200 100 € (Hors branchements et raccordements, papiers peints, peintures, revêtement de sol dans les chambres. Tarif modifiable sans préavis). Etiquette énergie : A. Différents modèles disponibles pour ce terrain. Assurances et garanties du constructeur (RC professionnelle, décennale, dommage ouvrage, garantie de remboursement de l'acompte, livraison à prix et délai convenu) :
MAISONS DE L'AVENIR 1 bis boulevard Carnot 22000 Saint-Brieuc
Référence : SR2381398_2
Bien En copropriété : non
* Prix net, hors frais notarié, d'enregistrement et de publicité foncière.
Contactez
MAISONS DE L'AVENIR
N° de téléphone
Nous contacter