Richelieu (37120)
Maison - 4 pièce(s) - 80 m²
180 000
€ *
- Référence : 1044313_1005119_3618318
- Dernière mise à jour : 08/01/2026
Pour la nouvelle notation (DPE à partir de juillet 2021), c'est la plus mauvaise des deux performances (énergie, climat) qui est retenue.
VENTE : maison de 4 pièces (80 m²) à Richelieu
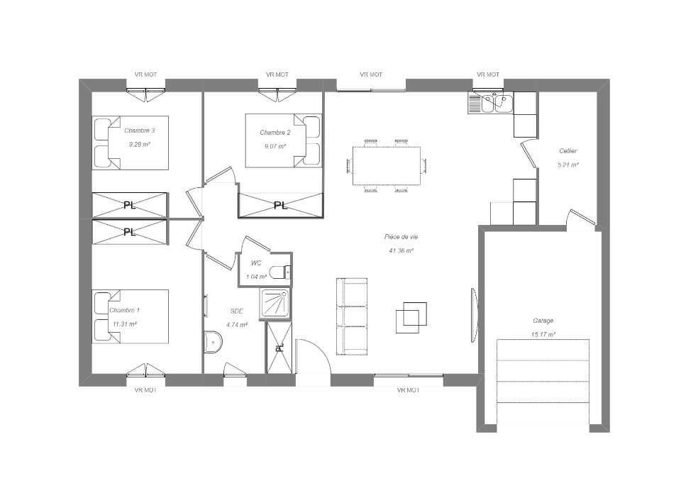
Proche de Châtellerault - Maison neuve 4 pièces en vente à Richelieu (37120) avec une surface de 80 m² sur un terrain de 820 m². Elle est composée de trois chambres, d'une cuisine et d'une salle de bains.
Proche établissements scolaires, tennis, bassin de natation, bibliothèque, commerces, boulangeries, supermarché, bureau de poste et boucheries-charcuteries.
Cette maison de 4 pièces est proposée à l'achat pour 180 000 €.
N'hésitez pas à prendre contact avec Maxime TERNIER (°71) pour obtenir de plus amples renseignements sur la maison de plain-pied ou sur les modalités de vente.
Nos offres de terrains sont proposées en collaboration avec nos partenaires fonciers pour des maisons dans le cadre de la loi du 10/12/1990, selon disponibilité.
Surface habitable : 80m2.
Nombre de pièces : 4.
Nombre de chambres : 3.
Prix terrain seul : 26500 euros.
Terrain proposé par un partenaire foncier selon disponibilités et autorisation de publicité au prix de 26 500 €. Hors droit d'enregistrement et frais de notaire. Terrain + Maison proposés au prix de 153 500 € (Hors branchements et raccordements, papiers peints, peintures, revêtement de sol dans les chambres. Tarif modifiable sans préavis). Etiquette énergie : A. Différents modèles disponibles pour ce terrain. Assurances et garanties du constructeur (RC professionnelle, décennale, dommage ouvrage, garantie de remboursement de l'acompte, livraison à prix et délai convenu) : HEXAOM Services est enregistré auprès de l'ORIAS en tant que Courtier en financement, Niveau 1, sous le numéro 14001345.
MAISONS FRANCE CONFORT 35 rue du général Mocquery 37550 Saint-Avertin
Référence : MT2381154_1
Bien En copropriété : non
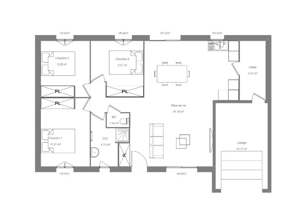
Proche de Châtellerault - Maison neuve 4 pièces en vente à Richelieu (37120) avec une surface de 80 m² sur un terrain de 820 m². Elle est composée de trois chambres, d'une cuisine et d'une salle de bains.
Proche établissements scolaires, tennis, bassin de natation, bibliothèque, commerces, boulangeries, supermarché, bureau de poste et boucheries-charcuteries.
Cette maison de 4 pièces est proposée à l'achat pour 180 000 €.
N'hésitez pas à prendre contact avec Maxime TERNIER (°71) pour obtenir de plus amples renseignements sur la maison de plain-pied ou sur les modalités de vente.
Nos offres de terrains sont proposées en collaboration avec nos partenaires fonciers pour des maisons dans le cadre de la loi du 10/12/1990, selon disponibilité.
Surface habitable : 80m2.
Nombre de pièces : 4.
Nombre de chambres : 3.
Prix terrain seul : 26500 euros.
Terrain proposé par un partenaire foncier selon disponibilités et autorisation de publicité au prix de 26 500 €. Hors droit d'enregistrement et frais de notaire. Terrain + Maison proposés au prix de 153 500 € (Hors branchements et raccordements, papiers peints, peintures, revêtement de sol dans les chambres. Tarif modifiable sans préavis). Etiquette énergie : A. Différents modèles disponibles pour ce terrain. Assurances et garanties du constructeur (RC professionnelle, décennale, dommage ouvrage, garantie de remboursement de l'acompte, livraison à prix et délai convenu) : HEXAOM Services est enregistré auprès de l'ORIAS en tant que Courtier en financement, Niveau 1, sous le numéro 14001345.
MAISONS FRANCE CONFORT 35 rue du général Mocquery 37550 Saint-Avertin
Référence : MT2381154_1
Bien En copropriété : non
* Prix net, hors frais notarié, d'enregistrement et de publicité foncière.
Contactez
MAISONS FRANCE CONFORT
N° de téléphone
Nous contacter