Buigny-saint-maclou (80132)
Maison - 8 pièce(s) - 123 m²
298 779
€ *
- Référence : 1005480_1005146_3620193
- Dernière mise à jour : 08/01/2026
Pour la nouvelle notation (DPE à partir de juillet 2021), c'est la plus mauvaise des deux performances (énergie, climat) qui est retenue.
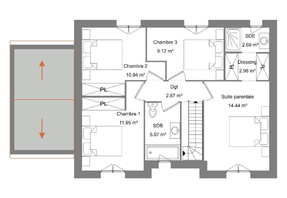
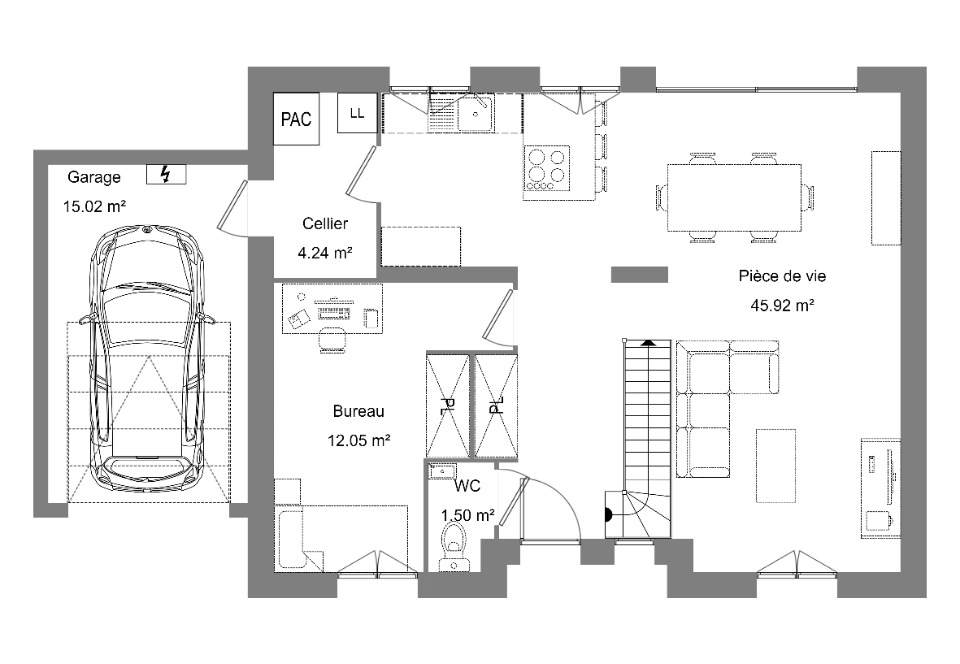
Maison de 8 pièces (123 m²) à bâtir à Buigny-Saint-Maclou
Idéalement située - Maison neuve 8 pièces à bâtir à Buigny-Saint-Maclou (80132) avec 2 niveaux, une surface de 123 m² sur un terrain de 801 m². Son intérieur dispose de cinq chambres, d'une cuisine et de deux salles de bains.
Proche gares (Abbeville et Noyelles-sur-Mer), écoles, tennis. Accès autoroutes A16 et A28 à 4 km. Manche à 33 km.
Cette maison de 8 pièces est à vendre pour la somme de 298 779 €.
N'hésitez pas à prendre contact avec Camille CISSEVILLE (tél : ) pour obtenir de plus amples informations sur la maison ou sur les démarches à suivre. Maisons Les Naturelles Abbeville vous accompagne dans tous vos projets immobiliers et à toutes les étapes de votre projet.
Nos offres de terrains sont proposées en collaboration avec nos partenaires fonciers pour des maisons dans le cadre de la loi du 10/12/1990, selon disponibilité.
Surface habitable : 123m2.
Nombre de pièces : 8.
Nombre de chambres : 5.
Prix terrain seul : 70000 euros.
Terrain proposé par un partenaire foncier selon disponibilités et autorisation de publicité au prix de 70 000 €. Hors droit d'enregistrement et frais de notaire. Terrain + Maison proposés au prix de 228 779 € (Hors branchements et raccordements, papiers peints, peintures, revêtement de sol dans les chambres. Tarif modifiable sans préavis). Etiquette énergie : A. Différents modèles disponibles pour ce terrain. Assurances et garanties du constructeur (RC professionnelle, décennale, dommage ouvrage, garantie de remboursement de l'acompte, livraison à prix et délai convenu) :
MAISONS LES NATURELLES 2 rue Lesueur 80100 Abbeville
Référence : CC2385540_2
Bien En copropriété : non
Idéalement située - Maison neuve 8 pièces à bâtir à Buigny-Saint-Maclou (80132) avec 2 niveaux, une surface de 123 m² sur un terrain de 801 m². Son intérieur dispose de cinq chambres, d'une cuisine et de deux salles de bains.
Proche gares (Abbeville et Noyelles-sur-Mer), écoles, tennis. Accès autoroutes A16 et A28 à 4 km. Manche à 33 km.
Cette maison de 8 pièces est à vendre pour la somme de 298 779 €.
N'hésitez pas à prendre contact avec Camille CISSEVILLE (tél : ) pour obtenir de plus amples informations sur la maison ou sur les démarches à suivre. Maisons Les Naturelles Abbeville vous accompagne dans tous vos projets immobiliers et à toutes les étapes de votre projet.
Nos offres de terrains sont proposées en collaboration avec nos partenaires fonciers pour des maisons dans le cadre de la loi du 10/12/1990, selon disponibilité.
Surface habitable : 123m2.
Nombre de pièces : 8.
Nombre de chambres : 5.
Prix terrain seul : 70000 euros.
Terrain proposé par un partenaire foncier selon disponibilités et autorisation de publicité au prix de 70 000 €. Hors droit d'enregistrement et frais de notaire. Terrain + Maison proposés au prix de 228 779 € (Hors branchements et raccordements, papiers peints, peintures, revêtement de sol dans les chambres. Tarif modifiable sans préavis). Etiquette énergie : A. Différents modèles disponibles pour ce terrain. Assurances et garanties du constructeur (RC professionnelle, décennale, dommage ouvrage, garantie de remboursement de l'acompte, livraison à prix et délai convenu) :
MAISONS LES NATURELLES 2 rue Lesueur 80100 Abbeville
Référence : CC2385540_2
Bien En copropriété : non
* Prix net, hors frais notarié, d'enregistrement et de publicité foncière.
Contactez
MAISONS LES NATURELLES
N° de téléphone
Nous contacter