La chapelle-du-bois-de... (27930)
Maison - 1 pièce(s) - 80 m²
199 000
€ *
- Référence : 1033816_1005119_3619589
- Dernière mise à jour : 08/01/2026
Pour la nouvelle notation (DPE à partir de juillet 2021), c'est la plus mauvaise des deux performances (énergie, climat) qui est retenue.
La Chapelle-du-Bois-des-Faulx : maison T1 (80 m²) en vente
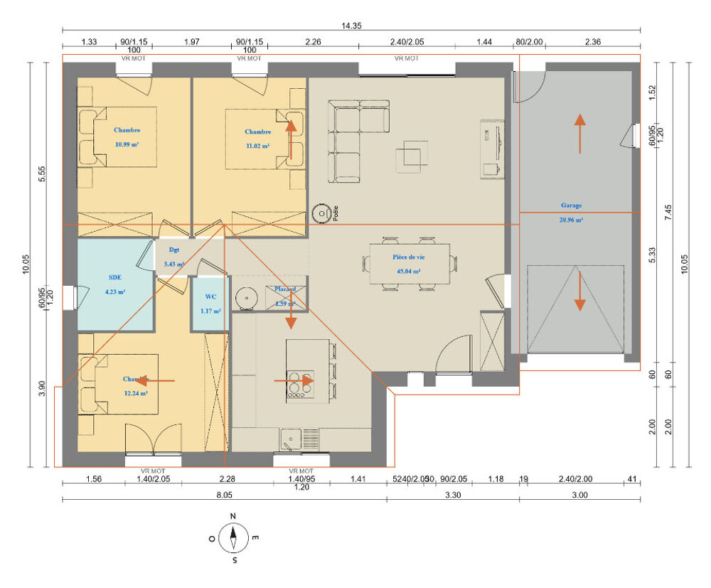
Idéalement située - À découvrir à La Chapelle-du-Bois-des-Faulx (27930) : maison neuve 1 pièce à vendre, 80 m² sur 383 m² de terrain. Conçue de plain-pied, elle inclut trois chambres, une cuisine et une salle de bains.
À proximité : École Élémentaire Jules Ferry. Accès autoroutes A154 et A13 et nationales N154 et N13 à 10 km. Évreux à 10 km.
Le prix de vente de cette maison 1 pièce est de 199 000 €.
N'hésitez pas à prendre contact avec notre agence (BESNARD Mickael : ) pour toute question sur la maison, sur les démarches à suivre ou sur les modalités de vente. Maisons France Confort Vernon est là pour vous accompagner à toutes les étapes de votre projet.
Annonce proposée par un Agent Commercial Partenaire.
Nos offres de terrains sont proposées en collaboration avec nos partenaires fonciers pour des maisons dans le cadre de la loi du 10/12/1990, selon disponibilité.
Surface habitable : 80m2.
Nombre de pièces : 1.
Nombre de chambres : 3.
Prix terrain seul : 40000 euros.
Terrain proposé par un partenaire foncier selon disponibilités et autorisation de publicité au prix de 40 000 €. Hors droit d'enregistrement et frais de notaire. Terrain + Maison proposés au prix de 159 000 € (Hors branchements et raccordements, papiers peints, peintures, revêtement de sol dans les chambres. Tarif modifiable sans préavis). Etiquette énergie : A. Différents modèles disponibles pour ce terrain. Assurances et garanties du constructeur (RC professionnelle, décennale, dommage ouvrage, garantie de remboursement de l'acompte, livraison à prix et délai convenu) : HEXAOM Services est enregistré auprès de l'ORIAS en tant que Courtier en financement, Niveau 1, sous le numéro 14001345.
MAISONS FRANCE CONFORT 38 rue Carnot 27200 Vernon
Référence : MB2382364_3
Bien En copropriété : non
Idéalement située - À découvrir à La Chapelle-du-Bois-des-Faulx (27930) : maison neuve 1 pièce à vendre, 80 m² sur 383 m² de terrain. Conçue de plain-pied, elle inclut trois chambres, une cuisine et une salle de bains.
À proximité : École Élémentaire Jules Ferry. Accès autoroutes A154 et A13 et nationales N154 et N13 à 10 km. Évreux à 10 km.
Le prix de vente de cette maison 1 pièce est de 199 000 €.
N'hésitez pas à prendre contact avec notre agence (BESNARD Mickael : ) pour toute question sur la maison, sur les démarches à suivre ou sur les modalités de vente. Maisons France Confort Vernon est là pour vous accompagner à toutes les étapes de votre projet.
Annonce proposée par un Agent Commercial Partenaire.
Nos offres de terrains sont proposées en collaboration avec nos partenaires fonciers pour des maisons dans le cadre de la loi du 10/12/1990, selon disponibilité.
Surface habitable : 80m2.
Nombre de pièces : 1.
Nombre de chambres : 3.
Prix terrain seul : 40000 euros.
Terrain proposé par un partenaire foncier selon disponibilités et autorisation de publicité au prix de 40 000 €. Hors droit d'enregistrement et frais de notaire. Terrain + Maison proposés au prix de 159 000 € (Hors branchements et raccordements, papiers peints, peintures, revêtement de sol dans les chambres. Tarif modifiable sans préavis). Etiquette énergie : A. Différents modèles disponibles pour ce terrain. Assurances et garanties du constructeur (RC professionnelle, décennale, dommage ouvrage, garantie de remboursement de l'acompte, livraison à prix et délai convenu) : HEXAOM Services est enregistré auprès de l'ORIAS en tant que Courtier en financement, Niveau 1, sous le numéro 14001345.
MAISONS FRANCE CONFORT 38 rue Carnot 27200 Vernon
Référence : MB2382364_3
Bien En copropriété : non
* Prix net, hors frais notarié, d'enregistrement et de publicité foncière.
Contactez
MAISONS FRANCE CONFORT
N° de téléphone
Nous contacter