Longueville (77650)
Maison - 5 pièce(s) - 90 m²
233 000
€ *
- Référence : 1044138_1005119_3556205
- Dernière mise à jour : 09/01/2026
Pour la nouvelle notation (DPE à partir de juillet 2021), c'est la plus mauvaise des deux performances (énergie, climat) qui est retenue.
Réalisez Votre projet de construction sur la commune de Longueville
En vente à proximité immédiate de la gare de Longueville
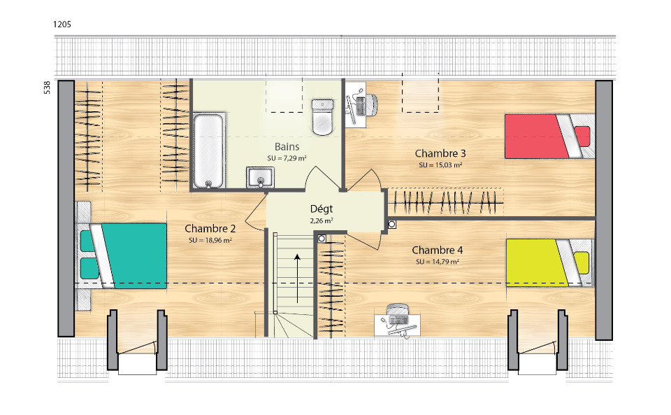
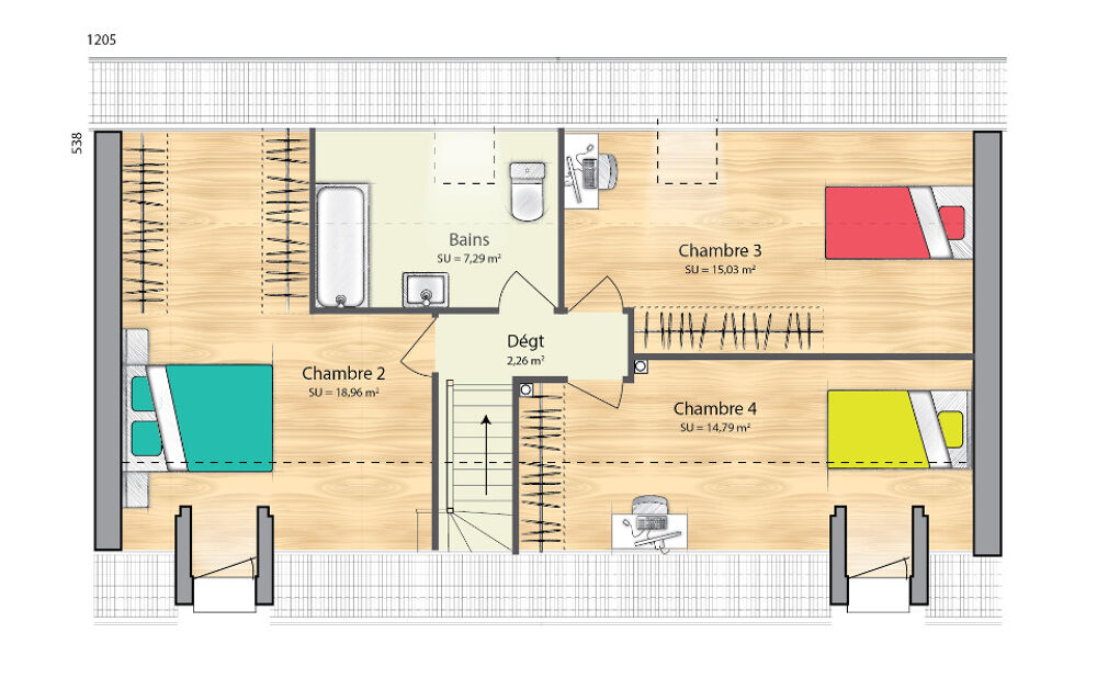
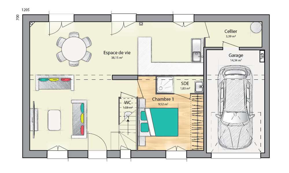
Maisons France Confort vous présente à Longueville cette maison de 5 pièces de 90 m².
Cette maison se compose de 4 chambres, une cuisine 1 salle de bains et un garage. Cette maison est neuve.
Le terrain de la propriété s'étend sur 1235 m².
Elle est proposée à l'achat pour 233000 €. Hors frais annexes
N'hésitez pas à prendre contact avec Sandrine BOUCHOUX : pour tout renseignement sur ce projet.
Maisons France Confort PROVINS est là pour vous accompagner dans tous vos projets immobiliers.
Annonce proposée par un Agent Commercial Partenaire.
Nos offres de terrains sont proposées en collaboration avec nos partenaires fonciers pour des maisons dans le cadre de la loi du 10/12/1990, selon disponibilité.
Surface habitable : 90m2.
Nombre de pièces : 5.
Nombre de chambres : 4.
Prix terrain seul : 43000 euros.
Terrain proposé par un partenaire foncier selon disponibilités et autorisation de publicité au prix de 43 000 €. Hors droit d'enregistrement et frais de notaire. Terrain + Maison proposés au prix de 190 000 € (Hors branchements et raccordements, papiers peints, peintures, revêtement de sol dans les chambres. Tarif modifiable sans préavis). Etiquette énergie : A. Différents modèles disponibles pour ce terrain. Assurances et garanties du constructeur (RC professionnelle, décennale, dommage ouvrage, garantie de remboursement de l'acompte, livraison à prix et délai convenu) : HEXAOM Services est enregistré auprès de l'ORIAS en tant que Courtier en financement, Niveau 1, sous le numéro 14001345.
MAISONS FRANCE CONFORT 10 rue Hugues le Grand 77160 Provins
Référence : SBlongueville_5
Bien En copropriété : non
En vente à proximité immédiate de la gare de Longueville
Maisons France Confort vous présente à Longueville cette maison de 5 pièces de 90 m².
Cette maison se compose de 4 chambres, une cuisine 1 salle de bains et un garage. Cette maison est neuve.
Le terrain de la propriété s'étend sur 1235 m².
Elle est proposée à l'achat pour 233000 €. Hors frais annexes
N'hésitez pas à prendre contact avec Sandrine BOUCHOUX : pour tout renseignement sur ce projet.
Maisons France Confort PROVINS est là pour vous accompagner dans tous vos projets immobiliers.
Annonce proposée par un Agent Commercial Partenaire.
Nos offres de terrains sont proposées en collaboration avec nos partenaires fonciers pour des maisons dans le cadre de la loi du 10/12/1990, selon disponibilité.
Surface habitable : 90m2.
Nombre de pièces : 5.
Nombre de chambres : 4.
Prix terrain seul : 43000 euros.
Terrain proposé par un partenaire foncier selon disponibilités et autorisation de publicité au prix de 43 000 €. Hors droit d'enregistrement et frais de notaire. Terrain + Maison proposés au prix de 190 000 € (Hors branchements et raccordements, papiers peints, peintures, revêtement de sol dans les chambres. Tarif modifiable sans préavis). Etiquette énergie : A. Différents modèles disponibles pour ce terrain. Assurances et garanties du constructeur (RC professionnelle, décennale, dommage ouvrage, garantie de remboursement de l'acompte, livraison à prix et délai convenu) : HEXAOM Services est enregistré auprès de l'ORIAS en tant que Courtier en financement, Niveau 1, sous le numéro 14001345.
MAISONS FRANCE CONFORT 10 rue Hugues le Grand 77160 Provins
Référence : SBlongueville_5
Bien En copropriété : non
* Prix net, hors frais notarié, d'enregistrement et de publicité foncière.
Contactez
MAISONS FRANCE CONFORT
N° de téléphone
Nous contacter