Auzielle (31650)
Maison - 6 pièce(s) - 130 m²
399 092
€ *
- Référence : 1010987_1005119_3621844
- Dernière mise à jour : 09/01/2026
Pour la nouvelle notation (DPE à partir de juillet 2021), c'est la plus mauvaise des deux performances (énergie, climat) qui est retenue.
AUZIELLE
Terrain de 555 m² + Maison de 130 m² + Garage de 19 m²
À partir de 399 092 € hors frais de notaire et hors frais annexes
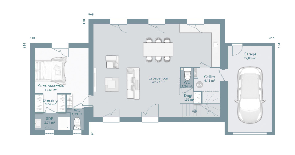
Votre maison est composée, en rez-de-chaussée, d'une suite parentale de 20 m² avec WC, d'un grand dressing et d'une salle d'eau privative. La partie jour de 41 m² comprend une entrée, un WC, un espace de vie avec cuisine ouverte, un cellier et un garage. À l'étage, la zone nuit dispose d'une salle de bains avec WC séparés et de 3 chambres, dont une suite parentale avec salle d'eau privative et dressing. Vous apprécierez son harmonie naturelle et la qualité de ses finitions.
Sur cette charmante parcelle idéalement située dans la commune d'Auzielle. Ce terrain entièrement viabilisé au centre du village dispose de toutes les commodités : écoles, commerce, pharmacie, etc... N'hésitez plus !
La modification des plans et du niveau de prestations est possible selon vos envies et votre budget.
Maisons France Confort vous offre, dans votre contrat de construction de maison individuelle : étude de financement confidentielle et gratuite, garanties de livraison au prix et dans les délais convenus, garantie de parfait achèvement, garantie de bon fonctionnement, garantie décennale et assurance dommages ouvrage, garantie de remboursement de l'acompte perçu, garantie des normes RE2020 ainsi qu'une étude de sol.
Pour toute information, contactez l'agence MAISONS FRANCE CONFORT de Saint-Orens
Annonce proposée par un Agent Commercial Partenaire.
Nos offres de terrains sont proposées en collaboration avec nos partenaires fonciers pour des maisons dans le cadre de la loi du 10/12/1990, selon disponibilité.
Surface habitable : 130m2.
Nombre de pièces : 6.
Nombre de chambres : 4.
Prix terrain seul : 164900 euros.
Terrain proposé par un partenaire foncier selon disponibilités et autorisation de publicité au prix de 164 900 €. Hors droit d'enregistrement et frais de notaire. Terrain + Maison proposés au prix de 234 192 € (Hors branchements et raccordements, papiers peints, peintures, revêtement de sol dans les chambres. Tarif modifiable sans préavis). Etiquette énergie : A. Différents modèles disponibles pour ce terrain. Assurances et garanties du constructeur (RC professionnelle, décennale, dommage ouvrage, garantie de remboursement de l'acompte, livraison à prix et délai convenu) : HEXAOM Services est enregistré auprès de l'ORIAS en tant que Courtier en financement, Niveau 1, sous le numéro 14001345.
MAISONS FRANCE CONFORT 1 rue de la plaine 31650 Saint-Orens-de-Gameville
Référence : TL2385124_3
Bien En copropriété : non
Terrain de 555 m² + Maison de 130 m² + Garage de 19 m²
À partir de 399 092 € hors frais de notaire et hors frais annexes
Votre maison est composée, en rez-de-chaussée, d'une suite parentale de 20 m² avec WC, d'un grand dressing et d'une salle d'eau privative. La partie jour de 41 m² comprend une entrée, un WC, un espace de vie avec cuisine ouverte, un cellier et un garage. À l'étage, la zone nuit dispose d'une salle de bains avec WC séparés et de 3 chambres, dont une suite parentale avec salle d'eau privative et dressing. Vous apprécierez son harmonie naturelle et la qualité de ses finitions.
Sur cette charmante parcelle idéalement située dans la commune d'Auzielle. Ce terrain entièrement viabilisé au centre du village dispose de toutes les commodités : écoles, commerce, pharmacie, etc... N'hésitez plus !
La modification des plans et du niveau de prestations est possible selon vos envies et votre budget.
Maisons France Confort vous offre, dans votre contrat de construction de maison individuelle : étude de financement confidentielle et gratuite, garanties de livraison au prix et dans les délais convenus, garantie de parfait achèvement, garantie de bon fonctionnement, garantie décennale et assurance dommages ouvrage, garantie de remboursement de l'acompte perçu, garantie des normes RE2020 ainsi qu'une étude de sol.
Pour toute information, contactez l'agence MAISONS FRANCE CONFORT de Saint-Orens
Annonce proposée par un Agent Commercial Partenaire.
Nos offres de terrains sont proposées en collaboration avec nos partenaires fonciers pour des maisons dans le cadre de la loi du 10/12/1990, selon disponibilité.
Surface habitable : 130m2.
Nombre de pièces : 6.
Nombre de chambres : 4.
Prix terrain seul : 164900 euros.
Terrain proposé par un partenaire foncier selon disponibilités et autorisation de publicité au prix de 164 900 €. Hors droit d'enregistrement et frais de notaire. Terrain + Maison proposés au prix de 234 192 € (Hors branchements et raccordements, papiers peints, peintures, revêtement de sol dans les chambres. Tarif modifiable sans préavis). Etiquette énergie : A. Différents modèles disponibles pour ce terrain. Assurances et garanties du constructeur (RC professionnelle, décennale, dommage ouvrage, garantie de remboursement de l'acompte, livraison à prix et délai convenu) : HEXAOM Services est enregistré auprès de l'ORIAS en tant que Courtier en financement, Niveau 1, sous le numéro 14001345.
MAISONS FRANCE CONFORT 1 rue de la plaine 31650 Saint-Orens-de-Gameville
Référence : TL2385124_3
Bien En copropriété : non
* Prix net, hors frais notarié, d'enregistrement et de publicité foncière.
Contactez
MAISONS FRANCE CONFORT
N° de téléphone
Nous contacter