Saint-yvi (29140)
Maison - 4 pièce(s) - 95 m²
290 000
€ *
- Référence : 1005377_1005127_3624501
- Dernière mise à jour : 12/01/2026
Pour la nouvelle notation (DPE à partir de juillet 2021), c'est la plus mauvaise des deux performances (énergie, climat) qui est retenue.
Saint-Yvi : maison de 4 pièces (95 m²) en vente
PROCHE CENTRE-VILLE - MAISON 4 PIÈCES NEUVE
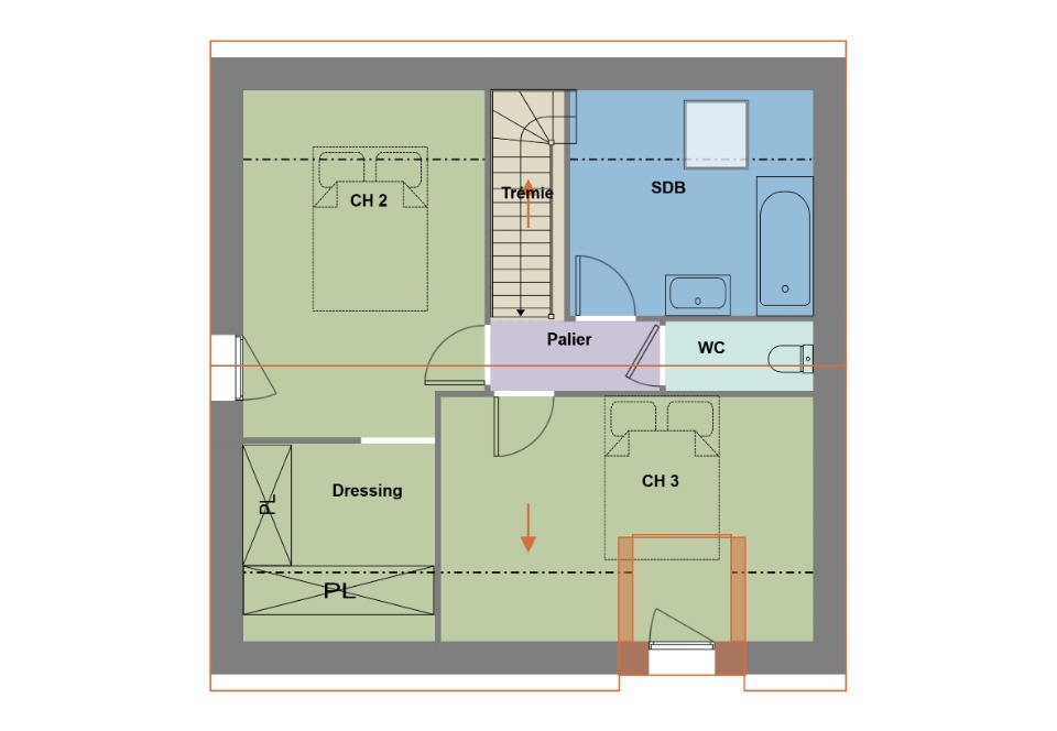
À 10 km de l'océan Atlantique et à quelques kilomètres de Quimper, en vente proche du centre-ville de Saint-Yvi (29140), ayez le coup de coeur pour cette maison de 4 pièces de 95 m². Son intérieur se divise en trois chambres, une cuisine et deux salles de bains.
Le terrain du bien est de 398 m².
Il s'agit d'une maison de 2 niveaux.
Son prix de vente est de 275 000 €.
Prenez contact avec Mathieu DEROUET () pour plus d'informations sur la propriété, sur les modalités de vente ou sur les démarches à suivre. Maisons de l'Avenir Quimper vous accompagne à toutes les étapes de l'achat et dans tous vos projets immobiliers.
Nos offres de terrains sont proposées en collaboration avec nos partenaires fonciers pour des maisons dans le cadre de la loi du 10/12/1990, selon disponibilité.
Surface habitable : 95m2.
Nombre de pièces : 4.
Nombre de chambres : 3.
Prix terrain seul : 46000 euros.
Terrain proposé par un partenaire foncier selon disponibilités et autorisation de publicité au prix de 46 000 €. Hors droit d'enregistrement et frais de notaire. Terrain + Maison proposés au prix de 244 000 € (Hors branchements et raccordements, papiers peints, peintures, revêtement de sol dans les chambres. Tarif modifiable sans préavis). Etiquette énergie : A. Différents modèles disponibles pour ce terrain. Assurances et garanties du constructeur (RC professionnelle, décennale, dommage ouvrage, garantie de remboursement de l'acompte, livraison à prix et délai convenu) :
MAISONS DE L'AVENIR 3, chemin de Gwaremm Ar Wern 29000 Quimper
Référence : MD2389734_2
Bien En copropriété : non
PROCHE CENTRE-VILLE - MAISON 4 PIÈCES NEUVE
À 10 km de l'océan Atlantique et à quelques kilomètres de Quimper, en vente proche du centre-ville de Saint-Yvi (29140), ayez le coup de coeur pour cette maison de 4 pièces de 95 m². Son intérieur se divise en trois chambres, une cuisine et deux salles de bains.
Le terrain du bien est de 398 m².
Il s'agit d'une maison de 2 niveaux.
Son prix de vente est de 275 000 €.
Prenez contact avec Mathieu DEROUET () pour plus d'informations sur la propriété, sur les modalités de vente ou sur les démarches à suivre. Maisons de l'Avenir Quimper vous accompagne à toutes les étapes de l'achat et dans tous vos projets immobiliers.
Nos offres de terrains sont proposées en collaboration avec nos partenaires fonciers pour des maisons dans le cadre de la loi du 10/12/1990, selon disponibilité.
Surface habitable : 95m2.
Nombre de pièces : 4.
Nombre de chambres : 3.
Prix terrain seul : 46000 euros.
Terrain proposé par un partenaire foncier selon disponibilités et autorisation de publicité au prix de 46 000 €. Hors droit d'enregistrement et frais de notaire. Terrain + Maison proposés au prix de 244 000 € (Hors branchements et raccordements, papiers peints, peintures, revêtement de sol dans les chambres. Tarif modifiable sans préavis). Etiquette énergie : A. Différents modèles disponibles pour ce terrain. Assurances et garanties du constructeur (RC professionnelle, décennale, dommage ouvrage, garantie de remboursement de l'acompte, livraison à prix et délai convenu) :
MAISONS DE L'AVENIR 3, chemin de Gwaremm Ar Wern 29000 Quimper
Référence : MD2389734_2
Bien En copropriété : non
* Prix net, hors frais notarié, d'enregistrement et de publicité foncière.
Contactez
MAISONS DE L'AVENIR
N° de téléphone
Nous contacter