Saint-yvi (29140)
Maison - 5 pièce(s) - 125 m²
356 000
€ *
- Référence : 1005377_1005127_3624552
- Dernière mise à jour : 12/01/2026
Pour la nouvelle notation (DPE à partir de juillet 2021), c'est la plus mauvaise des deux performances (énergie, climat) qui est retenue.
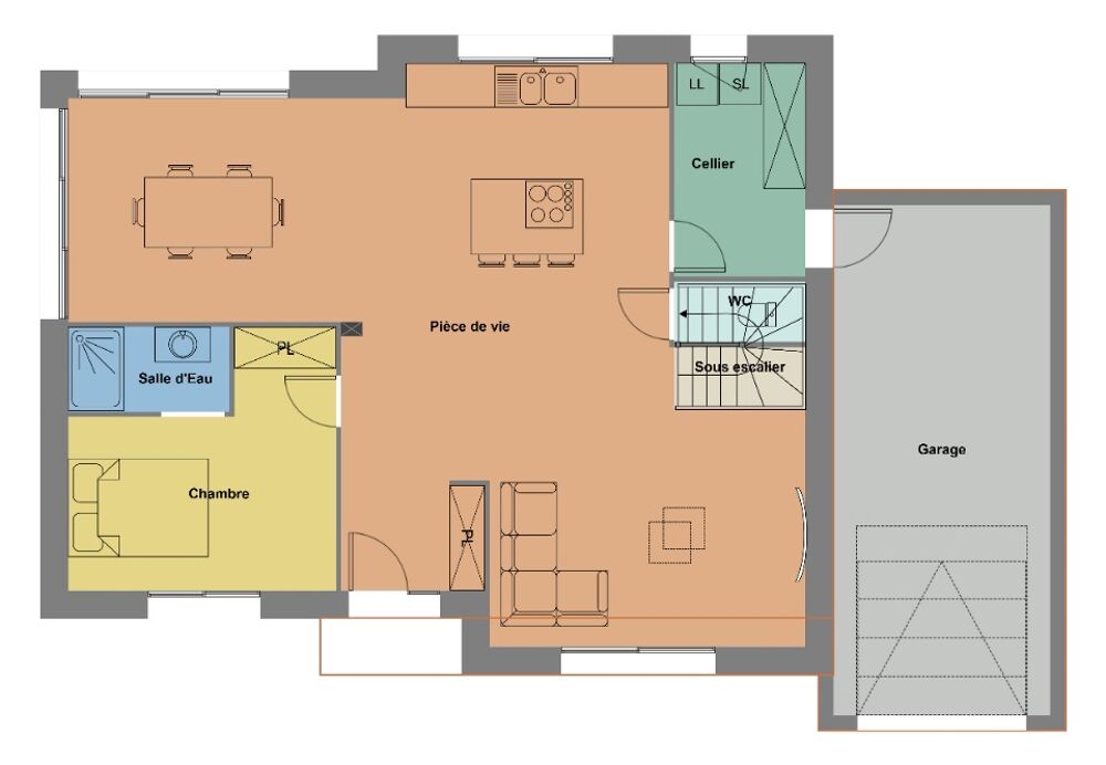
Maison F5 (125 m²) à vendre à Saint-Yvi
PROCHE CENTRE-VILLE - MAISON 5 PIÈCES NEUVE
À vendre : située à 10 km de l'océan Atlantique et à deux pas de Quimper, ayez le coup de coeur pour cette maison de 5 pièces de 125 m² et de 398 m² de terrain proche du centre-ville de Saint-Yvi (29140). Elle compte quatre chambres, une cuisine et deux salles de bains.
Il s'agit d'une maison de 2 niveaux.
Son prix de vente est de 356 000 €.
Contactez notre agence (DEROUET Mathieu : ) pour plus d'informations sur le bien. Maisons de l'Avenir Quimper est là pour vous accompagner dans toutes vos démarches.
Nos offres de terrains sont proposées en collaboration avec nos partenaires fonciers pour des maisons dans le cadre de la loi du 10/12/1990, selon disponibilité.
Surface habitable : 125m2.
Nombre de pièces : 5.
Nombre de chambres : 4.
Prix terrain seul : 46000 euros.
Terrain proposé par un partenaire foncier selon disponibilités et autorisation de publicité au prix de 46 000 €. Hors droit d'enregistrement et frais de notaire. Terrain + Maison proposés au prix de 310 000 € (Hors branchements et raccordements, papiers peints, peintures, revêtement de sol dans les chambres. Tarif modifiable sans préavis). Etiquette énergie : A. Différents modèles disponibles pour ce terrain. Assurances et garanties du constructeur (RC professionnelle, décennale, dommage ouvrage, garantie de remboursement de l'acompte, livraison à prix et délai convenu) :
MAISONS DE L'AVENIR 3, chemin de Gwaremm Ar Wern 29000 Quimper
Référence : MD2389734_4
Bien En copropriété : non
PROCHE CENTRE-VILLE - MAISON 5 PIÈCES NEUVE
À vendre : située à 10 km de l'océan Atlantique et à deux pas de Quimper, ayez le coup de coeur pour cette maison de 5 pièces de 125 m² et de 398 m² de terrain proche du centre-ville de Saint-Yvi (29140). Elle compte quatre chambres, une cuisine et deux salles de bains.
Il s'agit d'une maison de 2 niveaux.
Son prix de vente est de 356 000 €.
Contactez notre agence (DEROUET Mathieu : ) pour plus d'informations sur le bien. Maisons de l'Avenir Quimper est là pour vous accompagner dans toutes vos démarches.
Nos offres de terrains sont proposées en collaboration avec nos partenaires fonciers pour des maisons dans le cadre de la loi du 10/12/1990, selon disponibilité.
Surface habitable : 125m2.
Nombre de pièces : 5.
Nombre de chambres : 4.
Prix terrain seul : 46000 euros.
Terrain proposé par un partenaire foncier selon disponibilités et autorisation de publicité au prix de 46 000 €. Hors droit d'enregistrement et frais de notaire. Terrain + Maison proposés au prix de 310 000 € (Hors branchements et raccordements, papiers peints, peintures, revêtement de sol dans les chambres. Tarif modifiable sans préavis). Etiquette énergie : A. Différents modèles disponibles pour ce terrain. Assurances et garanties du constructeur (RC professionnelle, décennale, dommage ouvrage, garantie de remboursement de l'acompte, livraison à prix et délai convenu) :
MAISONS DE L'AVENIR 3, chemin de Gwaremm Ar Wern 29000 Quimper
Référence : MD2389734_4
Bien En copropriété : non
* Prix net, hors frais notarié, d'enregistrement et de publicité foncière.
Contactez
MAISONS DE L'AVENIR
N° de téléphone
Nous contacter