Beaumont-sur-sarthe (72170)
Maison - 7 pièce(s) - 150 m²
286 000
€ *
- Référence : 1005160_1005119_3553822
- Dernière mise à jour : 13/01/2026
Pour la nouvelle notation (DPE à partir de juillet 2021), c'est la plus mauvaise des deux performances (énergie, climat) qui est retenue.
VENTE : maison de 7 pièces (150 m²) à 5 minutes de BEAUMONT SUR SARTHE
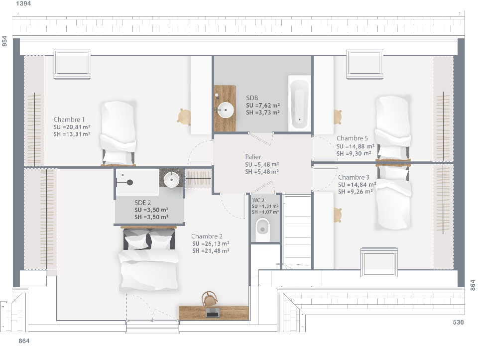
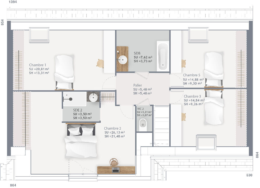
Idéalement située - À vendre à 5 minutes de BEAUMONT SUR SARTHE : maison neuve 7 pièces de 150 m² sur un terrain de 772 m². Son intérieur compte cinq chambres, une cuisine et deux salles de bains.
Proche gares (Vivoin-Beaumont et La Hutte Coulombiers), écoles. Accès autoroute A28 à 6 km. Alençon à 19 km.
Cette maison de 7 pièces est à vendre pour la somme de 286 000 €.
Contactez Elisa RODRIGUES MORAIS (tél : ) pour obtenir de plus amples renseignements sur la maison ou sur les modalités de vente. Faites de vos projets immobiliers une réalité avec Maisons France Confort Saint-Saturnin.
Nos offres de terrains sont proposées en collaboration avec nos partenaires fonciers pour des maisons dans le cadre de la loi du 10/12/1990, selon disponibilité.
Surface habitable : 150m2.
Nombre de pièces : 7.
Nombre de chambres : 5.
Prix terrain seul : 20400 euros.
Terrain proposé par un partenaire foncier selon disponibilités et autorisation de publicité au prix de 20 400 €. Hors droit d'enregistrement et frais de notaire. Terrain + Maison proposés au prix de 265 600 € (Hors branchements et raccordements, papiers peints, peintures, revêtement de sol dans les chambres. Tarif modifiable sans préavis). Etiquette énergie : A. Différents modèles disponibles pour ce terrain. Assurances et garanties du constructeur (RC professionnelle, décennale, dommage ouvrage, garantie de remboursement de l'acompte, livraison à prix et délai convenu) : HEXAOM Services est enregistré auprès de l'ORIAS en tant que Courtier en financement, Niveau 1, sous le numéro 14001345.
MAISONS FRANCE CONFORT 148 Avenue Rhin et Danube 61000 Alençon
Référence : ERM2319972_5
Bien En copropriété : non
Idéalement située - À vendre à 5 minutes de BEAUMONT SUR SARTHE : maison neuve 7 pièces de 150 m² sur un terrain de 772 m². Son intérieur compte cinq chambres, une cuisine et deux salles de bains.
Proche gares (Vivoin-Beaumont et La Hutte Coulombiers), écoles. Accès autoroute A28 à 6 km. Alençon à 19 km.
Cette maison de 7 pièces est à vendre pour la somme de 286 000 €.
Contactez Elisa RODRIGUES MORAIS (tél : ) pour obtenir de plus amples renseignements sur la maison ou sur les modalités de vente. Faites de vos projets immobiliers une réalité avec Maisons France Confort Saint-Saturnin.
Nos offres de terrains sont proposées en collaboration avec nos partenaires fonciers pour des maisons dans le cadre de la loi du 10/12/1990, selon disponibilité.
Surface habitable : 150m2.
Nombre de pièces : 7.
Nombre de chambres : 5.
Prix terrain seul : 20400 euros.
Terrain proposé par un partenaire foncier selon disponibilités et autorisation de publicité au prix de 20 400 €. Hors droit d'enregistrement et frais de notaire. Terrain + Maison proposés au prix de 265 600 € (Hors branchements et raccordements, papiers peints, peintures, revêtement de sol dans les chambres. Tarif modifiable sans préavis). Etiquette énergie : A. Différents modèles disponibles pour ce terrain. Assurances et garanties du constructeur (RC professionnelle, décennale, dommage ouvrage, garantie de remboursement de l'acompte, livraison à prix et délai convenu) : HEXAOM Services est enregistré auprès de l'ORIAS en tant que Courtier en financement, Niveau 1, sous le numéro 14001345.
MAISONS FRANCE CONFORT 148 Avenue Rhin et Danube 61000 Alençon
Référence : ERM2319972_5
Bien En copropriété : non
* Prix net, hors frais notarié, d'enregistrement et de publicité foncière.
Contactez
MAISONS FRANCE CONFORT
N° de téléphone
Nous contacter