Mitry-mory (77290)
Maison - 8 pièce(s) - 200 m²
762 812
€ *
- Référence : 1046281_1005120_3626791
- Dernière mise à jour : 14/01/2026
Pour la nouvelle notation (DPE à partir de juillet 2021), c'est la plus mauvaise des deux performances (énergie, climat) qui est retenue.
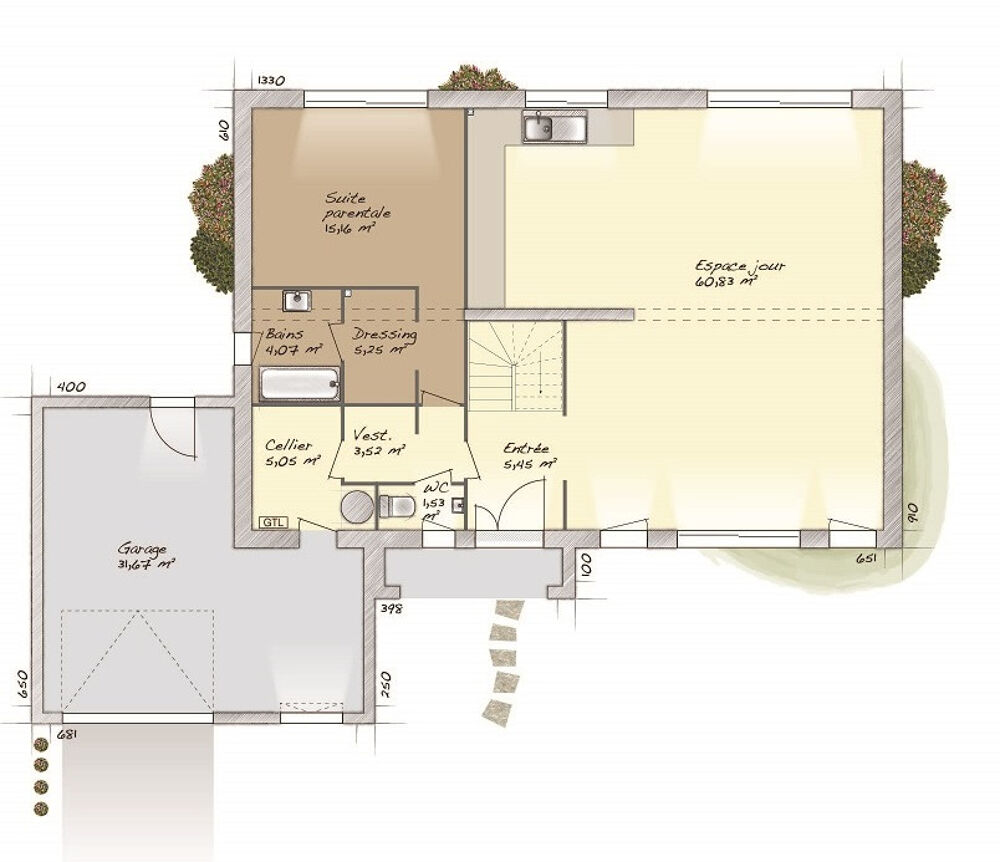
Mitry-Mory : maison T8 (200 m²) à vendre
Paris à 30 min (RER B, Mitry-Claye) - À Mitry-Mory (77290), maison neuve à vendre de 8 pièces, 2 niveaux, 200 m² sur 798 m² de terrain. Elle compte cinq chambres, une cuisine et deux salles de bains.
À proximité : RER B (Mitry-Claye), gares, écoles, bassin de natation, bibliothèque, commerce, boulangerie, épiceries, bureau de poste et boucheries-charcuteries.
Le prix de vente de cette maison de 8 pièces est de 762 812 €.
Contactez Anda NISTOR () pour plus de renseignements sur la maison, sur les démarches à suivre ou sur les modalités de vente. Concrétisez vos projets immobiliers avec Maisons Balency Dammartin-en-Goële.
Annonce proposée par un Agent Commercial Partenaire.
Nos offres de terrains sont proposées en collaboration avec nos partenaires fonciers pour des maisons dans le cadre de la loi du 10/12/1990, selon disponibilité.
Surface habitable : 200m2.
Nombre de pièces : 8.
Nombre de chambres : 5.
Prix terrain seul : 425000 euros.
Terrain proposé par un partenaire foncier selon disponibilités et autorisation de publicité au prix de 425 000 €. Hors droit d'enregistrement et frais de notaire. Terrain + Maison proposés au prix de 337 812 € (Hors branchements et raccordements, papiers peints, peintures, revêtement de sol dans les chambres. Tarif modifiable sans préavis). Etiquette énergie : A. Différents modèles disponibles pour ce terrain. Assurances et garanties du constructeur (RC professionnelle, décennale, dommage ouvrage, garantie de remboursement de l'acompte, livraison à prix et délai convenu) : HEXAOM Services est enregistré auprès de l'ORIAS en tant que Courtier en financement, Niveau 1, sous le numéro 14001345.
MAISONS BALENCY 55 rue du Général de Gaulle 77230 Dammartin-en-Goële
Référence : AN2390433_2
Bien En copropriété : non
Paris à 30 min (RER B, Mitry-Claye) - À Mitry-Mory (77290), maison neuve à vendre de 8 pièces, 2 niveaux, 200 m² sur 798 m² de terrain. Elle compte cinq chambres, une cuisine et deux salles de bains.
À proximité : RER B (Mitry-Claye), gares, écoles, bassin de natation, bibliothèque, commerce, boulangerie, épiceries, bureau de poste et boucheries-charcuteries.
Le prix de vente de cette maison de 8 pièces est de 762 812 €.
Contactez Anda NISTOR () pour plus de renseignements sur la maison, sur les démarches à suivre ou sur les modalités de vente. Concrétisez vos projets immobiliers avec Maisons Balency Dammartin-en-Goële.
Annonce proposée par un Agent Commercial Partenaire.
Nos offres de terrains sont proposées en collaboration avec nos partenaires fonciers pour des maisons dans le cadre de la loi du 10/12/1990, selon disponibilité.
Surface habitable : 200m2.
Nombre de pièces : 8.
Nombre de chambres : 5.
Prix terrain seul : 425000 euros.
Terrain proposé par un partenaire foncier selon disponibilités et autorisation de publicité au prix de 425 000 €. Hors droit d'enregistrement et frais de notaire. Terrain + Maison proposés au prix de 337 812 € (Hors branchements et raccordements, papiers peints, peintures, revêtement de sol dans les chambres. Tarif modifiable sans préavis). Etiquette énergie : A. Différents modèles disponibles pour ce terrain. Assurances et garanties du constructeur (RC professionnelle, décennale, dommage ouvrage, garantie de remboursement de l'acompte, livraison à prix et délai convenu) : HEXAOM Services est enregistré auprès de l'ORIAS en tant que Courtier en financement, Niveau 1, sous le numéro 14001345.
MAISONS BALENCY 55 rue du Général de Gaulle 77230 Dammartin-en-Goële
Référence : AN2390433_2
Bien En copropriété : non
* Prix net, hors frais notarié, d'enregistrement et de publicité foncière.
Contactez
MAISONS BALENCY
N° de téléphone
Nous contacter