Erdeven (56410)
Maison - 6 pièce(s) - 149 m²
529 000
€ *
- Référence : 1005374_1005127_3628009
- Dernière mise à jour : 15/01/2026
Pour la nouvelle notation (DPE à partir de juillet 2021), c'est la plus mauvaise des deux performances (énergie, climat) qui est retenue.
Maison de 6 pièces (149 m²) à vendre à Erdeven
EMPLACEMENT PRIVILÉGIÉ - MAISON 6 PIÈCES NEUVE
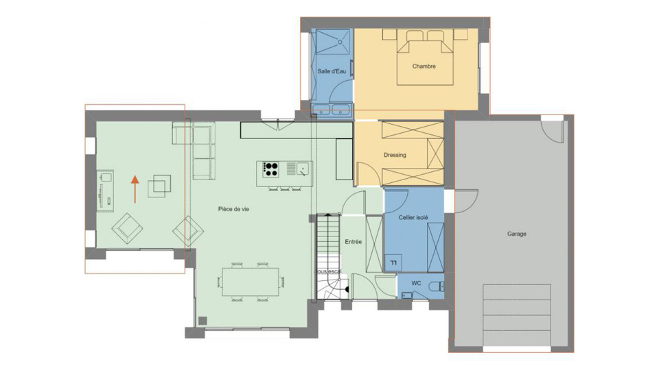
À vendre : située à 2 km de l'océan Atlantique et à 21 km de Lorient, nous vous proposons, bénéficiant d'un emplacement d'exception dans Erdeven (56410), cette maison de 6 pièces de 149 m² et de 305 m² de terrain.
C'est une maison de 2 niveaux. Son intérieur dispose de cinq chambres, d'une cuisine et de deux salles de bains. La maison est neuve.
Cette maison se trouve dans un quartier attractif. On y trouve l'École Primaire Publique le Grand Large et l'École Primaire Privée Saint Pierre Saint Paul. Niveau transports en commun, il y a cinq gares à moins de 10 minutes en voiture. Les nationales N165 et N24 sont accessibles à moins de 20 km. On trouve une bibliothèque, un commerce, une boulangerie, une épicerie et une boucherie-charcuterie dans les environs.
Elle est proposée à l'achat pour 529 000 €.
Contactez notre agence (COLLOCH Christophe : ) pour toute question sur le bien, sur les démarches à suivre ou sur les modalités de vente. Donnez vie à vos projets immobiliers avec Maisons de l'Avenir Lorient.
Nos offres de terrains sont proposées en collaboration avec nos partenaires fonciers pour des maisons dans le cadre de la loi du 10/12/1990, selon disponibilité.
Surface habitable : 149m2.
Nombre de pièces : 6.
Nombre de chambres : 5.
Prix terrain seul : 160000 euros.
Terrain proposé par un partenaire foncier selon disponibilités et autorisation de publicité au prix de 160 000 €. Hors droit d'enregistrement et frais de notaire. Terrain + Maison proposés au prix de 369 000 € (Hors branchements et raccordements, papiers peints, peintures, revêtement de sol dans les chambres. Tarif modifiable sans préavis). Etiquette énergie : A. Différents modèles disponibles pour ce terrain. Assurances et garanties du constructeur (RC professionnelle, décennale, dommage ouvrage, garantie de remboursement de l'acompte, livraison à prix et délai convenu) :
MAISONS DE L'AVENIR 158 rue du Colonel Muller 56100 Lorient
Référence : CC2393448_1
Bien En copropriété : non
EMPLACEMENT PRIVILÉGIÉ - MAISON 6 PIÈCES NEUVE
À vendre : située à 2 km de l'océan Atlantique et à 21 km de Lorient, nous vous proposons, bénéficiant d'un emplacement d'exception dans Erdeven (56410), cette maison de 6 pièces de 149 m² et de 305 m² de terrain.
C'est une maison de 2 niveaux. Son intérieur dispose de cinq chambres, d'une cuisine et de deux salles de bains. La maison est neuve.
Cette maison se trouve dans un quartier attractif. On y trouve l'École Primaire Publique le Grand Large et l'École Primaire Privée Saint Pierre Saint Paul. Niveau transports en commun, il y a cinq gares à moins de 10 minutes en voiture. Les nationales N165 et N24 sont accessibles à moins de 20 km. On trouve une bibliothèque, un commerce, une boulangerie, une épicerie et une boucherie-charcuterie dans les environs.
Elle est proposée à l'achat pour 529 000 €.
Contactez notre agence (COLLOCH Christophe : ) pour toute question sur le bien, sur les démarches à suivre ou sur les modalités de vente. Donnez vie à vos projets immobiliers avec Maisons de l'Avenir Lorient.
Nos offres de terrains sont proposées en collaboration avec nos partenaires fonciers pour des maisons dans le cadre de la loi du 10/12/1990, selon disponibilité.
Surface habitable : 149m2.
Nombre de pièces : 6.
Nombre de chambres : 5.
Prix terrain seul : 160000 euros.
Terrain proposé par un partenaire foncier selon disponibilités et autorisation de publicité au prix de 160 000 €. Hors droit d'enregistrement et frais de notaire. Terrain + Maison proposés au prix de 369 000 € (Hors branchements et raccordements, papiers peints, peintures, revêtement de sol dans les chambres. Tarif modifiable sans préavis). Etiquette énergie : A. Différents modèles disponibles pour ce terrain. Assurances et garanties du constructeur (RC professionnelle, décennale, dommage ouvrage, garantie de remboursement de l'acompte, livraison à prix et délai convenu) :
MAISONS DE L'AVENIR 158 rue du Colonel Muller 56100 Lorient
Référence : CC2393448_1
Bien En copropriété : non
* Prix net, hors frais notarié, d'enregistrement et de publicité foncière.
Contactez
MAISONS DE L'AVENIR
N° de téléphone
Nous contacter