Pont-scorff (56620)
Maison - 4 pièce(s) - 95 m²
296 900
€ *
- Référence : 1005374_1005127_3628572
- Dernière mise à jour : 15/01/2026
Pour la nouvelle notation (DPE à partir de juillet 2021), c'est la plus mauvaise des deux performances (énergie, climat) qui est retenue.
VENTE : maison de 4 pièces (95 m²) à Pont-Scorff
PROCHE DE LORIENT - MAISON 4 PIÈCES NEUVE
À vendre : située à 14 km de la côte atlantique et à quelques kilomètres de Lorient, ayez le coup de coeur pour cette maison de 4 pièces de 95 m² à Pont-Scorff (56620).
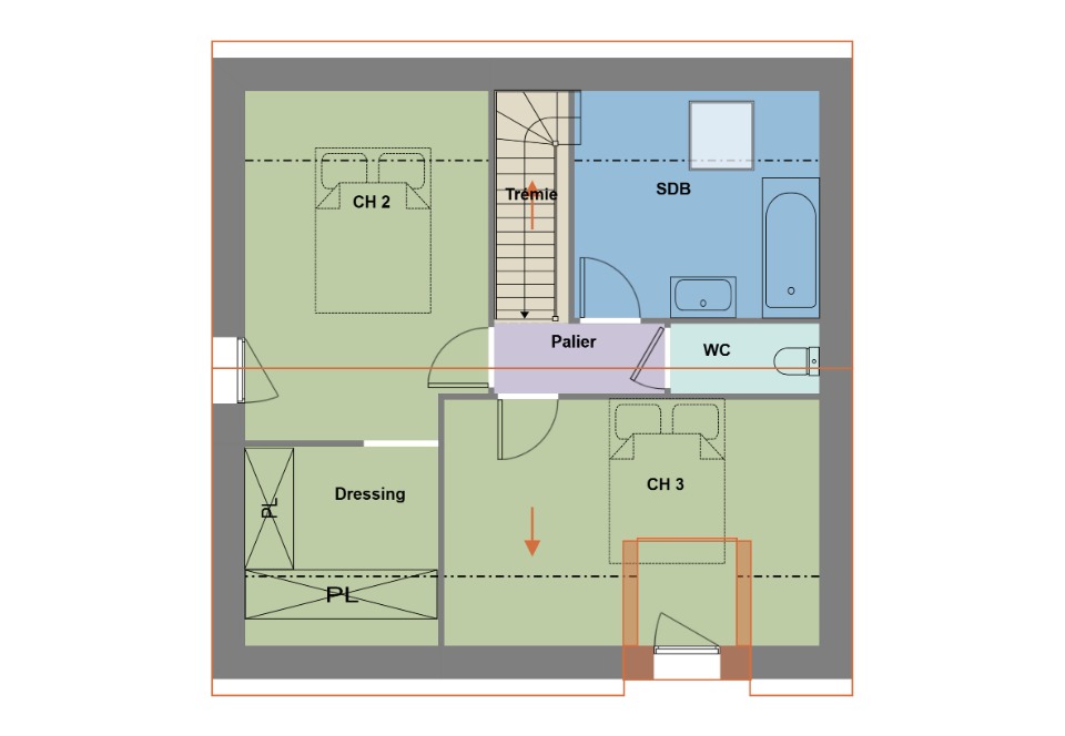
Il s'agit d'une maison de 2 niveaux. Son intérieur est composé de trois chambres, d'une cuisine et de deux salles de bains.
Son prix de vente est de 296 900 €.
N'hésitez pas à prendre contact avec Anne-Sophie LAPART (tél : ) pour obtenir de plus amples renseignements sur cette maison ou sur les démarches à suivre. Maisons de l'Avenir Lorient vous accompagne dans tous vos projets immobiliers et à toutes les étapes de l'achat.
Nos offres de terrains sont proposées en collaboration avec nos partenaires fonciers pour des maisons dans le cadre de la loi du 10/12/1990, selon disponibilité.
Surface habitable : 95m2.
Nombre de pièces : 4.
Nombre de chambres : 3.
Prix terrain seul : 72900 euros.
Terrain proposé par un partenaire foncier selon disponibilités et autorisation de publicité au prix de 72 900 €. Hors droit d'enregistrement et frais de notaire. Terrain + Maison proposés au prix de 224 000 € (Hors branchements et raccordements, papiers peints, peintures, revêtement de sol dans les chambres. Tarif modifiable sans préavis). Etiquette énergie : A. Différents modèles disponibles pour ce terrain. Assurances et garanties du constructeur (RC professionnelle, décennale, dommage ouvrage, garantie de remboursement de l'acompte, livraison à prix et délai convenu) :
MAISONS DE L'AVENIR 158 rue du Colonel Muller 56100 Lorient
Référence : ASL2393948_1
Bien En copropriété : non
PROCHE DE LORIENT - MAISON 4 PIÈCES NEUVE
À vendre : située à 14 km de la côte atlantique et à quelques kilomètres de Lorient, ayez le coup de coeur pour cette maison de 4 pièces de 95 m² à Pont-Scorff (56620).
Il s'agit d'une maison de 2 niveaux. Son intérieur est composé de trois chambres, d'une cuisine et de deux salles de bains.
Son prix de vente est de 296 900 €.
N'hésitez pas à prendre contact avec Anne-Sophie LAPART (tél : ) pour obtenir de plus amples renseignements sur cette maison ou sur les démarches à suivre. Maisons de l'Avenir Lorient vous accompagne dans tous vos projets immobiliers et à toutes les étapes de l'achat.
Nos offres de terrains sont proposées en collaboration avec nos partenaires fonciers pour des maisons dans le cadre de la loi du 10/12/1990, selon disponibilité.
Surface habitable : 95m2.
Nombre de pièces : 4.
Nombre de chambres : 3.
Prix terrain seul : 72900 euros.
Terrain proposé par un partenaire foncier selon disponibilités et autorisation de publicité au prix de 72 900 €. Hors droit d'enregistrement et frais de notaire. Terrain + Maison proposés au prix de 224 000 € (Hors branchements et raccordements, papiers peints, peintures, revêtement de sol dans les chambres. Tarif modifiable sans préavis). Etiquette énergie : A. Différents modèles disponibles pour ce terrain. Assurances et garanties du constructeur (RC professionnelle, décennale, dommage ouvrage, garantie de remboursement de l'acompte, livraison à prix et délai convenu) :
MAISONS DE L'AVENIR 158 rue du Colonel Muller 56100 Lorient
Référence : ASL2393948_1
Bien En copropriété : non
* Prix net, hors frais notarié, d'enregistrement et de publicité foncière.
Contactez
MAISONS DE L'AVENIR
N° de téléphone
Nous contacter