Plouay (56240)
Maison - 4 pièce(s) - 95 m²
290 290
€ *
- Référence : 1005374_1005127_3628921
- Dernière mise à jour : 15/01/2026
Pour la nouvelle notation (DPE à partir de juillet 2021), c'est la plus mauvaise des deux performances (énergie, climat) qui est retenue.
Maison de 4 pièces (95 m²) en vente à Plouay
MAISON 4 PIÈCES NEUVE - PROCHE DE LORIENT
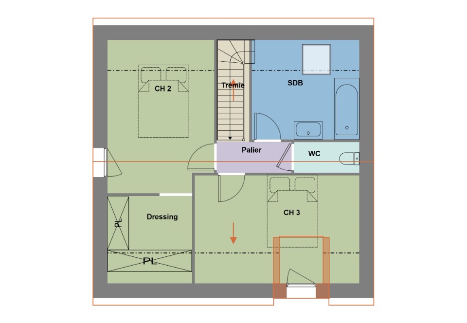
En vente : à 26 km de l'océan Atlantique et à deux pas de Lorient, à Plouay (56240), notre agence Maisons de l'Avenir Lorient est ravie de vous proposer cette maison de 4 pièces de 95 m² et de 595 m² de terrain. Son intérieur se divise en trois chambres, une cuisine et deux salles de bains.
Il s'agit d'une maison de 2 niveaux.
Elle est proposée à l'achat pour 290 290 €.
Prenez contact avec notre agence (Anne-Sophie LAPART : ) pour plus de renseignements sur cette maison, sur les démarches à suivre ou sur les modalités de vente. Maisons de l'Avenir Lorient vous accompagne dans tous vos projets immobiliers et à toutes les étapes de votre projet.
Nos offres de terrains sont proposées en collaboration avec nos partenaires fonciers pour des maisons dans le cadre de la loi du 10/12/1990, selon disponibilité.
Surface habitable : 95m2.
Nombre de pièces : 4.
Nombre de chambres : 3.
Prix terrain seul : 66900 euros.
Terrain proposé par un partenaire foncier selon disponibilités et autorisation de publicité au prix de 66 900 €. Hors droit d'enregistrement et frais de notaire. Terrain + Maison proposés au prix de 223 390 € (Hors branchements et raccordements, papiers peints, peintures, revêtement de sol dans les chambres. Tarif modifiable sans préavis). Etiquette énergie : A. Différents modèles disponibles pour ce terrain. Assurances et garanties du constructeur (RC professionnelle, décennale, dommage ouvrage, garantie de remboursement de l'acompte, livraison à prix et délai convenu) :
MAISONS DE L'AVENIR 158 rue du Colonel Muller 56100 Lorient
Référence : ASL2394250_1
Bien En copropriété : non
MAISON 4 PIÈCES NEUVE - PROCHE DE LORIENT
En vente : à 26 km de l'océan Atlantique et à deux pas de Lorient, à Plouay (56240), notre agence Maisons de l'Avenir Lorient est ravie de vous proposer cette maison de 4 pièces de 95 m² et de 595 m² de terrain. Son intérieur se divise en trois chambres, une cuisine et deux salles de bains.
Il s'agit d'une maison de 2 niveaux.
Elle est proposée à l'achat pour 290 290 €.
Prenez contact avec notre agence (Anne-Sophie LAPART : ) pour plus de renseignements sur cette maison, sur les démarches à suivre ou sur les modalités de vente. Maisons de l'Avenir Lorient vous accompagne dans tous vos projets immobiliers et à toutes les étapes de votre projet.
Nos offres de terrains sont proposées en collaboration avec nos partenaires fonciers pour des maisons dans le cadre de la loi du 10/12/1990, selon disponibilité.
Surface habitable : 95m2.
Nombre de pièces : 4.
Nombre de chambres : 3.
Prix terrain seul : 66900 euros.
Terrain proposé par un partenaire foncier selon disponibilités et autorisation de publicité au prix de 66 900 €. Hors droit d'enregistrement et frais de notaire. Terrain + Maison proposés au prix de 223 390 € (Hors branchements et raccordements, papiers peints, peintures, revêtement de sol dans les chambres. Tarif modifiable sans préavis). Etiquette énergie : A. Différents modèles disponibles pour ce terrain. Assurances et garanties du constructeur (RC professionnelle, décennale, dommage ouvrage, garantie de remboursement de l'acompte, livraison à prix et délai convenu) :
MAISONS DE L'AVENIR 158 rue du Colonel Muller 56100 Lorient
Référence : ASL2394250_1
Bien En copropriété : non
* Prix net, hors frais notarié, d'enregistrement et de publicité foncière.
Contactez
MAISONS DE L'AVENIR
N° de téléphone
Nous contacter