La croix-saint-leufroy (27490)
Maison - 6 pièce(s) - 117 m²
299 000
€ *
- Référence : 1041872_1005120_3628253
- Dernière mise à jour : 15/01/2026
Pour la nouvelle notation (DPE à partir de juillet 2021), c'est la plus mauvaise des deux performances (énergie, climat) qui est retenue.
VENTE d'une maison de 6 pièces (117 m²) à Clef Vallée d'Eure
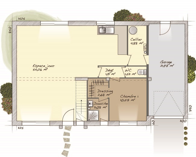
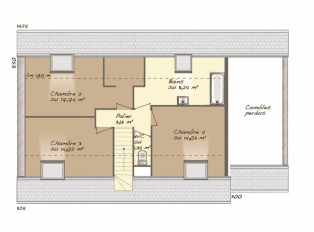
Idéalement située - À découvrir à Clef Vallée d'Eure (27490) : maison neuve 6 pièces à vendre. Surface de 117 m² sur 1 400 m² de terrain. Conçue de plain-pied, elle propose quatre chambres, une cuisine et deux salles de bains.
À dix minutes : École Primaire la Croix Saint Leufroy, tennis, commerce, boulangerie, boucherie-charcuterie et bureau de poste. Autoroutes A13 et A154 et nationale N154 accessibles à 10 km. Évreux à 14 km.
Le prix de vente de cette maison de 6 pièces est de 299 000 €.
Contactez Sébastien HOTTE (tél : ) pour tout renseignement sur la maison. Faites de vos projets immobiliers une réalité avec Maisons Balency Louviers.
Annonce proposée par un Agent Commercial Partenaire.
Nos offres de terrains sont proposées en collaboration avec nos partenaires fonciers pour des maisons dans le cadre de la loi du 10/12/1990, selon disponibilité.
Surface habitable : 117m2.
Nombre de pièces : 6.
Nombre de chambres : 4.
Prix terrain seul : 84000 euros.
Terrain proposé par un partenaire foncier selon disponibilités et autorisation de publicité au prix de 84 000 €. Hors droit d'enregistrement et frais de notaire. Terrain + Maison proposés au prix de 215 000 € (Hors branchements et raccordements, papiers peints, peintures, revêtement de sol dans les chambres. Tarif modifiable sans préavis). Etiquette énergie : A. Différents modèles disponibles pour ce terrain. Assurances et garanties du constructeur (RC professionnelle, décennale, dommage ouvrage, garantie de remboursement de l'acompte, livraison à prix et délai convenu) : HEXAOM Services est enregistré auprès de l'ORIAS en tant que Courtier en financement, Niveau 1, sous le numéro 14001345.
MAISONS BALENCY 7 boulevard Georges Clémenceau 27400 Louviers
Référence : SH2393713_1
Bien En copropriété : non
Idéalement située - À découvrir à Clef Vallée d'Eure (27490) : maison neuve 6 pièces à vendre. Surface de 117 m² sur 1 400 m² de terrain. Conçue de plain-pied, elle propose quatre chambres, une cuisine et deux salles de bains.
À dix minutes : École Primaire la Croix Saint Leufroy, tennis, commerce, boulangerie, boucherie-charcuterie et bureau de poste. Autoroutes A13 et A154 et nationale N154 accessibles à 10 km. Évreux à 14 km.
Le prix de vente de cette maison de 6 pièces est de 299 000 €.
Contactez Sébastien HOTTE (tél : ) pour tout renseignement sur la maison. Faites de vos projets immobiliers une réalité avec Maisons Balency Louviers.
Annonce proposée par un Agent Commercial Partenaire.
Nos offres de terrains sont proposées en collaboration avec nos partenaires fonciers pour des maisons dans le cadre de la loi du 10/12/1990, selon disponibilité.
Surface habitable : 117m2.
Nombre de pièces : 6.
Nombre de chambres : 4.
Prix terrain seul : 84000 euros.
Terrain proposé par un partenaire foncier selon disponibilités et autorisation de publicité au prix de 84 000 €. Hors droit d'enregistrement et frais de notaire. Terrain + Maison proposés au prix de 215 000 € (Hors branchements et raccordements, papiers peints, peintures, revêtement de sol dans les chambres. Tarif modifiable sans préavis). Etiquette énergie : A. Différents modèles disponibles pour ce terrain. Assurances et garanties du constructeur (RC professionnelle, décennale, dommage ouvrage, garantie de remboursement de l'acompte, livraison à prix et délai convenu) : HEXAOM Services est enregistré auprès de l'ORIAS en tant que Courtier en financement, Niveau 1, sous le numéro 14001345.
MAISONS BALENCY 7 boulevard Georges Clémenceau 27400 Louviers
Référence : SH2393713_1
Bien En copropriété : non
* Prix net, hors frais notarié, d'enregistrement et de publicité foncière.
Contactez
MAISONS BALENCY
N° de téléphone
Nous contacter