Vernon (27200)
Maison - 6 pièce(s) - 100 m²
335 000
€ *
- Référence : 1041872_1005120_3628401
- Dernière mise à jour : 15/01/2026
Pour la nouvelle notation (DPE à partir de juillet 2021), c'est la plus mauvaise des deux performances (énergie, climat) qui est retenue.
Vernon : maison T6 (100 m²) à vendre
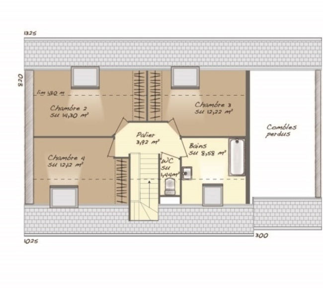
Paris à 1 h (Transilien J, Vernon-Giverny) - Idéalement située dans Vernon (27200), maison neuve en vente de 6 pièces, 2 niveaux, 100 m² de surface et 1 000 m² de terrain. Son intérieur compte quatre chambres, une cuisine et deux salles de bains.
À dix minutes : gares (Vernon-Giverny et Bonnières-sur-Seine), établissements scolaires, crèche, bibliothèque, boulangeries, commerces, épiceries et supérette. Autoroute A13 et nationale N13 à 7 km.
Le prix de vente de cette maison de 6 pièces est de 335 000 €.
Contactez notre agence (Sébastien HOTTE : ) pour toute question sur la maison, sur les démarches à suivre ou sur les modalités de vente. Maisons Balency Louviers est là pour vous accompagner dans tous vos projets immobiliers.
Annonce proposée par un Agent Commercial Partenaire.
Nos offres de terrains sont proposées en collaboration avec nos partenaires fonciers pour des maisons dans le cadre de la loi du 10/12/1990, selon disponibilité.
Surface habitable : 100m2.
Nombre de pièces : 6.
Nombre de chambres : 4.
Prix terrain seul : 135000 euros.
Terrain proposé par un partenaire foncier selon disponibilités et autorisation de publicité au prix de 135 000 €. Hors droit d'enregistrement et frais de notaire. Terrain + Maison proposés au prix de 200 000 € (Hors branchements et raccordements, papiers peints, peintures, revêtement de sol dans les chambres. Tarif modifiable sans préavis). Etiquette énergie : A. Différents modèles disponibles pour ce terrain. Assurances et garanties du constructeur (RC professionnelle, décennale, dommage ouvrage, garantie de remboursement de l'acompte, livraison à prix et délai convenu) : HEXAOM Services est enregistré auprès de l'ORIAS en tant que Courtier en financement, Niveau 1, sous le numéro 14001345.
MAISONS BALENCY 7 boulevard Georges Clémenceau 27400 Louviers
Référence : SH2393768_1
Bien En copropriété : non
Paris à 1 h (Transilien J, Vernon-Giverny) - Idéalement située dans Vernon (27200), maison neuve en vente de 6 pièces, 2 niveaux, 100 m² de surface et 1 000 m² de terrain. Son intérieur compte quatre chambres, une cuisine et deux salles de bains.
À dix minutes : gares (Vernon-Giverny et Bonnières-sur-Seine), établissements scolaires, crèche, bibliothèque, boulangeries, commerces, épiceries et supérette. Autoroute A13 et nationale N13 à 7 km.
Le prix de vente de cette maison de 6 pièces est de 335 000 €.
Contactez notre agence (Sébastien HOTTE : ) pour toute question sur la maison, sur les démarches à suivre ou sur les modalités de vente. Maisons Balency Louviers est là pour vous accompagner dans tous vos projets immobiliers.
Annonce proposée par un Agent Commercial Partenaire.
Nos offres de terrains sont proposées en collaboration avec nos partenaires fonciers pour des maisons dans le cadre de la loi du 10/12/1990, selon disponibilité.
Surface habitable : 100m2.
Nombre de pièces : 6.
Nombre de chambres : 4.
Prix terrain seul : 135000 euros.
Terrain proposé par un partenaire foncier selon disponibilités et autorisation de publicité au prix de 135 000 €. Hors droit d'enregistrement et frais de notaire. Terrain + Maison proposés au prix de 200 000 € (Hors branchements et raccordements, papiers peints, peintures, revêtement de sol dans les chambres. Tarif modifiable sans préavis). Etiquette énergie : A. Différents modèles disponibles pour ce terrain. Assurances et garanties du constructeur (RC professionnelle, décennale, dommage ouvrage, garantie de remboursement de l'acompte, livraison à prix et délai convenu) : HEXAOM Services est enregistré auprès de l'ORIAS en tant que Courtier en financement, Niveau 1, sous le numéro 14001345.
MAISONS BALENCY 7 boulevard Georges Clémenceau 27400 Louviers
Référence : SH2393768_1
Bien En copropriété : non
* Prix net, hors frais notarié, d'enregistrement et de publicité foncière.
Contactez
MAISONS BALENCY
N° de téléphone
Nous contacter