Cadalen (81600)
Maison - 4 pièce(s) - 73 m²
189 000
€ *
- Référence : 1005191_1005119_3632352
- Dernière mise à jour : 19/01/2026
Pour la nouvelle notation (DPE à partir de juillet 2021), c'est la plus mauvaise des deux performances (énergie, climat) qui est retenue.
VENTE d'une maison F4 (73 m²) à Cadalen
PROCHE D'ALBI - MAISON 4 PIÈCES NEUVE
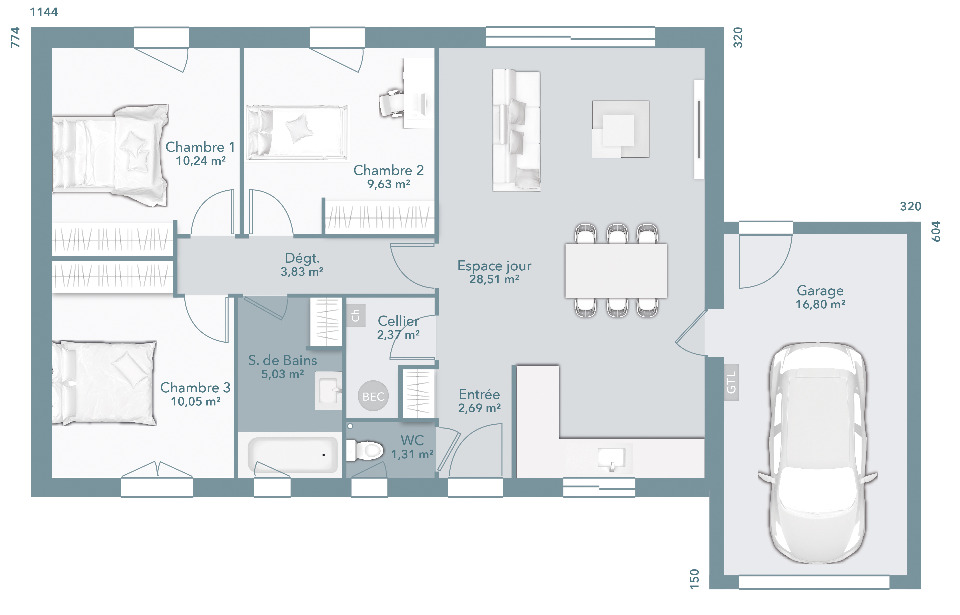
À quelques kilomètres d'Albi, en vente à Cadalen (81600), venez découvrir cette maison de 4 pièces de plain-pied de 73 m². Son intérieur est composé de trois chambres, d'une cuisine et d'une salle de bains.
Le terrain de la propriété est de 620 m².
Cette maison est neuve.
Son prix de vente est de 189 000 €.
Contactez votre conseiller commercial pour plus d'informations sur la maison, sur les démarches à suivre ou sur les modalités de vente. Donnez vie à vos projets immobiliers avec Maisons France Confort Albi.
Annonce proposée par un Agent Commercial Partenaire.
Nos offres de terrains sont proposées en collaboration avec nos partenaires fonciers pour des maisons dans le cadre de la loi du 10/12/1990, selon disponibilité.
Surface habitable : 73m2.
Nombre de pièces : 4.
Nombre de chambres : 3.
Prix terrain seul : 60000 euros.
Terrain proposé par un partenaire foncier selon disponibilités et autorisation de publicité au prix de 60 000 €. Hors droit d'enregistrement et frais de notaire. Terrain + Maison proposés au prix de 129 000 € (Hors branchements et raccordements, papiers peints, peintures, revêtement de sol dans les chambres. Tarif modifiable sans préavis). Etiquette énergie : A. Différents modèles disponibles pour ce terrain. Assurances et garanties du constructeur (RC professionnelle, décennale, dommage ouvrage, garantie de remboursement de l'acompte, livraison à prix et délai convenu) : HEXAOM Services est enregistré auprès de l'ORIAS en tant que Courtier en financement, Niveau 1, sous le numéro 14001345.
MAISONS FRANCE CONFORT 187 avenue Colonel Teyssier 81000 Albi
Référence : MB2394735_3
Bien En copropriété : non
PROCHE D'ALBI - MAISON 4 PIÈCES NEUVE
À quelques kilomètres d'Albi, en vente à Cadalen (81600), venez découvrir cette maison de 4 pièces de plain-pied de 73 m². Son intérieur est composé de trois chambres, d'une cuisine et d'une salle de bains.
Le terrain de la propriété est de 620 m².
Cette maison est neuve.
Son prix de vente est de 189 000 €.
Contactez votre conseiller commercial pour plus d'informations sur la maison, sur les démarches à suivre ou sur les modalités de vente. Donnez vie à vos projets immobiliers avec Maisons France Confort Albi.
Annonce proposée par un Agent Commercial Partenaire.
Nos offres de terrains sont proposées en collaboration avec nos partenaires fonciers pour des maisons dans le cadre de la loi du 10/12/1990, selon disponibilité.
Surface habitable : 73m2.
Nombre de pièces : 4.
Nombre de chambres : 3.
Prix terrain seul : 60000 euros.
Terrain proposé par un partenaire foncier selon disponibilités et autorisation de publicité au prix de 60 000 €. Hors droit d'enregistrement et frais de notaire. Terrain + Maison proposés au prix de 129 000 € (Hors branchements et raccordements, papiers peints, peintures, revêtement de sol dans les chambres. Tarif modifiable sans préavis). Etiquette énergie : A. Différents modèles disponibles pour ce terrain. Assurances et garanties du constructeur (RC professionnelle, décennale, dommage ouvrage, garantie de remboursement de l'acompte, livraison à prix et délai convenu) : HEXAOM Services est enregistré auprès de l'ORIAS en tant que Courtier en financement, Niveau 1, sous le numéro 14001345.
MAISONS FRANCE CONFORT 187 avenue Colonel Teyssier 81000 Albi
Référence : MB2394735_3
Bien En copropriété : non
* Prix net, hors frais notarié, d'enregistrement et de publicité foncière.
Contactez
MAISONS FRANCE CONFORT
N° de téléphone
Nous contacter