Fesques (76270)
Maison - 3 pièce(s) - 65 m²
157 500
€ *
- Référence : 1005516_1005154_3631648
- Dernière mise à jour : 19/01/2026
Pour la nouvelle notation (DPE à partir de juillet 2021), c'est la plus mauvaise des deux performances (énergie, climat) qui est retenue.
Fesques : maison de 3 pièces (65 m²) à vendre
IDÉALEMENT SITUÉE - MAISON 3 PIÈCES NEUVE
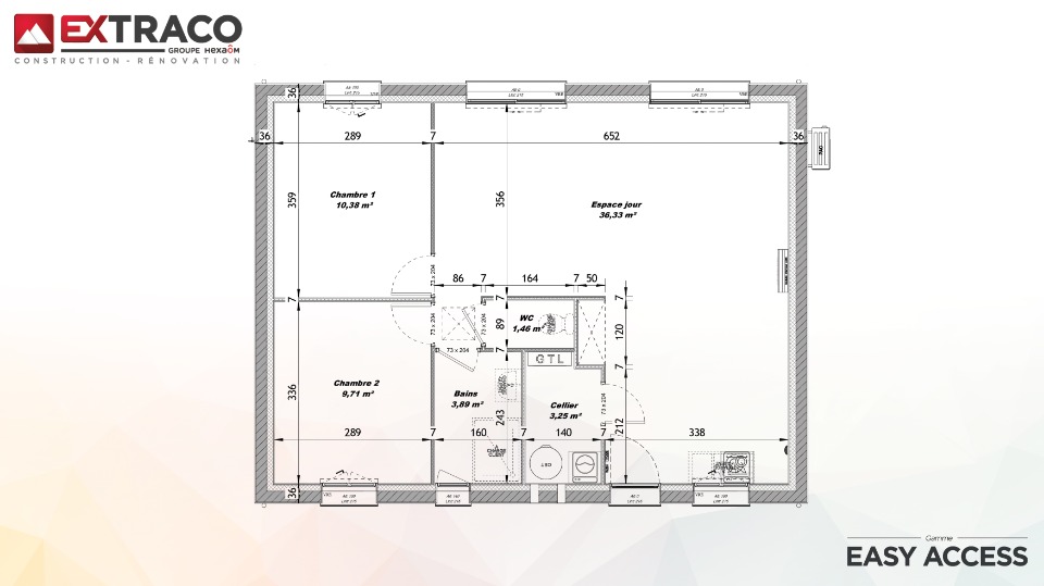
En vente à 33 km de la Manche, notre agence Les Maisons Extraco Dieppe est heureuse de vous présenter cette maison de 3 pièces de plain-pied de 65 m² idéalement située dans Fesques (76270).
Conçue de plain-pied, elle dispose de deux chambres, d'une cuisine et d'une salle de bains. La maison est neuve.
Le terrain du bien s'étend sur 1 238 m².
Cette propriété est située dans un quartier attractif. Une école maternelle y est implantée. Les autoroutes A28 et A29 sont accessibles à moins de 4 km.
Elle est proposée à l'achat pour 157 500 €.
Contactez notre agence (Slimane ELHLOU : ) pour obtenir de plus amples informations sur la maison.
Nos offres de terrains sont proposées en collaboration avec nos partenaires fonciers pour des maisons dans le cadre de la loi du 10/12/1990, selon disponibilité.
Surface habitable : 65m2.
Nombre de pièces : 3.
Nombre de chambres : 2.
Prix terrain seul : 45000 euros.
Terrain proposé par un partenaire foncier selon disponibilités et autorisation de publicité au prix de 45 000 €. Hors droit d'enregistrement et frais de notaire. Terrain + Maison proposés au prix de 112 500 € (Hors branchements et raccordements, papiers peints, peintures, revêtement de sol dans les chambres. Tarif modifiable sans préavis). Etiquette énergie : A. Différents modèles disponibles pour ce terrain. Assurances et garanties du constructeur (RC professionnelle, décennale, dommage ouvrage, garantie de remboursement de l'acompte, livraison à prix et délai convenu) :
EXTRACO - Construction Rénovation 78 rue de la Barre 76200 Dieppe
Référence : SE2396732_3
Bien En copropriété : non
IDÉALEMENT SITUÉE - MAISON 3 PIÈCES NEUVE
En vente à 33 km de la Manche, notre agence Les Maisons Extraco Dieppe est heureuse de vous présenter cette maison de 3 pièces de plain-pied de 65 m² idéalement située dans Fesques (76270).
Conçue de plain-pied, elle dispose de deux chambres, d'une cuisine et d'une salle de bains. La maison est neuve.
Le terrain du bien s'étend sur 1 238 m².
Cette propriété est située dans un quartier attractif. Une école maternelle y est implantée. Les autoroutes A28 et A29 sont accessibles à moins de 4 km.
Elle est proposée à l'achat pour 157 500 €.
Contactez notre agence (Slimane ELHLOU : ) pour obtenir de plus amples informations sur la maison.
Nos offres de terrains sont proposées en collaboration avec nos partenaires fonciers pour des maisons dans le cadre de la loi du 10/12/1990, selon disponibilité.
Surface habitable : 65m2.
Nombre de pièces : 3.
Nombre de chambres : 2.
Prix terrain seul : 45000 euros.
Terrain proposé par un partenaire foncier selon disponibilités et autorisation de publicité au prix de 45 000 €. Hors droit d'enregistrement et frais de notaire. Terrain + Maison proposés au prix de 112 500 € (Hors branchements et raccordements, papiers peints, peintures, revêtement de sol dans les chambres. Tarif modifiable sans préavis). Etiquette énergie : A. Différents modèles disponibles pour ce terrain. Assurances et garanties du constructeur (RC professionnelle, décennale, dommage ouvrage, garantie de remboursement de l'acompte, livraison à prix et délai convenu) :
EXTRACO - Construction Rénovation 78 rue de la Barre 76200 Dieppe
Référence : SE2396732_3
Bien En copropriété : non
* Prix net, hors frais notarié, d'enregistrement et de publicité foncière.
Contactez
EXTRACO - CONSTRUCTION | RéNOVATION
N° de téléphone
Nous contacter