Saint-laurent-des-autels (49270)
Maison - 4 pièce(s) - 70 m²
250 000
€ *
- Référence : 1005376_1005127_3633258
- Dernière mise à jour : 20/01/2026
Pour la nouvelle notation (DPE à partir de juillet 2021), c'est la plus mauvaise des deux performances (énergie, climat) qui est retenue.
VENTE : maison de 4 pièces (70 m²) à Saint-Laurent-des-Autels
PROCHE DE NANTES - MAISON 4 PIÈCES NEUVE
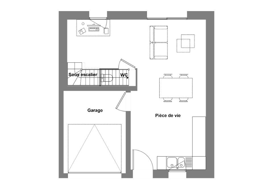
À vendre : située à deux pas de Nantes, à Saint-Laurent-des-Autels (49270), Maisons de l'Avenir Orvault vous propose cette maison de 4 pièces de 70 m².
Cette maison compte 2 niveaux. Son intérieur se divise en trois chambres, une cuisine et une salle de bains.
Son prix de vente est de 250 000 €.
Contactez notre agence (Thibault DUPONT : ) pour toute information sur la maison.
Nos offres de terrains sont proposées en collaboration avec nos partenaires fonciers pour des maisons dans le cadre de la loi du 10/12/1990, selon disponibilité.
Surface habitable : 70m2.
Nombre de pièces : 4.
Nombre de chambres : 3.
Prix terrain seul : 78000 euros.
Terrain proposé par un partenaire foncier selon disponibilités et autorisation de publicité au prix de 78 000 €. Hors droit d'enregistrement et frais de notaire. Terrain + Maison proposés au prix de 172 000 € (Hors branchements et raccordements, papiers peints, peintures, revêtement de sol dans les chambres. Tarif modifiable sans préavis). Etiquette énergie : A. Différents modèles disponibles pour ce terrain. Assurances et garanties du constructeur (RC professionnelle, décennale, dommage ouvrage, garantie de remboursement de l'acompte, livraison à prix et délai convenu) :
MAISONS DE L'AVENIR 17, rue Jules Verne 44700 Orvault
Référence : TD2398432_1
Bien En copropriété : non
PROCHE DE NANTES - MAISON 4 PIÈCES NEUVE
À vendre : située à deux pas de Nantes, à Saint-Laurent-des-Autels (49270), Maisons de l'Avenir Orvault vous propose cette maison de 4 pièces de 70 m².
Cette maison compte 2 niveaux. Son intérieur se divise en trois chambres, une cuisine et une salle de bains.
Son prix de vente est de 250 000 €.
Contactez notre agence (Thibault DUPONT : ) pour toute information sur la maison.
Nos offres de terrains sont proposées en collaboration avec nos partenaires fonciers pour des maisons dans le cadre de la loi du 10/12/1990, selon disponibilité.
Surface habitable : 70m2.
Nombre de pièces : 4.
Nombre de chambres : 3.
Prix terrain seul : 78000 euros.
Terrain proposé par un partenaire foncier selon disponibilités et autorisation de publicité au prix de 78 000 €. Hors droit d'enregistrement et frais de notaire. Terrain + Maison proposés au prix de 172 000 € (Hors branchements et raccordements, papiers peints, peintures, revêtement de sol dans les chambres. Tarif modifiable sans préavis). Etiquette énergie : A. Différents modèles disponibles pour ce terrain. Assurances et garanties du constructeur (RC professionnelle, décennale, dommage ouvrage, garantie de remboursement de l'acompte, livraison à prix et délai convenu) :
MAISONS DE L'AVENIR 17, rue Jules Verne 44700 Orvault
Référence : TD2398432_1
Bien En copropriété : non
* Prix net, hors frais notarié, d'enregistrement et de publicité foncière.
Contactez
MAISONS DE L'AVENIR
N° de téléphone
Nous contacter