Vente Maison 5 pièces 90 m²

Maison - 5 pièce(s) - 90 m²

237 900 € *
  •   Référence : 1029023_1005120_3646614
  •   Dernière mise à jour : 30/03/2026

A
Classe Énergie
50 kWh/m² an
info
NC
Indice d'émissions de gaz à effet de serre
Non communiqué
info
Pour la nouvelle notation (DPE à partir de juillet 2021), c'est la plus mauvaise des deux performances (énergie, climat) qui est retenue.

Soumont-Saint-Quentin (14420)

VENTE d'une maison F5 (90 m²) à Soumont-Saint-Quentin

Vous rêvez d'une maison neuve, moderne et à votre image ? Cette maison en construction avec sa garantie décennale, vous offre l'opportunité de la personnaliser selon vos envies ! Construction aux normes RT2020 pour une performance énergétique optimale, faites des économies et réduisez ainsi vos factures d'énergie !

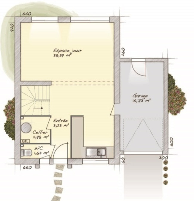
10 kilomètres de Falaise - À découvrir à Soumont-Saint-Quentin (14420) : maison neuve 5 pièces à construire, 2 niveaux, 90 m² de surface et 450 m² de terrain. Son intérieur se divise en trois chambres, une cuisine et une salle de bains.

Ecoles, commerces à proximité.
Commune desservie par les transports scolaires.

Cette maison de 5 pièces est proposée à l'achat pour 237 900 €.
Contactez notre agence (Sophie UCENDO : ) pour tout renseignement sur la maison. Maisons Balency Caen vous accompagne dans toutes vos démarches et dans tous vos projets immobiliers.

Nos offres de terrains sont proposées en collaboration avec nos partenaires fonciers pour des maisons dans le cadre de la loi du 10/12/1990, selon disponibilité.
Surface habitable : 90m2.
Nombre de pièces : 5.
Nombre de chambres : 3.
Prix terrain seul : 49900 euros.

Terrain proposé par un partenaire foncier selon disponibilités et autorisation de publicité au prix de 49 900 €. Hors droit d'enregistrement et frais de notaire. Terrain + Maison proposés au prix de 237 900 € (Hors branchements et raccordements, papiers peints, peintures, revêtement de sol dans les chambres. Tarif modifiable sans préavis). Etiquette énergie : A. Différents modèles disponibles pour ce terrain. Assurances et garanties du constructeur (RC professionnelle, décennale, dommage ouvrage, garantie de remboursement de l'acompte, livraison à prix et délai convenu) : HEXAOM Services est enregistré auprès de l'ORIAS en tant que Courtier en financement, Niveau 1, sous le numéro 14001345.

MAISONS BALENCY 133, rue Saint Jean 14000 Caen
Référence : SU2410022_2



Bien En copropriété : non

* Prix net, hors frais notarié, d'enregistrement et de publicité foncière.

Contactez
MAISONS BALENCY

Adresse postale

133, rue Saint Jean
14000 Caen
Itinéraire

Site internet

maisons-balency.fr

N° de téléphone

Siret : 09572031400285

Nous contacter

Contactez-nous pour l'annonce "Soumont-Saint-Quentin (14420)", Réf. : 1029023_1005120_3646614

* Tous les champs sont obligatoires ** En cas de transmission de coordonnées téléphoniques vous reconnaissez accepter expressément d'être rappelé par l'annonceur