Vente Maison 7 pièces 140 m²

Maison - 7 pièce(s) - 140 m²

695 000 € *
  •   Référence : 1005298_1005120_3668266
  •   Dernière mise à jour : 19/04/2026

A
Classe Énergie
50 kWh/m² an
info
NC
Indice d'émissions de gaz à effet de serre
Non communiqué
info
Pour la nouvelle notation (DPE à partir de juillet 2021), c'est la plus mauvaise des deux performances (énergie, climat) qui est retenue.

Cournonsec (34660)

VENTE : maison de 7 pièces (140 m²) à Cournonsec
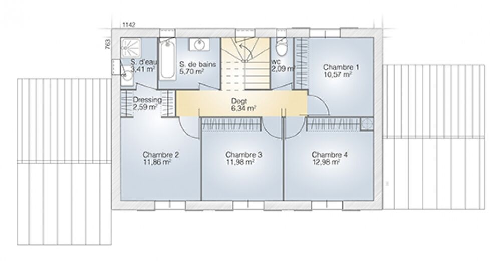
Emplacement privilégié -  À vendre à Cournonsec (34660) : maison neuve 7 pièces de 140 m² et de 900 m² de terrain. Son intérieur se divise en cinq chambres, une cuisine et trois salles de bains.
À dix minutes : gare (Vic-Mireval), écoles, crèches, bibliothèque, tennis, commerce, boulangerie et épicerie. Accès autoroutes A9 et A750 à 10 km. Mer Méditerranée à 15 km. Montpellier à 16 km.
Le prix de vente de cette maison de 7 pièces est de 695 000 €.
Contactez Cédric () pour plus d'informations sur la maison, sur les modalités de vente ou sur les démarches à suivre. Maisons Balency Castries vous accompagne dans tous vos projets immobiliers et à toutes les étapes de l'achat.

Nos offres de terrains sont proposées en collaboration avec nos partenaires fonciers pour des maisons dans le cadre de la loi du 10/12/1990, selon disponibilité.
Surface habitable : 140m2.
Nombre de pièces : 7.
Nombre de chambres : 5.
Prix terrain seul : 299000 euros.

Terrain proposé par un partenaire foncier selon disponibilités et autorisation de publicité au prix de 299 000 €. Hors droit d'enregistrement et frais de notaire. Terrain + Maison proposés au prix de 695 000 € (Hors branchements et raccordements, papiers peints, peintures, revêtement de sol dans les chambres. Tarif modifiable sans préavis). Etiquette énergie : A. Différents modèles disponibles pour ce terrain. Assurances et garanties du constructeur (RC professionnelle, décennale, dommage ouvrage, garantie de remboursement de l'acompte, livraison à prix et délai convenu) : HEXAOM Services est enregistré auprès de l'ORIAS en tant que Courtier en financement, Niveau 1, sous le numéro 14001345.

MAISONS BALENCY 138, avenue de la Royale 34160 Castries
Référence : CJ2431314_3



Bien En copropriété : non

* Prix net, hors frais notarié, d'enregistrement et de publicité foncière.

Contactez
MAISONS BALENCY

Adresse postale

138, avenue de la Royale
34160 Castries
Itinéraire

Site internet

maisons-balency.fr

N° de téléphone

Siret : 09572031400210

Nous contacter

Contactez-nous pour l'annonce "Cournonsec (34660)", Réf. : 1005298_1005120_3668266

* Tous les champs sont obligatoires ** En cas de transmission de coordonnées téléphoniques vous reconnaissez accepter expressément d'être rappelé par l'annonceur