Vente Maison 7 pièces 125 m²

Maison - 7 pièce(s) - 125 m²

383 655 € *
  •   Référence : 1046281_1005120_3681213
  •   Dernière mise à jour : 28/02/2026

A
Classe Énergie
50 kWh/m² an
info
NC
Indice d'émissions de gaz à effet de serre
Non communiqué
info
Pour la nouvelle notation (DPE à partir de juillet 2021), c'est la plus mauvaise des deux performances (énergie, climat) qui est retenue.

Dammartin-en-Goële (77230)

Maison de 7 pièces (125 m²) en vente à Dammartin-en-Goële
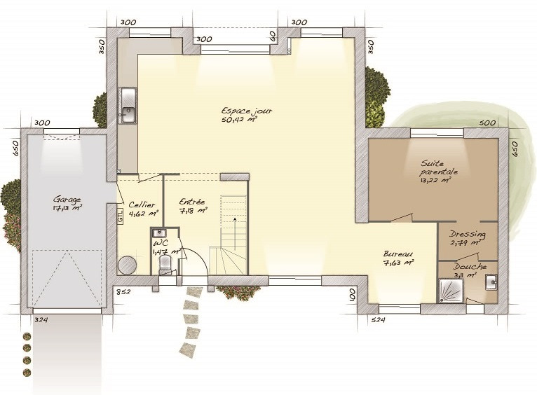
Paris à 30 min (Transilien K, Dammartin-Juilly-Saint-Mard) -  À découvrir à Dammartin-en-Goële (77230) : maison neuve 7 pièces en vente. 2 niveaux, surface de 125 m² sur 407 m² de terrain. Elle inclut cinq chambres, une cuisine et trois salles de bains.
À dix minutes : RER B (Mitry-Claye), gares, établissements scolaires, crèche, bibliothèque, tennis, commerces, boucherie-charcuterie, supérette, épiceries et bureau de poste. Saint-Denis à 26 km.
Cette maison de 7 pièces est à vendre pour la somme de 381 655 €.
Contactez Joseph BANO () pour tout renseignement sur la maison. Concrétisez vos projets immobiliers avec Maisons Balency Dammartin-en-Goële.

Annonce proposée par un Agent Commercial Partenaire.

Nos offres de terrains sont proposées en collaboration avec nos partenaires fonciers pour des maisons dans le cadre de la loi du 10/12/1990, selon disponibilité.
Surface habitable : 125m2.
Nombre de pièces : 7.
Nombre de chambres : 5.
Prix terrain seul : 150000 euros.

Terrain proposé par un partenaire foncier selon disponibilités et autorisation de publicité au prix de 150 000 €. Hors droit d'enregistrement et frais de notaire. Terrain + Maison proposés au prix de 383 655 € (Hors branchements et raccordements, papiers peints, peintures, revêtement de sol dans les chambres. Tarif modifiable sans préavis). Etiquette énergie : A. Différents modèles disponibles pour ce terrain. Assurances et garanties du constructeur (RC professionnelle, décennale, dommage ouvrage, garantie de remboursement de l'acompte, livraison à prix et délai convenu) : HEXAOM Services est enregistré auprès de l'ORIAS en tant que Courtier en financement, Niveau 1, sous le numéro 14001345.

MAISONS BALENCY 55 rue du Général de Gaulle 77230 Dammartin-en-Goële
Référence : JB2444247_2



Bien En copropriété : non

* Prix net, hors frais notarié, d'enregistrement et de publicité foncière.

Contactez
MAISONS BALENCY

Adresse postale

55 rue du Général de Gaulle
77230 Dammartin-en-Goële
Itinéraire

Site internet

maisons-balency.fr

N° de téléphone

Siret : 00000000000000

Nous contacter

Contactez-nous pour l'annonce "Dammartin-en-Goële (77230)", Réf. : 1046281_1005120_3681213

* Tous les champs sont obligatoires ** En cas de transmission de coordonnées téléphoniques vous reconnaissez accepter expressément d'être rappelé par l'annonceur