Vente Maison 6 pièces 141 m²

Maison - 6 pièce(s) - 141 m²

419 340 € *
  •   Référence : 1046281_1005120_3681220
  •   Dernière mise à jour : 28/02/2026

A
Classe Énergie
50 kWh/m² an
info
NC
Indice d'émissions de gaz à effet de serre
Non communiqué
info
Pour la nouvelle notation (DPE à partir de juillet 2021), c'est la plus mauvaise des deux performances (énergie, climat) qui est retenue.

Dammartin-en-Goële (77230)

VENTE : maison de 6 pièces (141 m²) à Dammartin-en-Goële
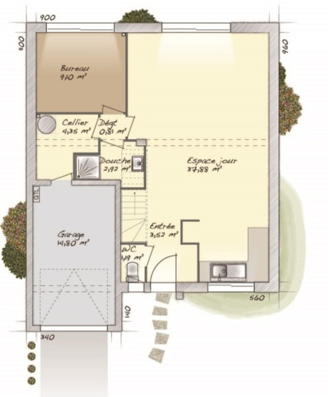
Paris à 30 min (Transilien K, Dammartin-Juilly-Saint-Mard) -  Maison neuve 6 pièces à vendre à Dammartin-en-Goële (77230) avec 2 niveaux, une surface de 141 m² et de 347 m² de terrain. Elle comporte quatre chambres, une cuisine et deux salles de bains.
À dix minutes : RER B (Mitry-Claye), gares, établissements scolaires, crèche, bibliothèque, tennis, commerces, supérette, boucherie-charcuterie, épiceries et bureau de poste.
Cette maison de 6 pièces est proposée à l'achat pour 419 340 €.
N'hésitez pas à prendre contact avec notre agence (Joseph BANO : ) pour obtenir de plus amples renseignements sur la maison, sur les démarches à suivre ou sur les modalités de vente.

Annonce proposée par un Agent Commercial Partenaire.

Nos offres de terrains sont proposées en collaboration avec nos partenaires fonciers pour des maisons dans le cadre de la loi du 10/12/1990, selon disponibilité.
Surface habitable : 141m2.
Nombre de pièces : 6.
Nombre de chambres : 4.
Prix terrain seul : 129000 euros.

Terrain proposé par un partenaire foncier selon disponibilités et autorisation de publicité au prix de 129 000 €. Hors droit d'enregistrement et frais de notaire. Terrain + Maison proposés au prix de 419 340 € (Hors branchements et raccordements, papiers peints, peintures, revêtement de sol dans les chambres. Tarif modifiable sans préavis). Etiquette énergie : A. Différents modèles disponibles pour ce terrain. Assurances et garanties du constructeur (RC professionnelle, décennale, dommage ouvrage, garantie de remboursement de l'acompte, livraison à prix et délai convenu) : HEXAOM Services est enregistré auprès de l'ORIAS en tant que Courtier en financement, Niveau 1, sous le numéro 14001345.

MAISONS BALENCY 55 rue du Général de Gaulle 77230 Dammartin-en-Goële
Référence : JB2444278_5



Bien En copropriété : non

* Prix net, hors frais notarié, d'enregistrement et de publicité foncière.

Contactez
MAISONS BALENCY

Adresse postale

55 rue du Général de Gaulle
77230 Dammartin-en-Goële
Itinéraire

Site internet

maisons-balency.fr

N° de téléphone

Siret : 00000000000000

Nous contacter

Contactez-nous pour l'annonce "Dammartin-en-Goële (77230)", Réf. : 1046281_1005120_3681220

* Tous les champs sont obligatoires ** En cas de transmission de coordonnées téléphoniques vous reconnaissez accepter expressément d'être rappelé par l'annonceur