Vente Maison 6 pièces 114 m²

Maison - 6 pièce(s) - 114 m²

406 000 € *
  •   Référence : 1030424_1005120_3681946
  •   Dernière mise à jour : 03/04/2026

A
Classe Énergie
50 kWh/m² an
info
NC
Indice d'émissions de gaz à effet de serre
Non communiqué
info
Pour la nouvelle notation (DPE à partir de juillet 2021), c'est la plus mauvaise des deux performances (énergie, climat) qui est retenue.

Marolles-sur-Seine (77130)

Maison bois « Canopée » haut de gamme à bâtir - Marolles-sur-Seine (77130)

À Marolles-sur-Seine, charmante commune de Seine-et-Marne, découvrez cette superbe maison bois « Canopée » de 120 m² à construire sur un terrain viabilisé de 604 m², proposée à partir de 406 000 €. Située dans un environnement calme et verdoyant, cette construction haut-de-gamme conjugue élégance contemporaine et performance environnementale.

Conçue par Les Maisons Balency d'Ormoy, cette habitation en ossature bois va bien au-delà des standards actuels. Grâce à une conception optimisée et une isolation renforcée, elle offre un confort de vie exceptionnel tout en garantissant un habitat à la fois écologique et économique. Le bois, issu de forêts éco-gérées, présente un bilan carbone positif et permet de réduire de 65 % les déchets sur le chantier par rapport à une construction traditionnelle. Son impact environnemental est 60 % moins important qu'une maison en béton ou en brique, et son isolation thermique, deux fois supérieure, assure un confort optimal été comme hiver.

La résistance thermique des murs, proche de R = 6,56 m²·°C/W, élimine tout pont thermique et garantit une efficacité énergétique remarquable. Le chantier, beaucoup plus rapide qu'une construction classique, permet de limiter les frais intercalaires et d'accéder plus vite à votre nouveau logement. La consommation d'eau est, elle aussi, réduite de près de 80 % dès la phase de conception.

La maison « Canopée » illustre parfaitement l'expertise de fabrication française des Maisons Balency, avec une conception et un assemblage industrialisés pour un montage rapide et une qualité certifiée. L'équipe d'Ormoy vous accompagne à chaque étape : étude personnalisée, aide à la recherche du terrain, et gestion complète des démarches administratives.

Idéalement situé, le terrain profite de la tranquillité du secteur du Chemin de la Vigne tout en restant proche des commodités : école maternelle et primaire, boulangerie-pâtisserie, m

Nos offres de terrains sont proposées en collaboration avec nos partenaires fonciers pour des maisons dans le cadre de la loi du 10/12/1990, selon disponibilité.
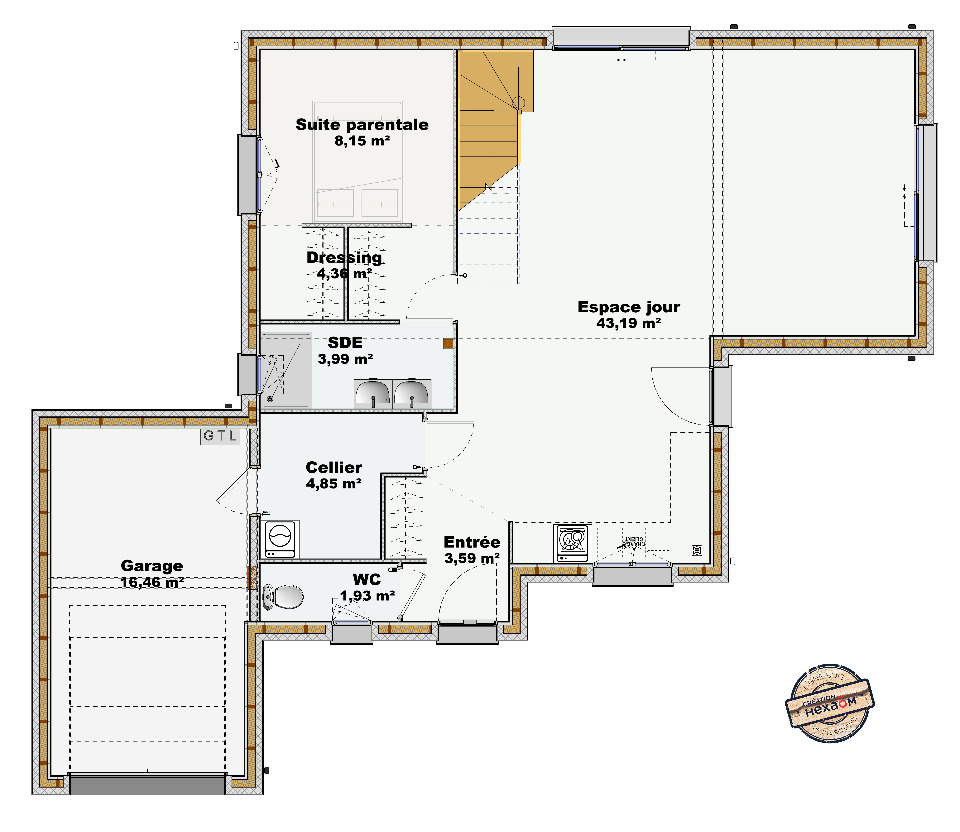
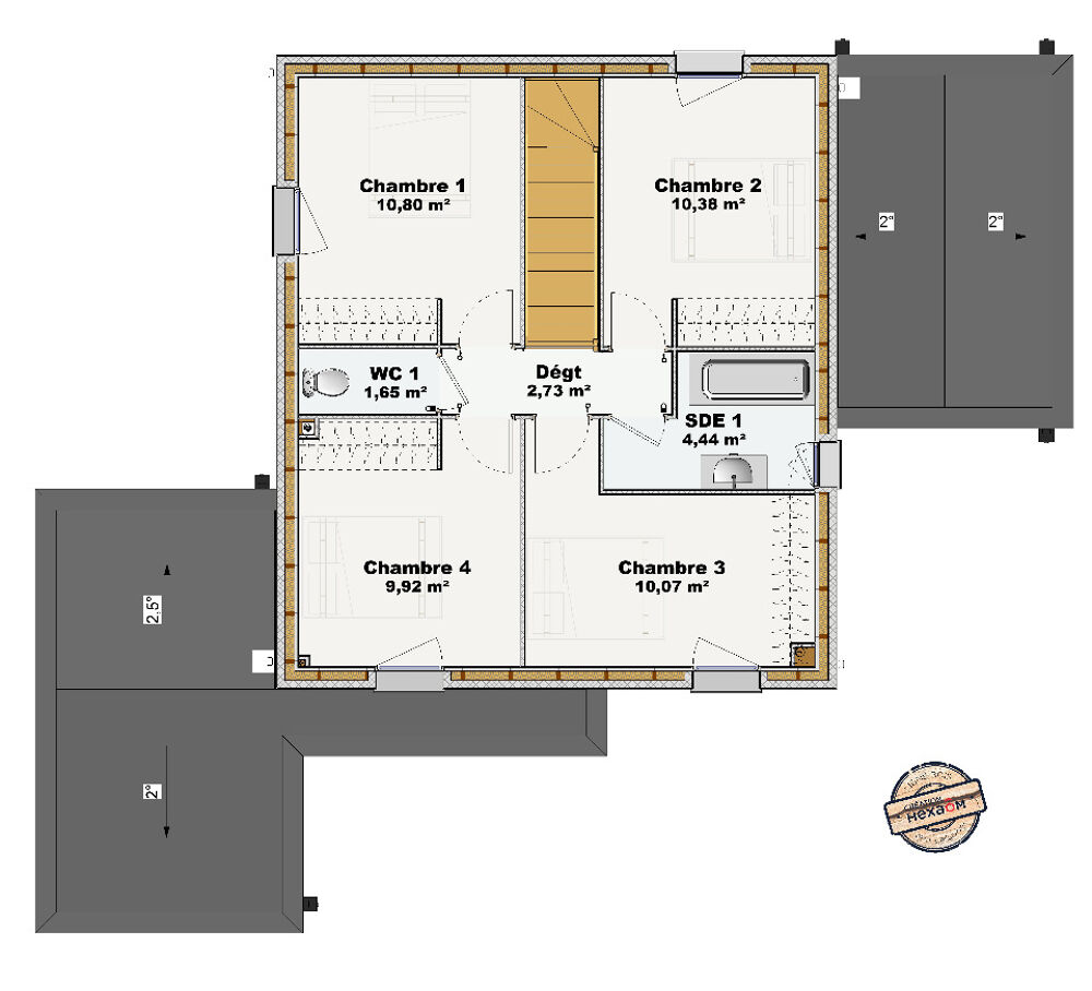
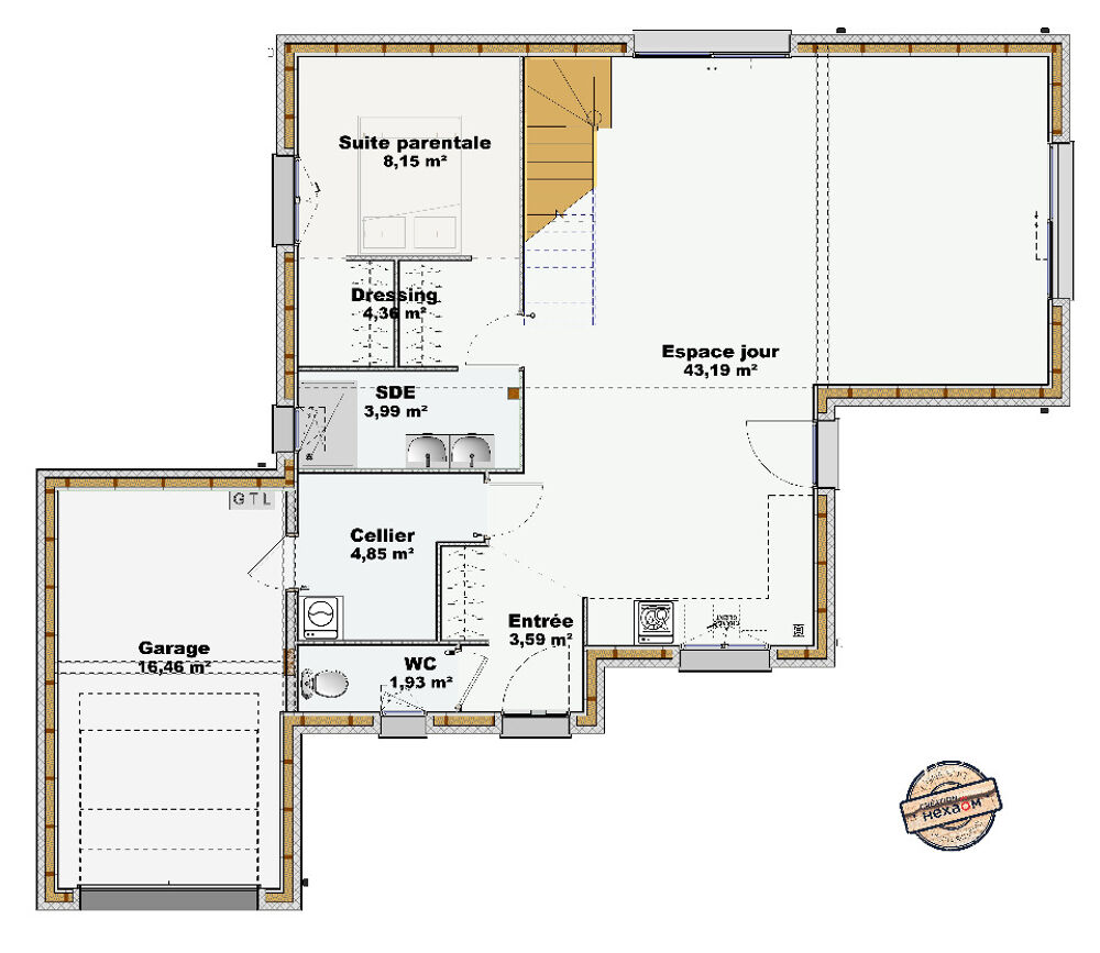
Surface habitable : 114m2.
Nombre de pièces : 6.
Nombre de chambres : 5.
Prix terrain seul : 93000 euros.

Terrain proposé par un partenaire foncier selon disponibilités et autorisation de publicité au prix de 93 000 €. Hors droit d'enregistrement et frais de notaire. Terrain + Maison proposés au prix de 406 000 € (Hors branchements et raccordements, papiers peints, peintures, revêtement de sol dans les chambres. Tarif modifiable sans préavis). Etiquette énergie : A. Différents modèles disponibles pour ce terrain. Assurances et garanties du constructeur (RC professionnelle, décennale, dommage ouvrage, garantie de remboursement de l'acompte, livraison à prix et délai convenu) : HEXAOM Services est enregistré auprès de l'ORIAS en tant que Courtier en financement, Niveau 1, sous le numéro 14001345.

MAISONS BALENCY 23 chemin de Tournenfils - 1er étage 91540 Ormoy
Référence : KM2444091_1



Bien En copropriété : non

* Prix net, hors frais notarié, d'enregistrement et de publicité foncière.

Contactez
MAISONS BALENCY

Adresse postale

23 chemin de Tournenfils - 1er étage
91540 Ormoy
Itinéraire

Site internet

maisons-balency.fr

N° de téléphone

Siret : 78855313900015

Nous contacter

Contactez-nous pour l'annonce "Marolles-sur-Seine (77130)", Réf. : 1030424_1005120_3681946

* Tous les champs sont obligatoires ** En cas de transmission de coordonnées téléphoniques vous reconnaissez accepter expressément d'être rappelé par l'annonceur